※このサイトに記載がある賃貸条件は、敷金・保証金などの預かり金を除き、別途消費税がかかります。
物件情報
設備詳細
| 空調 | 個別空調 |
|---|---|
| トイレ | 男女別トイレ室内 |
| 床仕様 | OA対応床(フリーアクセス) |
| エレベータ | 1 基 |
| 駐車場設備 | - |
| その他 | オートロック / 機械警備 / 新耐震基準 / セットアップ |
南青山Dビルの賃貸オフィス・事務所に関するお問い合わせ
南青山Dビルについて
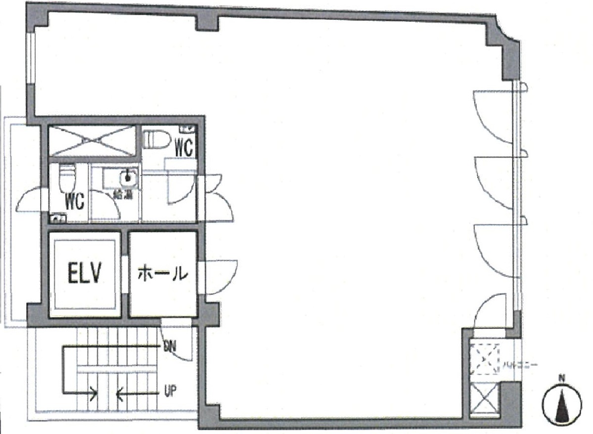
東京都港区南青山に位置し、ビジネスと文化の交差点に佇む南青山Dビルは、その独特の魅力と利便性で多くの企業から注目を集めています。1985年に竣工し、A館とD館から成るこの8階建ての賃貸オフィスビルは、都心のアクセスの良さと機能性を兼ね備えており、特にIT企業やクリニックの立地に最適です。 青山一丁目駅からわずか徒歩3分、乃木坂駅からもアクセス可能という絶好の立地にありながら、外苑東通り沿いというビジネスマンが行き交う活気あふれるエリアであります。半蔵門線、銀座線、大江戸線、千代田線という4つの路線が利用でき、渋谷やその他の主要地区へのアクセスも抜群です。 ビルの設備には、夜間オートロックシステムが導入され、セキュリティ面でも安心です。1基のエレベーターがあり、各フロアへスムーズな移動を約束します。また、基準階約44坪の広々としたオフィススペースは、レイアウトの自由度が高く、柱のないL字型でデザインされており、効率的なオフィス環境を実現できます。男女別トイレや給湯スペースも各貸室内に設置されており、個別空調システムで快適な職場環境を提供します。 さらに、ビルの周辺には銀行、郵便局、飲食店、コンビニなどが立地しており、ビジネスに必要なあらゆるサービスや施設が手の届く距離にあります。このような利便性の高さが、南青山Dビルを特に魅力的なオフィススペースとしています。 南青山Dビルは、その立地の良さ、充実した設備、そしてビジネスに最適な環境を提供することで、企業の成長と発展をサポートします。ビルの重厚感のあるエントランスは、来客者に良い印象を与えます。ビルを訪れるすべての人々にとって、南青山Dビルは、仕事と生活の質を高める場所として最適な選択となるでしょう。
南青山Dビルのこだわり
自分で探すより問い合わせる方が早いことがあります
WEB非公開物件があるから
オーナー様のご希望により「WEBでは非公開」にしている物件があります。 それらはWEBでいくら検索しても見つかりません。 先ずは条件などお知らせ頂けましたら非公開物件含め ピッタリのオフィスをご提案させて頂きます。 無理なお勧めはしておりませんので、お気軽にお問い合わせください。
対面でのご相談も受け付けております
ご来店も歓迎です
オフィス移転は社内・社外ともに非公開に行われることが殆どです。そのためアットオフィスでは、基本的に訪問によるコンサルティングを行っておりますが、ご来店の相談も歓迎です。お一人おひとりに親身にご対応させて頂きたい為、要予約とさせて頂いております。ご来店の際は先ずは下記よりご予約下さい。
募集終了のテナント区画
| 階数 | 坪数 | 賃料 + 共益費 | 敷金/礼金敷金 礼金 | 検討 |
|---|---|---|---|---|
| B1階 | 23.7坪 (78.4m²) | 募集終了 | - | - |
| B1階 | 21.25坪 (70.26m²) | 募集終了 | - | - |
| 1階 | 33.63坪 (111.17m²) | 募集終了 | - | - |
| 1階 | 18.13坪 (59.94m²) | 募集終了 | - | - |
| 2階 | 44.59坪 (147.4m²) | 募集終了 | - | - |
| 2階 | 29.59坪 (97.82m²) | 募集終了 | - | - |
| 3階 | 29.59坪 (97.82m²) | 募集終了 | - | - |
| 5階 | 28.19坪 (90.2m²) | 募集終了 | - | - |
| 5階 | 21.25坪 (70.26m²) | 募集終了 | - | - |
| 6階 | 29.27坪 (96.79m²) | 募集終了 | - | - |
| 7階 | 28.19坪 (93.19m²) | 募集終了 | - | - |
| 8階 | 26.92坪 (88.99m²) | 募集終了 | - | - |
| 9階 | 26.92坪 (88.99m²) | 募集終了 | - | - |
読込中...
青山エリアで南青山Dビルに似た条件の物件
読込中...
| 取扱様態 | 仲介 |
|---|---|
| 取扱会社 | 株式会社 アットオフィス |