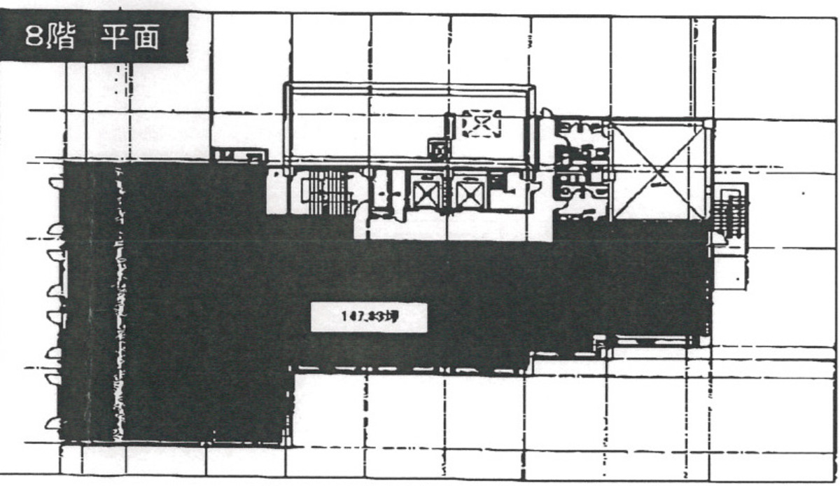
黒龍芝公園ビル8階の賃貸情報
147.83 坪 (488.69m²)
※このサイトに記載がある賃貸条件は、敷金・保証金などの預かり金を除き、別途消費税がかかります。
黒龍芝公園ビルの建物概要
設備詳細
| 空調 | 個別空調 |
|---|---|
| トイレ | - |
| 床仕様 | OA対応床(フリーアクセス) |
| エレベータ | 4 基 |
| 駐車場設備 | 空有 |
| その他 | 大型ビル |
黒龍芝公園ビルについて
黒龍芝公園ビルは、東京都港区芝公園に位置し、1978年に竣工した地上10階建ての賃貸オフィスビルです。この物件は、都営三田線芝公園駅からわずか徒歩3分というアクセスの良さを誇り、周辺には芝公園などの緑豊かな環境が広がっており、都会の喧騒を忘れさせる落ち着いたオフィス環境を提供しています。建物の基準階坪数は約160坪で、広々としたオフィススペースを実現しています。天井高は2,700mmとなっており、うちOAフロアは50mm〜70mmの高さを確保しています。これにより、作業スペースの快適性が向上しています。 空調システムはセントラル空調を採用し、オフィス内の環境を一年中快適な状態に保つことができます。また、ビル内には光ファイバーケーブルが引き込まれており、高速インターネット環境を利用することが可能です。セキュリティ面では、有人と機械の併用警備を導入し、入館には非接触型ICカードが必要となるため、入居者の安全を確保しています。 立地に関しては、日比谷通りに面しており、オフィスビルの向かいにはフットサル場があります。飲食店は周辺に少なめですが、大門駅方面に向かうと多様な飲食店やコンビニエンスストアが充実しており、ビジネス利用に適した環境が整っています。また、芝公園や増上寺、東京タワーなど、名所を訪れることによるリフレッシュやビジネス以外の活動にも最適な立地です。 このビルは、賃貸事務所としての利点だけでなく、立地や設備、セキュリティ面など、ビジネス運営に必要な様々な要素を高いレベルで満たしています。芝公園の緑ある環境と都心部へのアクセスの良さを兼ね備え、ビジネスの発展をサポートする魅力的なオフィスビルであると言えるでしょう。企業が求める機能性と快適性を備えた黒龍芝公園ビルは、あらゆる業種の企業にとって理想的なオフィススペースを提供します。
黒龍芝公園ビルのこだわり
自分で探すより問い合わせる方が早いことがあります
WEB非公開物件があるから
オーナー様のご希望により「WEBでは非公開」にしている物件があります。 それらはWEBでいくら検索しても見つかりません。 先ずは条件などお知らせ頂けましたら非公開物件含め ピッタリのオフィスをご提案させて頂きます。 無理なお勧めはしておりませんので、お気軽にお問い合わせください。
対面でのご相談も受け付けております
ご来店も歓迎です
オフィス移転は社内・社外ともに非公開に行われることが殆どです。そのためアットオフィスでは、基本的に訪問によるコンサルティングを行っておりますが、ご来店の相談も歓迎です。お一人おひとりに親身にご対応させて頂きたい為、要予約とさせて頂いております。ご来店の際は先ずは下記よりご予約下さい。
近くのエリアで探してみる
浜松町/田町/芝公園エリアで黒龍芝公園ビルに似た条件の物件
読込中...
黒龍芝公園ビルと同じ最寄駅の物件
読込中...
| 取扱様態 | 仲介 |
|---|---|
| 取扱会社 | 株式会社 アットオフィス |