喜多ビルの賃料条件
| 階数 | 坪数 | 賃料 + 共益費 | 敷金/礼金敷金 礼金 | 検討 |
|---|---|---|---|---|
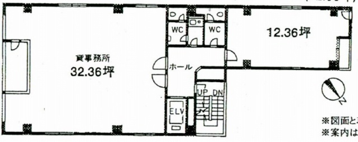
| 3階 | 32.36坪 (106.98m²) | 520,000円 (坪:16,068 円) | 相談 無相談/無 | |
| 7階 | 32.36坪 (106.99m²) | 520,000円 (坪:16,068 円) | 6ヶ月 無6ヶ月/無 |
※このサイトに記載がある賃貸条件は、敷金・保証金などの預かり金を除き、別途消費税がかかります。
物件情報
設備詳細
| 空調 | 個別空調 |
|---|---|
| トイレ | 男女別トイレ室外 |
| 床仕様 | OA対応床(フリーアクセス) |
| エレベータ | 1 基 |
| 駐車場設備 | - |
| その他 | 光ファイバー / 新耐震基準 / 24時間利用可 / フリーレント |
喜多ビルの賃貸オフィス・事務所に関するお問い合わせ
喜多ビルについて
港区芝大門に位置する「喜多ビル」は、1984年に竣工された賃貸オフィスビルです。そのレトロなベージュタイル張りの外観は、周辺のモダンなビル群の中でも一際目を引く存在です。基準階約48.52坪のオフィススペースは、中規模企業やスタートアップ企業にとって最適な広さと言えるでしょう。また、1階には飲食店が入居しており、ビル利用者にとっては大きな利便性をもたらしています。 喜多ビルの最大の魅力はその立地にあります。御成門駅と大門駅から徒歩わずか2分というアクセスの良さは、ビジネスの機会を広げ、従業員の通勤の利便性を大きく向上させます。さらに、周辺は比較的静かな環境でありながら、生活に必要な設備が整っており、コンビニや飲食店も豊富にあります。 ビル内の設備も見逃せません。エレベーターは平成25年にリニューアルされており、安全かつスムーズな利用が可能です。各オフィス室内には、個別空調設備、給湯スペース、個室トイレ、洗面台が完備されており、企業が快適なオフィス環境を構築するための基盤がしっかりと整っています。 港区芝大門のエリアは、国際ビジネスの中心地としての顔を持つ一方で、歴史ある街並みが残る魅力的な地域です。この地にオフィスを構えることは、社外のクライアントやパートナーからの印象を高めること間違いありません。喜多ビルは、そのような地域の特性を活かしながら、ビジネスの成長を支えるための環境を提供しています。 総じて、喜多ビルは、レトロで安心感のある外観、利便性の高い立地、充実した設備を備え、企業にとって理想的なオフィススペースを提供しています。ビジネスの拡大や新たなチャレンジを考えている企業にとって、喜多ビルは間違いなく魅力的な選択肢の一つと言えるでしょう。
喜多ビルのこだわり
自分で探すより問い合わせる方が早いことがあります
WEB非公開物件があるから
オーナー様のご希望により「WEBでは非公開」にしている物件があります。 それらはWEBでいくら検索しても見つかりません。 先ずは条件などお知らせ頂けましたら非公開物件含め ピッタリのオフィスをご提案させて頂きます。 無理なお勧めはしておりませんので、お気軽にお問い合わせください。
対面でのご相談も受け付けております
ご来店も歓迎です
オフィス移転は社内・社外ともに非公開に行われることが殆どです。そのためアットオフィスでは、基本的に訪問によるコンサルティングを行っておりますが、ご来店の相談も歓迎です。お一人おひとりに親身にご対応させて頂きたい為、要予約とさせて頂いております。ご来店の際は先ずは下記よりご予約下さい。
募集終了のテナント区画
| 階数 | 坪数 | 賃料 + 共益費 | 敷金/礼金敷金 礼金 | 検討 |
|---|---|---|---|---|
| 1階 | 12.42坪 (41.05m²) | 募集終了 | - | - |
| 1階 | 12.42坪 (41.05m²) | 募集終了 | - | - |
| 1階 | 12.42坪 (41.05m²) | 募集終了 | - | - |
| 1階 | 20坪 (66.12m²) | 募集終了 | - | - |
| 2階 | 31.62坪 (104.52m²) | 募集終了 | - | - |
| 2階 | 12.36坪 (40.85m²) | 募集終了 | - | - |
| 3階 | 12.36坪 (40.86m²) | 募集終了 | - | - |
| 4階 | 32.36坪 (106.97m²) | 募集終了 | - | - |
| 4階 | 12.36坪 (40.86m²) | 募集終了 | - | - |
| 5階 | 45.58坪 (150.67m²) | 募集終了 | - | - |
| 5階 | 32.36坪 (106.99m²) | 募集終了 | - | - |
| 5階 | 12.36坪 (40.86m²) | 募集終了 | - | - |
| 6階 | 48.52坪 (160.39m²) | 募集終了 | - | - |
| 6階 | 32.36坪 (106.99m²) | 募集終了 | - | - |
| 6階 | 12.36坪 (40.86m²) | 募集終了 | - | - |
| 7階 | 12.36坪 (40.85m²) | 募集終了 | - | - |
| 8階 | 16.18坪 (53.49m²) | 募集終了 | - | - |
読込中...
近くのエリアで探してみる
浜松町/田町/芝公園エリアで喜多ビルに似た条件の物件
読込中...
| 取扱様態 | 仲介 |
|---|---|
| 取扱会社 | 株式会社 アットオフィス |