※このサイトに記載がある賃貸条件は、敷金・保証金などの預かり金を除き、別途消費税がかかります。
物件情報
設備詳細
| 空調 | - |
|---|---|
| トイレ | - |
| 床仕様 | - |
| エレベータ | 2 基 |
| 駐車場設備 | 空有 / 機械式駐車場 |
| その他 | 機械警備 / 24時間利用可 / 光ファイバー / 新耐震基準 |
麹町志村ビルの賃貸オフィス・事務所に関するお問い合わせ
麹町志村ビルについて
麹町志村ビルは、千代田区麹町4丁目に位置する賃貸オフィスビルで、1999年に竣工されました。このビルは、新耐震基準に準じた構造で建設され、安全性と耐久性に優れていることが特徴です。地上9階建てのこのビルは、基準階約75坪の広さを誇り、二つのエレベーターが設置されています。また、機械式の駐車場がビル内にあり、24時間利用可能なセキュリティシステムが完備されています。 立地においては、麹町大通り沿いの角地にあり、最寄りの麹町駅からは徒歩わずか1分という抜群のアクセスを誇ります。さらに、半蔵門駅へは徒歩5分、JR線が利用可能な四ツ谷駅も徒歩圏内と、複数の交通手段が利用できる好立地です。このように複数の駅が周辺にあり、ビジネスの拠点としてのアクセスの良さは、テナント企業にとって非常に大きな魅力となります。 ビルのエントランスは、石造りで高級感があり、明るく清潔感のある空間が広がっています。室内は個別空調で、光回線にも対応しており、現代のビジネスニーズに応える設備が整っています。また、男女別のトイレ設備も完備されており、利便性にも配慮されています。 周辺環境も魅力的で、オフィス街でありながらコンビニや銀行、飲食店が徒歩圏内に揃っており、ビジネスマンにとって日々の利便性が高い立地です。ランチスポットも豊富にあり、ビジネスの合間にリフレッシュする場所も多く、働きやすい環境が整っています。 麹町志村ビルは、安全性と耐久性に優れた建物、抜群の立地条件、そして充実した設備と周辺環境を兼ね備えた賃貸オフィスビルです。ビジネスの拠点としての魅力が多く、様々な業種の企業にとって最適なオフィススペースを提供します。
自分で探すより問い合わせる方が早いことがあります
WEB非公開物件があるから
オーナー様のご希望により「WEBでは非公開」にしている物件があります。 それらはWEBでいくら検索しても見つかりません。 先ずは条件などお知らせ頂けましたら非公開物件含め ピッタリのオフィスをご提案させて頂きます。 無理なお勧めはしておりませんので、お気軽にお問い合わせください。
対面でのご相談も受け付けております
ご来店も歓迎です
オフィス移転は社内・社外ともに非公開に行われることが殆どです。そのためアットオフィスでは、基本的に訪問によるコンサルティングを行っておりますが、ご来店の相談も歓迎です。お一人おひとりに親身にご対応させて頂きたい為、要予約とさせて頂いております。ご来店の際は先ずは下記よりご予約下さい。
募集終了のテナント区画
| 階数 | 坪数 | 賃料 + 共益費 | 敷金/礼金敷金 礼金 | 検討 |
|---|---|---|---|---|
| 1階 | 29.43坪 (97.28m²) | 募集終了 | - | - |
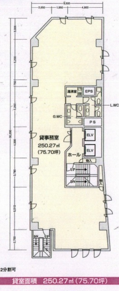
| 3階 | 75.7坪 (250.25m²) | 募集終了 | - | - |
| 5階 | 75.7坪 (250.27m²) | 募集終了 | - | - |
| 8階 | 75.7坪 (250.24m²) | 募集終了 | - | - |
読込中...
番町/麹町/平河町エリアで麹町志村ビルに似た条件の物件
読込中...
| 取扱様態 | 仲介 |
|---|---|
| 取扱会社 | 株式会社 アットオフィス |