※このサイトに記載がある賃貸条件は、敷金・保証金などの預かり金を除き、別途消費税がかかります。
物件情報
設備詳細
| 空調 | - |
|---|---|
| トイレ | - |
| 床仕様 | - |
| エレベータ | 2 基 |
| 駐車場設備 | 空有 / 平置き駐車場 |
| その他 | 機械警備 / 大型ビル / 光ファイバー / 新耐震基準 / 管理人常駐 / 24時間利用可 |
サウスヒル永田町の賃貸オフィス・事務所に関するお問い合わせ
サウスヒル永田町について
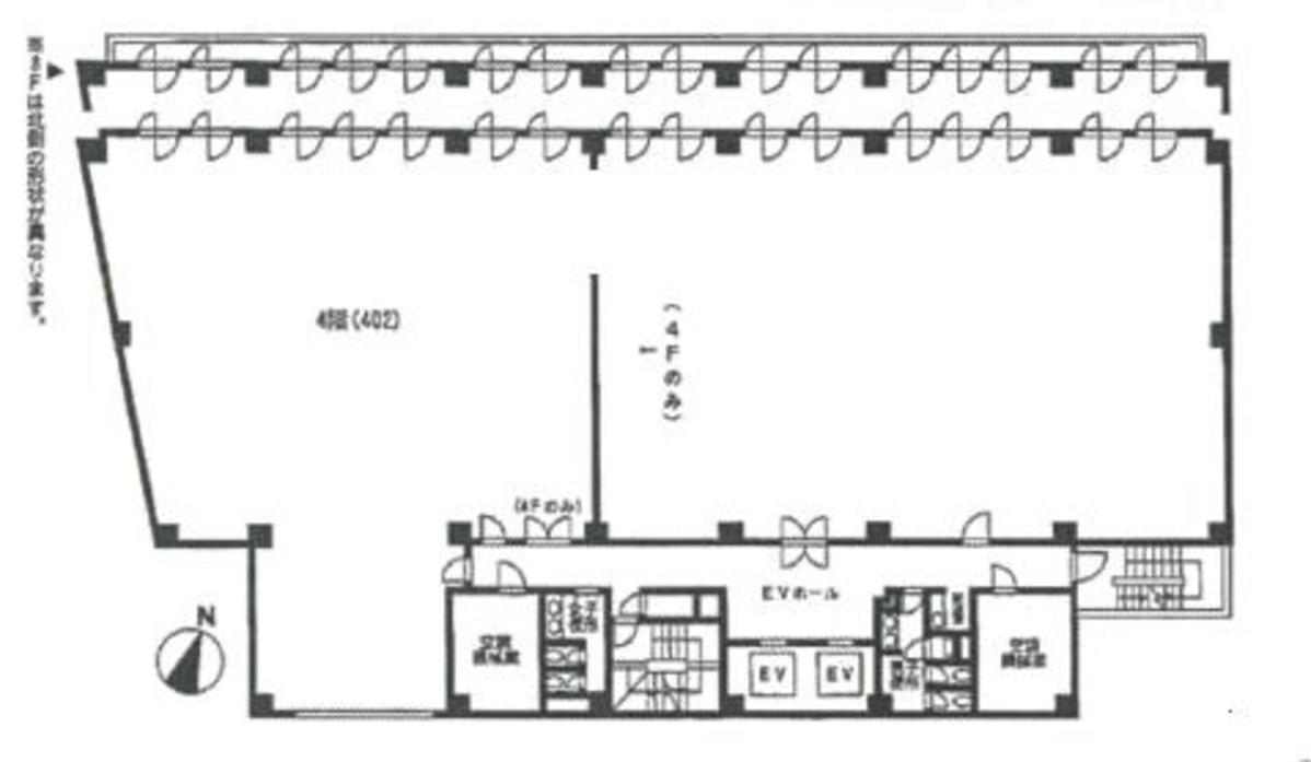
サウスヒル永田町は、現代ビジネスプロフェッショナルのために設計された、高品質でスタイリッシュなオフィスビルです。このビルは、その重厚かつ高級感あふれる外観で、赤坂見附という都心の中心に位置しており、地下鉄6線・3駅(「永田町」駅徒歩1分、「赤坂見附」駅、「国会議事堂前」駅)を利用可能という、類稀なる好立地を誇ります。この立地は、ビジネスにとってのアクセシビリティとコネクティビティを最大限に高め、都市の中心で活動する企業にとって理想的な環境を提供します。 サウスヒル永田町の内部は、現代オフィスのニーズに応えるために細心の注意を払って設計されています。特筆すべきは、その無柱整形のオフィス空間です。この設計により、広々とした開放感が生まれ、作業効率とクリエイティビティを促進します。また、柱が部屋の周りにしかないことで、レイアウトの自由度が高まり、様々なビジネスのニーズに柔軟に対応することができます。 さらに、ビル内の照明にはLEDを採用しており、エネルギー効率の良さと長寿命を実現しています。これにより、オフィスの運営コストの削減にも貢献し、環境に優しく持続可能なビジネスの実践を支援します。 ビルの周辺環境においても、サウスヒル永田町は特別な魅力を持っています。官公庁が多く存在し、地域全体が良好なセキュリティで保護されているため、ビジネスでの安心感があります。また、お昼時には徒歩圏内の「赤坂」エリアで多彩な飲食店を楽しむことができ、ビジネスランチやアフターワークにも最適です。 サウスヒル永田町は、そのビルグレードの高さ、優れた設備、そして抜群の立地により、ビジネスの成功を支える最高の環境を提供します。企業のブランドイメージ向上に貢献し、従業員の満足度を高めること間違いなしのこのオフィスビルは、次世代のビジネスを牽引する企業にとって、理想的な選択肢です。
自分で探すより問い合わせる方が早いことがあります
WEB非公開物件があるから
オーナー様のご希望により「WEBでは非公開」にしている物件があります。 それらはWEBでいくら検索しても見つかりません。 先ずは条件などお知らせ頂けましたら非公開物件含め ピッタリのオフィスをご提案させて頂きます。 無理なお勧めはしておりませんので、お気軽にお問い合わせください。
対面でのご相談も受け付けております
ご来店も歓迎です
オフィス移転は社内・社外ともに非公開に行われることが殆どです。そのためアットオフィスでは、基本的に訪問によるコンサルティングを行っておりますが、ご来店の相談も歓迎です。お一人おひとりに親身にご対応させて頂きたい為、要予約とさせて頂いております。ご来店の際は先ずは下記よりご予約下さい。
募集終了のテナント区画
| 階数 | 坪数 | 賃料 + 共益費 | 敷金/礼金敷金 礼金 | 検討 |
|---|---|---|---|---|
| 3階 | 175.06坪 (578.73m²) | 募集終了 | - | - |
| 5階 | 80.99坪 (267.76m²) | 募集終了 | - | - |
| 5階 | 92.99坪 (307.41m²) | 募集終了 | - | - |
| 7階 | 80.99坪 (267.76m²) | 募集終了 | - | - |
| 9階 | 101.89坪 (336.85m²) | 募集終了 | - | - |
読込中...
近くのエリアで探してみる
霞が関/日比谷/永田町エリアでサウスヒル永田町に似た条件の物件
読込中...
| 取扱様態 | 仲介 |
|---|---|
| 取扱会社 | 株式会社 アットオフィス |