※このサイトに記載がある賃貸条件は、敷金・保証金などの預かり金を除き、別途消費税がかかります。
物件情報
設備詳細
| 空調 | - |
|---|---|
| トイレ | - |
| 床仕様 | - |
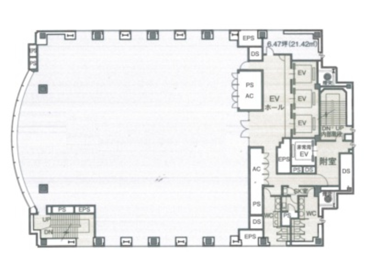
| エレベータ | 4 基 |
| 駐車場設備 | 空有 |
| その他 | 大型ビル |
ヒューリック小舟町ビルの賃貸オフィス・事務所に関するお問い合わせ
ヒューリック小舟町ビルについて
ヒューリック小舟町ビルは、首都圏のビジネスの中心地である東京都中央区日本橋小舟町に位置する、高品質なオフィスビルです。この地域は、商業施設、金融機関、そして多様な企業が集まる経済の中心地の一つであり、ビジネスの拠点として理想的な立地条件を備えています。 1994年に竣工されたこのビルは、新耐震基準に則って設計・建設されており、万が一の大地震が発生した場合でもテナント企業とその従業員の安全を高いレベルで保護できる構造を有しています。安全性の高さは、ビジネスの継続性と従業員の安心感を確保する上で非常に重要な要素です。 また、ヒューリック小舟町ビルは、ビル内に駐車場を備えており、来訪者やテナントの利便性を高めています。都心部では稀有なこの設備は、自動車での移動が必要なビジネスシーンにおいて大きなメリットを提供します。 ビルのエントランスは広々としており、豪華な雰囲気を醸し出しています。また、ガラスを多用したシャープな外観は、企業のイメージを高める上でプラスの効果をもたらします。エレベーターは4機設置されており、ビル内の移動の効率性を高めています。 立地においても、このビルは3駅以上のアクセスが可能であり、交通の利便性も抜群です。複数の路線を利用できることで、ビジネスの機動性が高まり、首都圏内外へのアクセスも容易になります。 総じて、ヒューリック小舟町ビルは、耐震性、利便性、そして企業イメージの向上という3つの重要な要素を兼ね備えた、ビジネスのための最適なオフィス環境を提供します。高い安全基準の下で建設されたこのビルは、企業が将来にわたって安心してビジネスを展開できる強固な基盤を提供し、その立地と設備は、企業活動をサポートし、ビジネスの成功を後押しします。
ヒューリック小舟町ビルのこだわり
自分で探すより問い合わせる方が早いことがあります
WEB非公開物件があるから
オーナー様のご希望により「WEBでは非公開」にしている物件があります。 それらはWEBでいくら検索しても見つかりません。 先ずは条件などお知らせ頂けましたら非公開物件含め ピッタリのオフィスをご提案させて頂きます。 無理なお勧めはしておりませんので、お気軽にお問い合わせください。
対面でのご相談も受け付けております
ご来店も歓迎です
オフィス移転は社内・社外ともに非公開に行われることが殆どです。そのためアットオフィスでは、基本的に訪問によるコンサルティングを行っておりますが、ご来店の相談も歓迎です。お一人おひとりに親身にご対応させて頂きたい為、要予約とさせて頂いております。ご来店の際は先ずは下記よりご予約下さい。
募集終了のテナント区画
| 階数 | 坪数 | 賃料 + 共益費 | 敷金/礼金敷金 礼金 | 検討 |
|---|---|---|---|---|
| B2階 | 5坪 (16.53m²) | 募集終了 | - | - |
| 4階 | 189.96坪 (627.96m²) | 募集終了 | - | - |
| 5階 | 189.64坪 (626.9m²) | 募集終了 | - | - |
| 6階 | 187.96坪 (621.36m²) | 募集終了 | - | - |
| 7階 | 187.96坪 (621.36m²) | 募集終了 | - | - |
| 8階 | 187.96坪 (621.36m²) | 募集終了 | - | - |
| 9階 | 187.96坪 (621.36m²) | 募集終了 | - | - |
| 10階 | 187.96坪 (621.39m²) | 募集終了 | - | - |
| 11階 | 189.96坪 (627.96m²) | 募集終了 | - | - |
| 12階 | 171.98坪 (568.52m²) | 募集終了 | - | - |
読込中...
近くのエリアで探してみる
人形町/馬喰町/浜町エリアでヒューリック小舟町ビルに似た条件の物件
読込中...
| 取扱様態 | 仲介 |
|---|---|
| 取扱会社 | 株式会社 アットオフィス |