五番町コスモビル2階の賃貸情報
87.57 坪 (289.5m²)
1,269,765円 (坪:14,500 円)
※このサイトに記載がある賃貸条件は、敷金・保証金などの預かり金を除き、別途消費税がかかります。
五番町コスモビルの建物概要
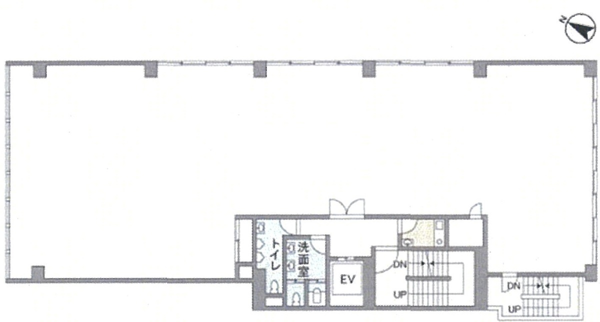
設備詳細
| 空調 | 個別空調 |
|---|---|
| トイレ | 男女別トイレ室外 |
| 床仕様 | OA対応床(フリーアクセス) |
| エレベータ | 1 基 |
| 駐車場設備 | 平置き駐車場 |
| その他 | 機械警備 / 24時間利用可 / 光ファイバー |
五番町コスモビル2階の賃貸オフィス・事務所に関するお問い合わせ
五番町コスモビルについて
東京都千代田区五番町に位置する「五番町コスモビル」は、その開放感あふれる設計と、利便性の高い立地でビジネスの拠点にふさわしいオフィス空間を提供します。このビルは、特に無柱空間によるレイアウトの自由度の高さと、自然光がたっぷりと入る3面採光のガラス面の大きな部屋が特徴です。ここでは、その独自の魅力とビジネスにおける利点をご紹介します。 まず、五番町コスモビルの最大の特徴は、そのデザインにあります。レイアウトの自由度が高い無柱空間は、テナントのニーズに合わせたオフィス環境の構築を可能にします。大きなガラス面は、室内を明るくし、開放感をもたらします。これらの特徴は、快適なワークスペースの創出に寄与し、従業員の満足度向上や生産性の向上にも繋がります。 立地においても、五番町コスモビルは特筆すべき点があります。JRと地下鉄が利用可能な市ヶ谷駅から徒歩わずか2分というアクセスの良さは、ビジネスの利便性を大きく向上させます。駅前の好立地でありながら、一本入った通りに面しているため、静かなオフィス環境を実現しています。この絶妙な立地は、都心でのビジネスを展開しながらも、落ち着いた環境で仕事をしたい企業にとって理想的です。 設備面では、男女別トイレや機械警備の完備はもちろんのこと、地下には平置き駐車場があり、来客や従業員の利便性をさらに高めています。また、エレベーターは1機設置されており、スムーズな移動を支えます。外観はモダンなガラスウォールで、エントランスから内装に至るまで白を基調とした清潔感のあるデザインが、ビル全体の品質を象徴しています。 五番町コスモビルは、その設計、立地、設備が融合することで、ビジネスの成功を支える環境を提供します。開放感あふれる空間での働きやすさ、都心でありながら静かな立地、そして利便性の高さは、このビルが多くの企業に選ばれる理由です。お探しの方は、ぜひこの機会に五番町コスモビルをご検討ください。
自分で探すより問い合わせる方が早いことがあります
WEB非公開物件があるから
オーナー様のご希望により「WEBでは非公開」にしている物件があります。 それらはWEBでいくら検索しても見つかりません。 先ずは条件などお知らせ頂けましたら非公開物件含め ピッタリのオフィスをご提案させて頂きます。 無理なお勧めはしておりませんので、お気軽にお問い合わせください。
対面でのご相談も受け付けております
ご来店も歓迎です
オフィス移転は社内・社外ともに非公開に行われることが殆どです。そのためアットオフィスでは、基本的に訪問によるコンサルティングを行っておりますが、ご来店の相談も歓迎です。お一人おひとりに親身にご対応させて頂きたい為、要予約とさせて頂いております。ご来店の際は先ずは下記よりご予約下さい。
番町/麹町/平河町エリアで五番町コスモビルに似た条件の物件
読込中...
五番町コスモビルと同じ最寄駅の物件
読込中...
| 取扱様態 | 仲介 |
|---|---|
| 取扱会社 | 株式会社 アットオフィス |