二番町大沼ビル2階の賃貸情報
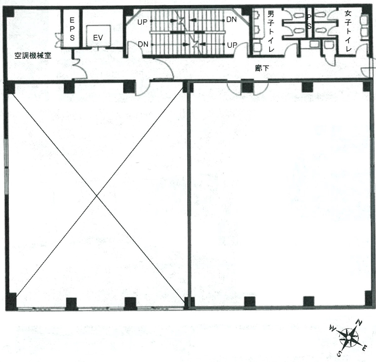
44.21 坪 (146.17m²)
※このサイトに記載がある賃貸条件は、敷金・保証金などの預かり金を除き、別途消費税がかかります。
二番町大沼ビルの建物概要
設備詳細
| 空調 | 個別空調 |
|---|---|
| トイレ | - |
| 床仕様 | OA対応床(フリーアクセス) |
| エレベータ | 1 基 |
| 駐車場設備 | 空無 |
| その他 | 機械警備 / 24時間利用可 / 光ファイバー / 新耐震基準 |
二番町大沼ビル2階の賃貸オフィス・事務所に関するお問い合わせ
二番町大沼ビルについて
二番町大沼ビル、それは千代田区二番町に位置する、ビジネスの中心でありながら落ち着いた周辺環境を享受できる、貴重なオフィス賃貸物件です。このビルは1987年に竣工し、新耐震基準に基づいて建築されたことで、安全性において高い評価を受けています。さらに、その重厚感ある外観は、あなたのビジネスの信頼性と品格を周囲にアピールすることでしょう。 二番町大沼ビルの立地は、四谷駅・麹町駅から徒歩わずか5分、市ヶ谷駅からも徒歩8分と、非常にアクセスが良好です。この利便性は、従業員やクライアント、ビジネスパートナーがビルに訪れる際のストレスを大幅に軽減します。また、ビル内に駐車場を備えているため、車でのアクセスも非常に便利です。空き状況についてはお問い合わせください。 ビル内部のオフィス空間に関しては、綺麗な長方形の形状をしており、貸室は分割での提供も可能です。これにより、あなたのビジネスの規模や成長に応じて、最適なオフィス環境を構築することができます。また、オフィス内部は非常にきれいに保たれており、レイアウトの自由度が高いため、効率的かつ快適なワークスペースを作り出すことが可能です。 エレベーターは1機設置されており、日々の業務においてスムーズな移動を約束します。このように二番町大沼ビルは、立地の利便性、安全性、柔軟性、そして快適性を兼ね備えた、ビジネスの成功をサポートする理想的なオフィス環境を提供します。 あなたのビジネスを次のレベルへと導くための場所をお探しであれば、二番町大沼ビルは、その答えの一つであることをお約束します。私たちと一緒に、あなたのビジネスの未来を築いていきましょう。
二番町大沼ビルのこだわり
自分で探すより問い合わせる方が早いことがあります
WEB非公開物件があるから
オーナー様のご希望により「WEBでは非公開」にしている物件があります。 それらはWEBでいくら検索しても見つかりません。 先ずは条件などお知らせ頂けましたら非公開物件含め ピッタリのオフィスをご提案させて頂きます。 無理なお勧めはしておりませんので、お気軽にお問い合わせください。
対面でのご相談も受け付けております
ご来店も歓迎です
オフィス移転は社内・社外ともに非公開に行われることが殆どです。そのためアットオフィスでは、基本的に訪問によるコンサルティングを行っておりますが、ご来店の相談も歓迎です。お一人おひとりに親身にご対応させて頂きたい為、要予約とさせて頂いております。ご来店の際は先ずは下記よりご予約下さい。
番町/麹町/平河町エリアで二番町大沼ビルに似た条件の物件
読込中...
二番町大沼ビルと同じ最寄駅の物件
読込中...
| 取扱様態 | 仲介 |
|---|---|
| 取扱会社 | 株式会社 アットオフィス |