麹町シャインビル5階の賃貸情報
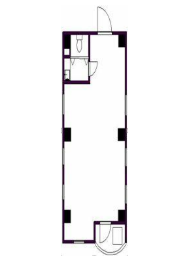
16.24 坪 (53.69m²)
※このサイトに記載がある賃貸条件は、敷金・保証金などの預かり金を除き、別途消費税がかかります。
麹町シャインビルの建物概要
設備詳細
| 空調 | 個別空調 |
|---|---|
| トイレ | 男女共用トイレ・室内 |
| 床仕様 | - |
| エレベータ | 1 基 |
| 駐車場設備 | - |
| その他 | 24時間利用可 / 光ファイバー / 新耐震基準 |
麹町シャインビルについて
都心のビジネスシーンを象徴する千代田区、その中心に位置する麹町4丁目に佇む麹町シャインビルは、1985年に竣工された耐震性能を備えたオフィスビルです。本ビルは、新宿通りに面しており、2つの鉄道路線と2つの駅が徒歩圏内にあり、更に3駅以上の利用が可能な絶好の立地条件を誇っています。この立地は、ビジネスの機動性とアクセスの良さを最大限に活かすことができる、まさに企業活動にとって理想的な環境を提供しています。 麹町シャインビルは、耐震性に優れた建築構造でありながら、機能的なオフィススペースを提供しております。全体を通して洗練されたデザインで、ビジネスの場にふさわしい品格を備えています。ビル内には1機のエレベーターが設置されており、スムーズな移動をサポートします。また、ビルの管理体制も整っており、テナント企業の皆様が安心して業務に専念できる環境が整えられています。 特に注目すべきはその立地の良さです。新宿通り沿いに位置しているため、東京都心へのアクセスが非常に便利です。近隣には飲食店やコンビニエンスストアなどが豊富にあり、ビジネスに必要なあらゆるサービスが手の届く範囲に揃っています。これにより、従業員の方々の日々の生活の利便性が大幅に向上します。 オフィスを構えるにあたって、立地、設備、アクセシビリティは最も重要な要素の一つです。麹町シャインビルはこれらすべてを兼ね備えており、企業の成長と発展を支える最適な基盤を提供します。ビジネスの中心地でありながら、快適なオフィス環境を求める企業にとって、麹町シャインビルは理想的な選択肢となるでしょう。このビルで新たなビジネスの歴史を刻むことを、私たちは心よりお待ちしております。
麹町シャインビルのこだわり
自分で探すより問い合わせる方が早いことがあります
WEB非公開物件があるから
オーナー様のご希望により「WEBでは非公開」にしている物件があります。 それらはWEBでいくら検索しても見つかりません。 先ずは条件などお知らせ頂けましたら非公開物件含め ピッタリのオフィスをご提案させて頂きます。 無理なお勧めはしておりませんので、お気軽にお問い合わせください。
対面でのご相談も受け付けております
ご来店も歓迎です
オフィス移転は社内・社外ともに非公開に行われることが殆どです。そのためアットオフィスでは、基本的に訪問によるコンサルティングを行っておりますが、ご来店の相談も歓迎です。お一人おひとりに親身にご対応させて頂きたい為、要予約とさせて頂いております。ご来店の際は先ずは下記よりご予約下さい。
番町/麹町/平河町エリアで麹町シャインビルに似た条件の物件
読込中...
麹町シャインビルと同じ最寄駅の物件
読込中...
| 取扱様態 | 仲介 |
|---|---|
| 取扱会社 | 株式会社 アットオフィス |