※このサイトに記載がある賃貸条件は、敷金・保証金などの預かり金を除き、別途消費税がかかります。
物件情報
設備詳細
| 空調 | 個別空調 |
|---|---|
| トイレ | 男女共用トイレ・室内 |
| 床仕様 | - |
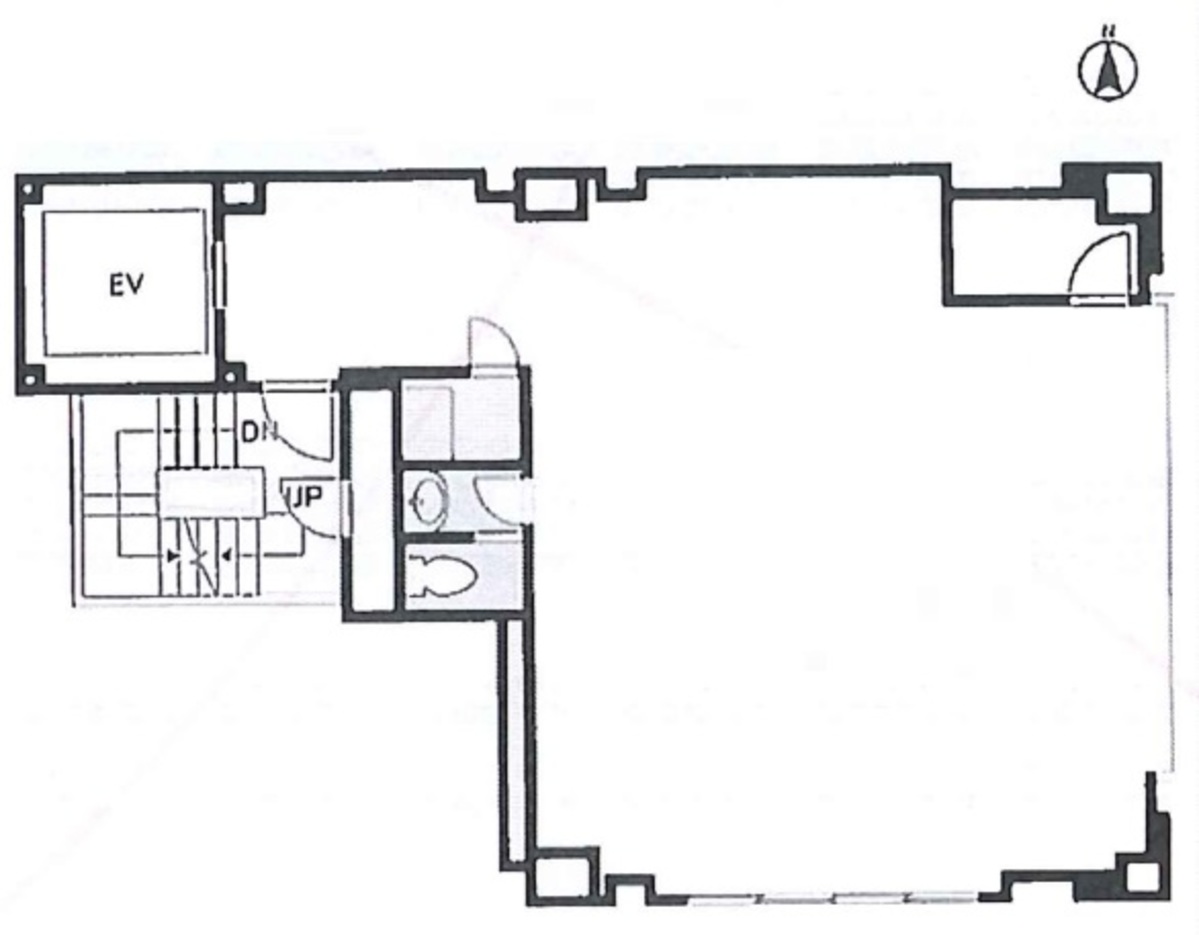
| エレベータ | 1 基 |
| 駐車場設備 | - |
| その他 | 機械警備 / 24時間利用可 / 光ファイバー / 新耐震基準 / オートロック / クリニック |
紅谷ビルの賃貸オフィス・事務所に関するお問い合わせ
紅谷ビルについて
紅谷ビルは、千代田区麹町4丁目に位置する、1992年に竣工された耐震性能を備えたオフィスビルです。その立地は、麹町駅から徒歩わずか1分という、ビジネスにおいて非常に重要なアクセスの利便性を提供します。都心への迅速な移動が可能で、ビジネスチャンスを最大化するための理想的な環境を提供しています。 このビルは、新耐震基準に則って建設された物件であり、安全性においても高い信頼性を誇ります。地震発生時のリスクを最小限に抑える設計が施されており、テナント企業にとっては従業員の安全と事業の継続性を保証する重要な要素となります。 設備面では、機械警備が完備されており、セキュリティの面でも安心して業務を行うことができます。24時間体制の警備システムが稼働しており、テナント企業の貴重な資産を守ります。また、ビル内には1機のエレベーターが設置されており、スムーズな移動をサポートしています。 ビル内には駐車場も設けられており、来客用や社員用の駐車スペースの確保も可能です。都心部では希少な駐車場完備のオフィスビルであるため、車を利用したビジネスのニーズにも対応しています。空き状況についてはお問い合わせいただくことで、ニーズに合わせた利用計画が立てられます。 紅谷ビルは、その立地、安全性、設備の充実度から、ビジネスの拠点として最適な選択肢の一つです。駅近でアクセスが良好なため、クライアントやパートナー企業とのミーティングにも便利ですし、新耐震基準に基づいた建築であることは、企業の信頼性向上にも貢献します。こうした紅谷ビルの特長を活かして、あなたのビジネスをさらに発展させることができるでしょう。
紅谷ビルのこだわり
自分で探すより問い合わせる方が早いことがあります
WEB非公開物件があるから
オーナー様のご希望により「WEBでは非公開」にしている物件があります。 それらはWEBでいくら検索しても見つかりません。 先ずは条件などお知らせ頂けましたら非公開物件含め ピッタリのオフィスをご提案させて頂きます。 無理なお勧めはしておりませんので、お気軽にお問い合わせください。
対面でのご相談も受け付けております
ご来店も歓迎です
オフィス移転は社内・社外ともに非公開に行われることが殆どです。そのためアットオフィスでは、基本的に訪問によるコンサルティングを行っておりますが、ご来店の相談も歓迎です。お一人おひとりに親身にご対応させて頂きたい為、要予約とさせて頂いております。ご来店の際は先ずは下記よりご予約下さい。
募集終了のテナント区画
| 階数 | 坪数 | 賃料 + 共益費 | 敷金/礼金敷金 礼金 | 検討 |
|---|---|---|---|---|
| 4階 | 21.76坪 (71.92m²) | 募集終了 | - | - |
| 5階 | 21.76坪 (71.93m²) | 募集終了 | - | - |
| 6階 | 21.76坪 (71.93m²) | 募集終了 | - | - |
読込中...
番町/麹町/平河町エリアで紅谷ビルに似た条件の物件
読込中...
| 取扱様態 | 仲介 |
|---|---|
| 取扱会社 | 株式会社 アットオフィス |