※このサイトに記載がある賃貸条件は、敷金・保証金などの預かり金を除き、別途消費税がかかります。
物件情報
設備詳細
| 空調 | 個別空調 |
|---|---|
| トイレ | - |
| 床仕様 | - |
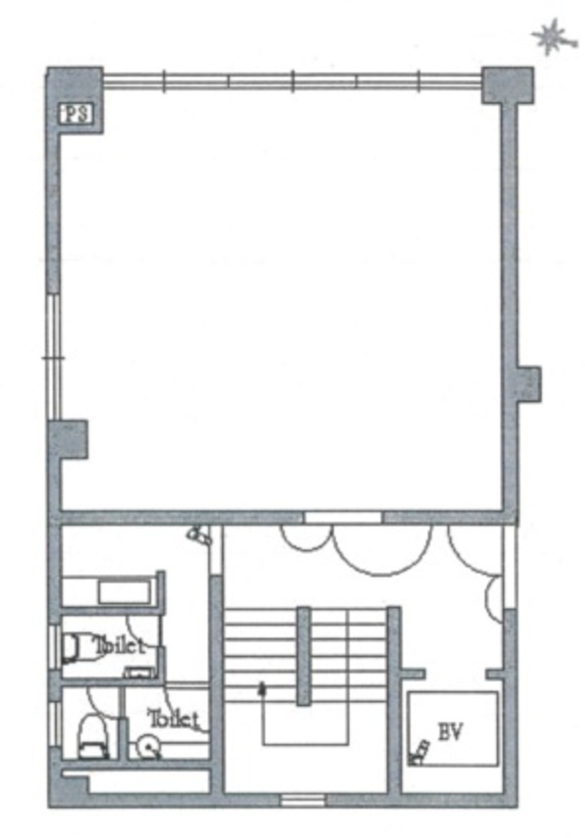
| エレベータ | 1 基 |
| 駐車場設備 | 空有 / 平置き駐車場 |
| その他 | 機械警備 / 24時間利用可 / 光ファイバー / 居抜き |
テラサワビルの賃貸オフィス・事務所に関するお問い合わせ
テラサワビルについて
**元赤坂テラサワビルの魅力とビジネス利点について** ビジネスの中心地である東京において、理想的なオフィススペースをお探しですか?元赤坂テラサワビルは、その探求において最適な解決策を提供します。このビルは港区元赤坂1丁目に立地し、赤坂御用地を望む絶好の環境に位置しています。元赤坂テラサワビルの特徴、立地、設備などを通じて、その独自の魅力とビジネスにおける利点をご紹介します。 **立地の利点** 元赤坂テラサワビルは、都心の中心に位置しながら、赤坂御用地の緑豊かな景観を楽しむことができる稀有なロケーションです。赤坂、六本木、霞が関といったビジネスエリアへのアクセスも容易で、都市の利便性と自然の潤いを兼ね備えています。顧客やビジネスパートナーを迎える際にも、印象的なロケーションは信頼と品格を与えることでしょう。 **ビルの特徴** 元赤坂テラサワビルは、白を基調とした洗練された外観が特徴です。建物自体が一種のブランドイメージを形成し、そこで働く企業の品質とステータスを象徴しています。中に足を踏み入れると、赤坂御用地の緑を望むことができる室内は、作業環境に静けさと落ち着きをもたらします。一日中忙しい業務に追われるビジネスパーソンにとって、心の安らぎを提供する空間です。 **設備について** ビル内には、1機のエレベーターが設置されており、スムーズな移動を支援します。また、白を基調としたクリーンでモダンな内装は、働く人々のクリエイティビティを刺激し、効率的なビジネス運営を促進します。セキュリティ面も充実しており、入居企業は安心して業務に専念できます。 **ビジネスにおける利点** 元赤坂テラサワビルでオフィスを構えることの最大の利点は、その立地と環境がもたらすビジネスチャンスとイメージ向上です。都心でありながら自然に囲まれた環境は、従業員の満足度を高め、生産性の向上にも繋がります。また、卓越したロケーションは、企業のブランド価値を高め、ビジネスの展開においても戦略的な利点となります。 **まとめ** 元赤坂テラサワビルは、立地、デザイン、設備が融合した理想的なオフィス環境を提供します。ビジネスの成功と成長を目指す企業にとって、最適なステージを提供するこのビルで、新たな一歩を踏み出しましょう。あなたのビジネスが次のレベルへと進むための最良の選択、それが元赤坂テラサワビルです。
テラサワビルのこだわり
自分で探すより問い合わせる方が早いことがあります
WEB非公開物件があるから
オーナー様のご希望により「WEBでは非公開」にしている物件があります。 それらはWEBでいくら検索しても見つかりません。 先ずは条件などお知らせ頂けましたら非公開物件含め ピッタリのオフィスをご提案させて頂きます。 無理なお勧めはしておりませんので、お気軽にお問い合わせください。
対面でのご相談も受け付けております
ご来店も歓迎です
オフィス移転は社内・社外ともに非公開に行われることが殆どです。そのためアットオフィスでは、基本的に訪問によるコンサルティングを行っておりますが、ご来店の相談も歓迎です。お一人おひとりに親身にご対応させて頂きたい為、要予約とさせて頂いております。ご来店の際は先ずは下記よりご予約下さい。
募集終了のテナント区画
| 階数 | 坪数 | 賃料 + 共益費 | 敷金/礼金敷金 礼金 | 検討 |
|---|---|---|---|---|
| 2階 | 23.4坪 (77.36m²) | 募集終了 | - | - |
| 4階 | 16.24坪 (53.68m²) | 募集終了 | - | - |
読込中...
赤坂/六本木/麻布エリアでテラサワビルに似た条件の物件
読込中...
| 取扱様態 | 仲介 |
|---|---|
| 取扱会社 | 株式会社 アットオフィス |