芝NKビル5階の賃貸情報
31.81 坪 (105.17m²)
※このサイトに記載がある賃貸条件は、敷金・保証金などの預かり金を除き、別途消費税がかかります。
芝NKビルの建物概要
設備詳細
| 空調 | - |
|---|---|
| トイレ | 男女別トイレ室内 |
| 床仕様 | - |
| エレベータ | 1 基 |
| 駐車場設備 | - |
| その他 | 新耐震基準 / 東京賃料が坪11000円以下 |
芝NKビルについて
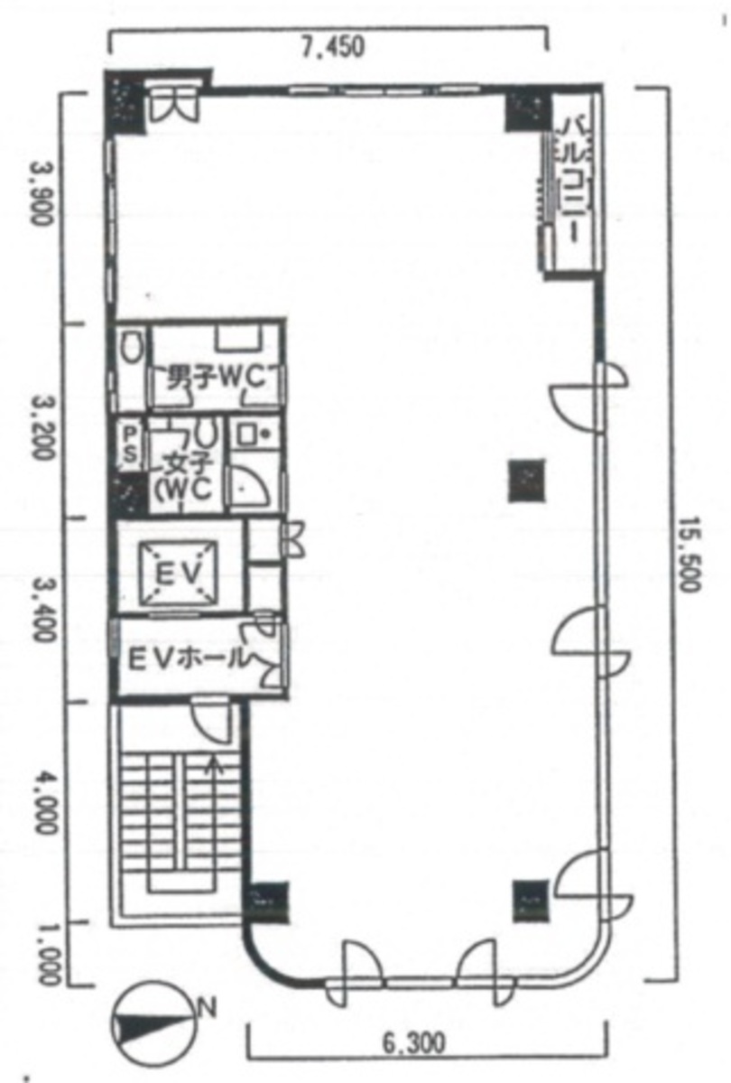
芝NKビルは、東京都港区芝3-22-7に位置する賃貸オフィスビルで、1992年に竣工した8階建ての建物です。このビルは基準階面積が約100坪となっており、特に中規模から大規模の企業に適したオフィス空間を提供しています。ビル内の貸室は約30坪で、L字型の間取りが特徴です。内部に男女別トイレを備え、明るく開放的な作りとなっているため、快適なオフィス環境を求めるテナントに最適です。 芝NKビルの立地は、ビジネスの中心地である東京都港区にあり、日比谷通り沿いの角地に位置しているため、視認性に優れています。最寄り駅である芝公園駅からは徒歩約5分、田町駅や赤羽橋駅からも徒歩圏内にあり、都営三田線をはじめとする複数の交通路線が利用可能でアクセスが非常に便利です。この立地条件は、ビジネスの機会を最大限に活用したい企業にとって大きな利点となります。 設備面では、ビルには1基のエレベーターが設置されており、1階には酒販売店が入居しています。周囲にはコンビニ、カフェ、信託銀行などの生活に便利な施設が充実しており、従業員の日々の生活やビジネスのニーズに応えられる環境が整っています。また、周辺には大型オフィスビルが集中しており、ビジネスの拠点としての活気ある雰囲気を感じることができます。 芝NKビルは、新耐震基準に適合した耐震性の高いオフィスビルであり、企業の安全性への配慮も抜かりありません。窓面が多く、自然光がたっぷりと入る明るいオフィス環境は、従業員のモチベーション向上にも寄与します。 総合的に見て、芝NKビルは立地の良さ、便利な設備、安全性の高さを兼ね備えた賃貸オフィスビルとして、様々なビジネスニーズに応えることができる魅力ある物件です。これらの特徴を生かし、企業が新たなビジネスの成功を目指すための理想的な拠点となるでしょう。
自分で探すより問い合わせる方が早いことがあります
WEB非公開物件があるから
オーナー様のご希望により「WEBでは非公開」にしている物件があります。 それらはWEBでいくら検索しても見つかりません。 先ずは条件などお知らせ頂けましたら非公開物件含め ピッタリのオフィスをご提案させて頂きます。 無理なお勧めはしておりませんので、お気軽にお問い合わせください。
対面でのご相談も受け付けております
ご来店も歓迎です
オフィス移転は社内・社外ともに非公開に行われることが殆どです。そのためアットオフィスでは、基本的に訪問によるコンサルティングを行っておりますが、ご来店の相談も歓迎です。お一人おひとりに親身にご対応させて頂きたい為、要予約とさせて頂いております。ご来店の際は先ずは下記よりご予約下さい。
近くのエリアで探してみる
浜松町/田町/芝公園エリアで芝NKビルに似た条件の物件
読込中...
芝NKビルと同じ最寄駅の物件
読込中...
| 取扱様態 | 仲介 |
|---|---|
| 取扱会社 | 株式会社 アットオフィス |