SANKI芝金杉橋ビル5階の賃貸情報
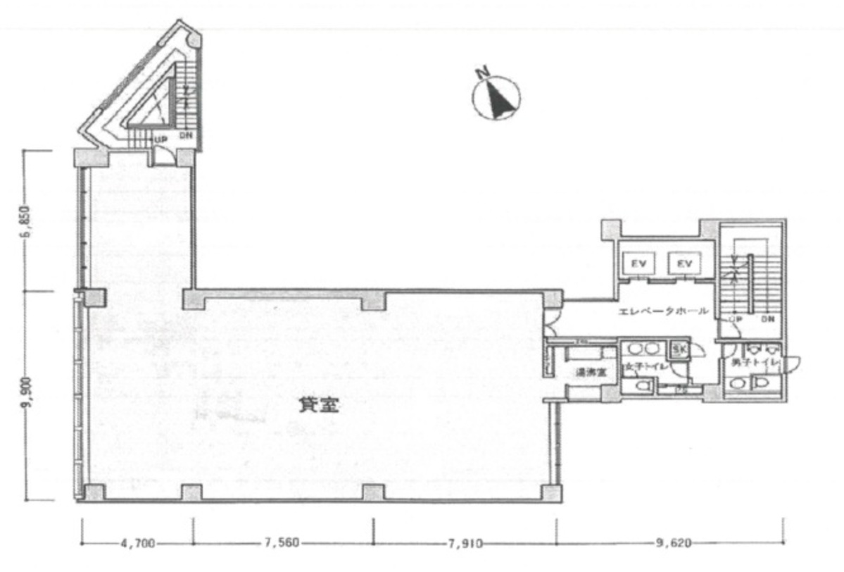
70.98 坪 (234.67m²)
※このサイトに記載がある賃貸条件は、敷金・保証金などの預かり金を除き、別途消費税がかかります。
SANKI芝金杉橋ビルの建物概要
設備詳細
| 空調 | 個別空調 |
|---|---|
| トイレ | 男女別トイレ |
| 床仕様 | OA対応床(フリーアクセス) |
| エレベータ | 2 基 / エレベーター有 |
| 駐車場設備 | 空有 / 機械式駐車場 / 敷地内駐車場 |
| その他 | 新耐震基準 / 機械警備 / 24時間利用可 / オートロック / 光ファイバー / クリニック |
SANKI芝金杉橋ビル5階の賃貸オフィス・事務所に関するお問い合わせ
SANKI芝金杉橋ビルについて
SANKI芝金杉橋ビルは、東京都港区芝1-4-3に位置する賃貸オフィスビルです。1995年に竣工し、鉄骨鉄筋コンクリート造の地上9階地下1階建で構成されています。この物件は新耐震基準に適合しており、安心してビジネスを展開することが可能です。基準階貸室面積は約70.99坪で、天井高は2,600mm以上と広々としており、2面採光による明るいオフィス環境を提供します。各階には契約面積外で利用可能な広い共用部があり、機能性と利便性を兼ね備えています。 立地としては、JR山手線・京浜東北線、東京モノレール線の浜松町駅から徒歩6分圏内、都営浅草線・都営大江戸線大門駅、都営三田線芝公園駅からも徒歩6分圏内と、複数の交通アクセスが可能です。羽田空港へのアクセスもスムーズで、出張が多いビジネスにも最適です。第一京浜沿いの角地に位置しており、視認性が高く来訪者にもわかりやすい点が魅力的です。 ビルの外観は、1階部分が石造りで、それ以上の階はグレーのタイル張りとなっており、中規模ながらも存在感のあるデザインです。1階には機械式の駐車場を完備しており、ビジネスの利便性を高めています。エントランスは白を基調とした明るい空間で、2基の乗用エレベーターを備え、快適な移動が可能です。 また、このオフィスビルの周辺環境も魅力の一つです。同じ並びに飲食店やコンビニがあり、横の川沿いにも美味しそうなお店が並んでいます。徒歩圏内には郵便局もあるため、ビジネスの際に必要なサービスが手軽に利用できます。 SANKI芝金杉橋ビルは、その高い安全性、優れたアクセス性、機能的で快適なオフィス環境、そして便利な周辺環境を備えた賃貸オフィスビルです。港区でのビジネス拠点をお探しの企業にとって、最適な選択肢の一つと言えるでしょう。
自分で探すより問い合わせる方が早いことがあります
WEB非公開物件があるから
オーナー様のご希望により「WEBでは非公開」にしている物件があります。 それらはWEBでいくら検索しても見つかりません。 先ずは条件などお知らせ頂けましたら非公開物件含め ピッタリのオフィスをご提案させて頂きます。 無理なお勧めはしておりませんので、お気軽にお問い合わせください。
対面でのご相談も受け付けております
ご来店も歓迎です
オフィス移転は社内・社外ともに非公開に行われることが殆どです。そのためアットオフィスでは、基本的に訪問によるコンサルティングを行っておりますが、ご来店の相談も歓迎です。お一人おひとりに親身にご対応させて頂きたい為、要予約とさせて頂いております。ご来店の際は先ずは下記よりご予約下さい。
近くのエリアで探してみる
浜松町/田町/芝公園エリアでSANKI芝金杉橋ビルに似た条件の物件
読込中...
SANKI芝金杉橋ビルと同じ最寄駅の物件
読込中...
| 取扱様態 | 仲介 |
|---|---|
| 取扱会社 | 株式会社 アットオフィス |