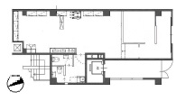
REGRARD SHIMBASHI1階の賃貸情報
20.58 坪 (68.05m²)
543,312円 (坪:26,400 円)
※このサイトに記載がある賃貸条件は、敷金・保証金などの預かり金を除き、別途消費税がかかります。
REGRARD SHIMBASHIの建物概要
設備詳細
| 空調 | 個別空調 |
|---|---|
| トイレ | 男女別トイレ室内 |
| 床仕様 | OA対応床(フリーアクセス) |
| エレベータ | 1 基 |
| 駐車場設備 | - |
| その他 | 機械警備 / 24時間利用可 / 光ファイバー / 新耐震基準 / 会議室 / 居抜き / 1階の物件 / セットアップ |
部屋の雰囲気
室内写真
REGRARD SHIMBASHI1階の賃貸オフィス・事務所に関するお問い合わせ
REGRARD SHIMBASHIについて
今日は東京都港区新橋に位置する魅力溢れるオフィスビル、「REGRARDSHIMBASHI」をご紹介させて頂きます。このビルは、1985年の竣工以来、ビジネスの中心地として多くの企業に愛され続けています。REGRARDSHIMBASHIビルは、基準階約20〜22坪の賃貸オフィススペースを提供し、2020年には共用部及び室内の大規模なリニューアル工事を経て、更に魅力的な空間へと生まれ変わりました。 立地に関しては、このビルは日比谷通りから少し入った閑静なオフィス街にあり、周囲には飲食店やコンビニが点在しており、ビジネスに必要なものがすぐに手に入ります。最寄り駅は御成門駅で、徒歩約4分の距離にあります。さらに、新橋駅と大門駅も徒歩10分圏内でアクセス可能。複数の交通機関を利用できるため、ビジネスの拠点として非常に便利です。 設備面では、REGRARDSHIMBASHIは、男女別トイレや給湯スペースといった基本的な設備はもちろん、24時間利用可能なフレキシブルな環境、OAフロア、個別空調システムを備えており、企業のニーズに合わせて快適なオフィスライフをサポートします。加えて、新耐震基準を満たした安心の構造で、万全のセキュリティ体制により、安心してご利用いただけます。 このビルの最大の魅力は、リニューアルによって生まれ変わった内装のおしゃれさと機能性。落ち着いた色合いの外観は、清潔感があり、ビジネスシーンに最適です。また、エレベーターは1基設置されており、スムーズな移動を可能にします。 「REGRARDSHIMBASHI」は、ビジネスの成功を後押しする最適な環境を提供します。立地の良さ、利便性、快適なオフィス環境をお求めの企業様には、ぜひお勧めの物件です。このビルで、新しいビジネスの可能性を広げてみませんか?お問い合わせを心よりお待ちしております。
REGRARD SHIMBASHIのこだわり
自分で探すより問い合わせる方が早いことがあります
WEB非公開物件があるから
オーナー様のご希望により「WEBでは非公開」にしている物件があります。 それらはWEBでいくら検索しても見つかりません。 先ずは条件などお知らせ頂けましたら非公開物件含め ピッタリのオフィスをご提案させて頂きます。 無理なお勧めはしておりませんので、お気軽にお問い合わせください。
対面でのご相談も受け付けております
ご来店も歓迎です
オフィス移転は社内・社外ともに非公開に行われることが殆どです。そのためアットオフィスでは、基本的に訪問によるコンサルティングを行っておりますが、ご来店の相談も歓迎です。お一人おひとりに親身にご対応させて頂きたい為、要予約とさせて頂いております。ご来店の際は先ずは下記よりご予約下さい。
近くのエリアで探してみる
新橋/虎ノ門/神谷町エリアでREGRARD SHIMBASHIに似た条件の物件
読込中...
REGRARD SHIMBASHIと同じ最寄駅の物件
読込中...
| 取扱様態 | 仲介 |
|---|---|
| 取扱会社 | 株式会社 アットオフィス |