※このサイトに記載がある賃貸条件は、敷金・保証金などの預かり金を除き、別途消費税がかかります。
物件情報
設備詳細
| 空調 | 個別空調 / セントラル空調 |
|---|---|
| トイレ | - |
| 床仕様 | - |
| エレベータ | 5 基 / エレベーター有 |
| 駐車場設備 | 空有 / 敷地内駐車場 |
| その他 | 機械警備 / 24時間利用可 / 光ファイバー / 管理人常駐 / 新耐震基準 / 大型ビル |
兼松ビルの賃貸オフィス・事務所に関するお問い合わせ
兼松ビルについて
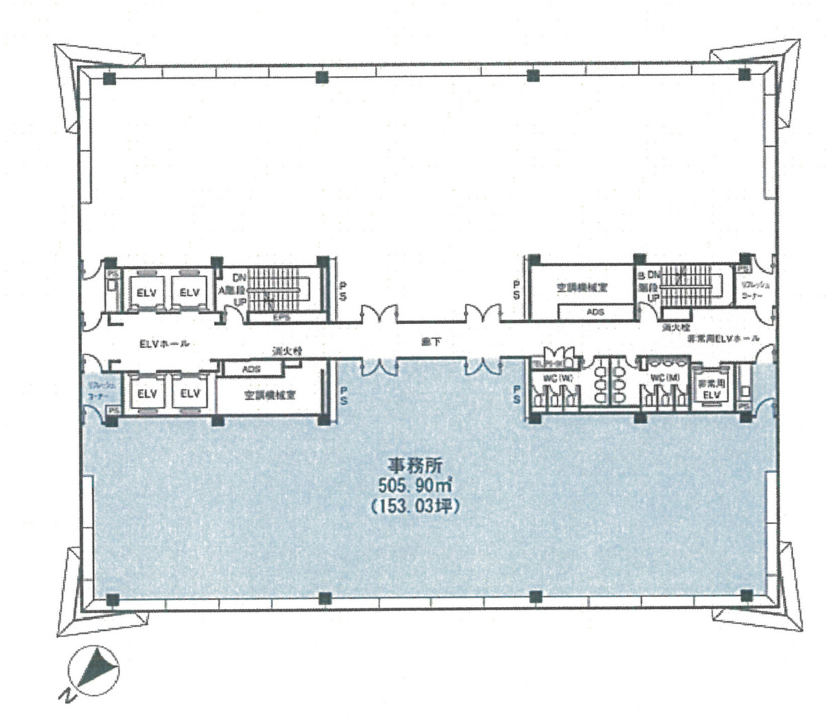
兼松ビルディング本館は、東京都中央区京橋2丁目に位置し、その立地は、ビジネスの中心地である東京駅からわずか徒歩8分、宝町駅からは徒歩1分、京橋駅からは徒歩3分という、非常にアクセスに優れた地点にあります。この地理的優位性は、ビジネスの機動性を高めるだけでなく、顧客やクライアントとのミーティングにも便利な条件を提供します。 このビルは、1993年に竣工された地上12階建て、地下1階の耐震性に優れたオフィスビルです。基準階面積は約300坪超という大規模なスペースを誇り、無柱の長方形空間が3方向からの採光を可能にしています。これにより、明るく開放的な作業環境を提供し、効率的かつ快適なオフィスライフを実現します。 エントランスは、天井高8mのガラス張りで、解放感に溢れる豊かなデザインが特徴です。この高級感あふれる受付エリアは、ビジネスパートナーを迎える際の印象を高めます。また、ビル内には24時間利用可能なセキュリティシステムが完備されており、有人管理と機械式警備を併用しています。これにより、入居企業はいつでも安心してビジネスを行うことができます。 ビルの1階には、正面側には大きなピロティ構造のオープンスペースがあり、裏手側には庭園風の石造りでカフェが併設されています。これらの施設は、社員や来客の憩いの場としても活用できるだけでなく、カジュアルなビジネスミーティングにも適しています。 周辺エリアには、大手企業の本社が数多く立ち並び、コンビニやメガバンクのATMなどの生活便利施設も充実しています。このように兼松ビルディング本館は、立地の良さ、施設の充実、安全性の高さを兼ね備えた、高品質なオフィス環境を提供することで、入居企業のビジネスの成功をサポートします。 これらの特長を踏まえると、兼松ビルディング本館は、動きやすい立地条件と、快適かつ高機能なオフィス環境を求める企業にとって、最適な拠点選びの一つと言えるでしょう。
自分で探すより問い合わせる方が早いことがあります
WEB非公開物件があるから
オーナー様のご希望により「WEBでは非公開」にしている物件があります。 それらはWEBでいくら検索しても見つかりません。 先ずは条件などお知らせ頂けましたら非公開物件含め ピッタリのオフィスをご提案させて頂きます。 無理なお勧めはしておりませんので、お気軽にお問い合わせください。
対面でのご相談も受け付けております
ご来店も歓迎です
オフィス移転は社内・社外ともに非公開に行われることが殆どです。そのためアットオフィスでは、基本的に訪問によるコンサルティングを行っておりますが、ご来店の相談も歓迎です。お一人おひとりに親身にご対応させて頂きたい為、要予約とさせて頂いております。ご来店の際は先ずは下記よりご予約下さい。
募集終了のテナント区画
読込中...
近くのエリアで探してみる
八重洲/日本橋/三越前エリアで兼松ビルに似た条件の物件
読込中...
| 取扱様態 | 仲介 |
|---|---|
| 取扱会社 | 株式会社 アットオフィス |