※このサイトに記載がある賃貸条件は、敷金・保証金などの預かり金を除き、別途消費税がかかります。
物件情報
設備詳細
| 空調 | - |
|---|---|
| トイレ | - |
| 床仕様 | - |
| エレベータ | 3 基 |
| 駐車場設備 | 空有 |
| その他 | 大型ビル / 光ファイバー / 機械警備 / 管理人常駐 |
三栄ビルの賃貸オフィス・事務所に関するお問い合わせ
三栄ビルについて
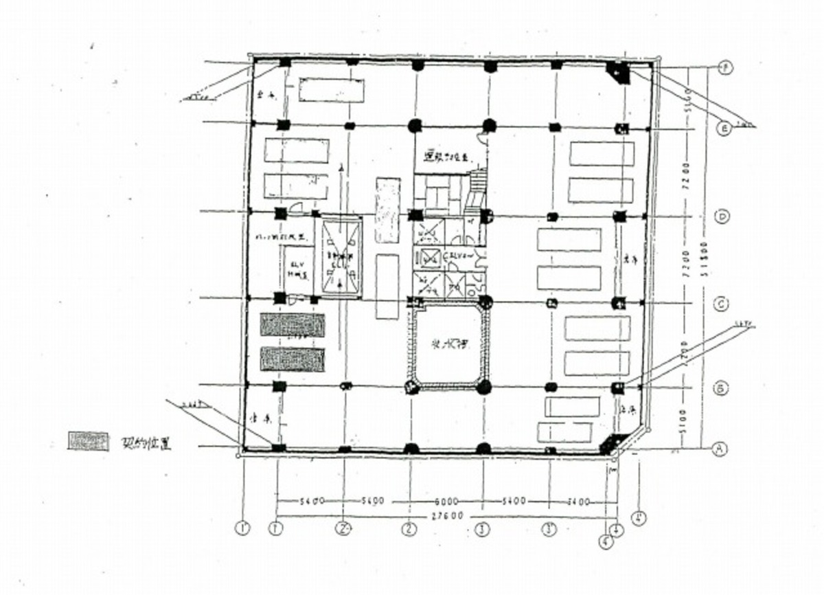
東京都中央区京橋1-5-8に構える三栄ビルは、ビジネスと歴史が融合する地域の中心に位置するオフィスビルです。その立地は、東京メトロ銀座線京橋駅から徒歩わずか1分、JR東京駅からは徒歩5分という、抜群のアクセスを誇ります。加えて、東京メトロ日本橋駅からも徒歩5分と、三方向からの利便性はビジネスの機動性を高めるでしょう。 1972年の竣工以来、三栄ビルは地下2階、地上9階建ての堂々たる構造で、2006年5月のリニューアルにより最新の設備が導入されました。延床面積は3,022坪、基準階面積は225坪という広々とした空間が特徴で、柱がないセンターコア型のオフィスフロアは、自由度の高いレイアウトを実現可能です。これにより、どのようなビジネスニーズにも柔軟に対応する空間を提供します。 オフィスビルとしての機能性だけでなく、周辺環境もビジネスチャンスに満ちています。京橋エリアはオフィスビルや商業施設が立ち並び、活気あふれるビジネス街として知られています。三栄ビルからは、多彩な飲食店、銀行、郵便局などがすぐ近くにあり、日々のビジネス活動をサポートします。 安心の24時間有人管理とOAフロアの設置も、三栄ビルの魅力の一つです。セキュリティ面での安心感と、最先端のオフィス環境を求める企業にとって、最適な選択肢となるでしょう。 重厚なエントランスが印象的な三栄ビルは、歴史を感じさせる建物でありながら、最新の設備と機能性を併せ持つ、ビジネスの拠点として理想的な空間です。その立地、設備、そして周辺環境が融合した三栄ビルは、あなたのビジネスをさらに飛躍させるための最良の場所であることをお約束します。
三栄ビルのこだわり
自分で探すより問い合わせる方が早いことがあります
WEB非公開物件があるから
オーナー様のご希望により「WEBでは非公開」にしている物件があります。 それらはWEBでいくら検索しても見つかりません。 先ずは条件などお知らせ頂けましたら非公開物件含め ピッタリのオフィスをご提案させて頂きます。 無理なお勧めはしておりませんので、お気軽にお問い合わせください。
対面でのご相談も受け付けております
ご来店も歓迎です
オフィス移転は社内・社外ともに非公開に行われることが殆どです。そのためアットオフィスでは、基本的に訪問によるコンサルティングを行っておりますが、ご来店の相談も歓迎です。お一人おひとりに親身にご対応させて頂きたい為、要予約とさせて頂いております。ご来店の際は先ずは下記よりご予約下さい。
募集終了のテナント区画
| 階数 | 坪数 | 賃料 + 共益費 | 敷金/礼金敷金 礼金 | 検討 |
|---|---|---|---|---|
| B1階 | 99.71坪 (329.62m²) | 募集終了 | - | - |
| B1階 | 64.44坪 (213.02m²) | 募集終了 | - | - |
| B1階 | 11.21坪 (37.06m²) | 募集終了 | - | - |
| 1階 | 160坪 (528.92m²) | 募集終了 | - | - |
| 1階 | 38.6坪 (127.6m²) | 募集終了 | - | - |
| 4階 | 225.77坪 (746.35m²) | 募集終了 | - | - |
| 5階 | 225.77坪 (746.35m²) | 募集終了 | - | - |
| 6階 | 225.77坪 (746.35m²) | 募集終了 | - | - |
| 7階 | 225.77坪 (746.35m²) | 募集終了 | - | - |
| 8階 | 225坪 (743.8m²) | 募集終了 | - | - |
| 9階 | 112.88坪 (373.16m²) | 募集終了 | - | - |
読込中...
近くのエリアで探してみる
八重洲/日本橋/三越前エリアで三栄ビルに似た条件の物件
読込中...
| 取扱様態 | 仲介 |
|---|---|
| 取扱会社 | 株式会社 アットオフィス |