※このサイトに記載がある賃貸条件は、敷金・保証金などの預かり金を除き、別途消費税がかかります。
物件情報
設備詳細
| 空調 | 個別空調 |
|---|---|
| トイレ | 男女共用トイレ・室内 |
| 床仕様 | - |
| エレベータ | 1 基 |
| 駐車場設備 | - |
| その他 | 24時間利用可 / 光ファイバー / 店舗可(飲食不可) / 美容系店舗 |
ナルセビルの賃貸オフィス・事務所に関するお問い合わせ
ナルセビルについて
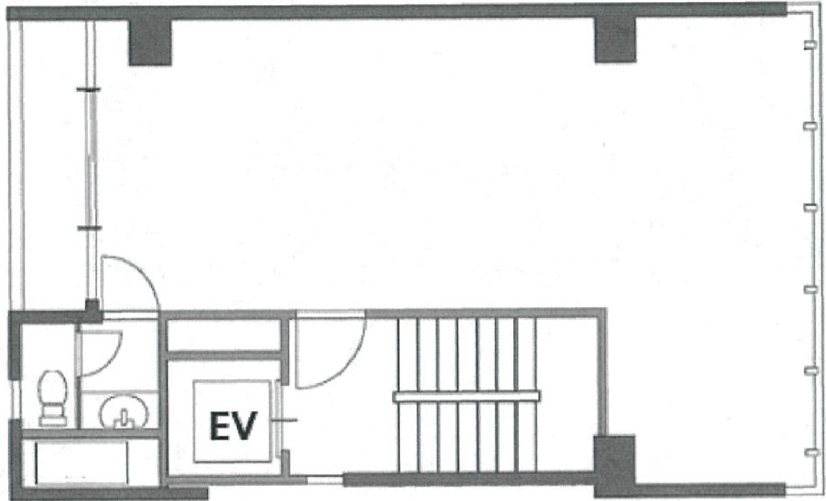
ナルセビルディングは、東京都渋谷区渋谷3丁目に位置する質の高いオフィス賃貸物件です。1973年に竣工したこのビルは、現代のビジネスニーズに合わせてしっかりと維持管理されており、セキュリティも充実しています。特に、その黒っぽいガラス張りの外観は、周囲のビル群の中でも一際目を引きます。また、基準階は約20坪となっており、小規模から中規模の企業に適した広さです。 このビルの特徴の一つは、柱のない間取りにより、オフィスレイアウトの自由度が高く、効率的なワークスペースの構築が可能である点です。さらに、床から天井まで広がる大きな窓は、豊富な自然光を室内に取り込み、明るく快適なオフィス環境を提供します。室内には専用のトイレも設置されており、給湯スペースも備えています。 立地においても、ナルセビルディングは渋谷駅から徒歩5分という抜群のアクセスの良さを誇ります。明治通り沿いに位置し、渋谷駅東急南口、新南口のほぼ中間にあるため、通勤のしやすさはもちろん、周辺の飲食店や商業施設の利便性も高いです。低層階には飲食店テナントが入っており、ランチタイムや仕事終わりの食事にも困ることはありません。 ビルの周辺環境も魅力の一つです。同じ並びにはファミリーマート渋谷三丁目店があり、徒歩2分の距離には渋谷三郵便局があります。これらの施設は日々の業務における利便性をさらに高めています。 ナルセビルディングは、立地、設備、環境の三拍子が揃った賃貸オフィス物件です。特にIT関連やベンチャー企業にとっては、ビジネスの拠点として最適な条件を備えています。このビルで新たなビジネスの可能性を広げてみませんか?
ナルセビルのこだわり
自分で探すより問い合わせる方が早いことがあります
WEB非公開物件があるから
オーナー様のご希望により「WEBでは非公開」にしている物件があります。 それらはWEBでいくら検索しても見つかりません。 先ずは条件などお知らせ頂けましたら非公開物件含め ピッタリのオフィスをご提案させて頂きます。 無理なお勧めはしておりませんので、お気軽にお問い合わせください。
対面でのご相談も受け付けております
ご来店も歓迎です
オフィス移転は社内・社外ともに非公開に行われることが殆どです。そのためアットオフィスでは、基本的に訪問によるコンサルティングを行っておりますが、ご来店の相談も歓迎です。お一人おひとりに親身にご対応させて頂きたい為、要予約とさせて頂いております。ご来店の際は先ずは下記よりご予約下さい。
募集終了のテナント区画
| 階数 | 坪数 | 賃料 + 共益費 | 敷金/礼金敷金 礼金 | 検討 |
|---|---|---|---|---|
| 2階 | 18.5坪 (61.15m²) | 募集終了 | - | - |
| 3階 | 40坪 (132.23m²) | 募集終了 | - | - |
| 3階 | 18.5坪 (61.16m²) | 募集終了 | - | - |
| 4階 | 18.5坪 (61.16m²) | 募集終了 | - | - |
| 5階 | 18坪 (59.5m²) | 募集終了 | - | - |
| 7階 | 18.5坪 (61.16m²) | 募集終了 | - | - |
| 8階 | 18.5坪 (61.16m²) | 募集終了 | - | - |
読込中...
渋谷エリアでナルセビルに似た条件の物件
読込中...
| 取扱様態 | 仲介 |
|---|---|
| 取扱会社 | 株式会社 アットオフィス |