※このサイトに記載がある賃貸条件は、敷金・保証金などの預かり金を除き、別途消費税がかかります。
物件情報
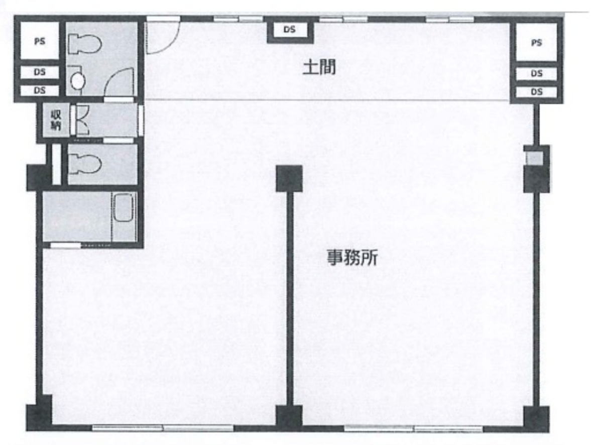
設備詳細
| 空調 | 個別空調 |
|---|---|
| トイレ | 男女共用トイレ・室内 |
| 床仕様 | - |
| エレベータ | 1 基 |
| 駐車場設備 | - |
| その他 | オートロック / 光ファイバー / 機械警備 / 保証金・敷金+礼金が3か月以下 |
渋谷コープの賃貸オフィス・事務所に関するお問い合わせ
渋谷コープについて
渋谷コープビル、東京都渋谷区桜丘町14-10に位置し、渋谷駅からたったの徒歩4分という驚異のアクセスを誇るこのオフィスビルは、ビジネスの中心地での活動を望む皆様に最適な選択となることでしょう。1963年に竣工した歴史を持つこのビルですが、エアコン、トイレ、キッチンといった内部設備はしっかりと整備され、現代のオフィスニーズに応える仕様となっています。さらに1フロアあたり30坪の広さは、スタートアップから既に成長期に入った企業まで、様々な規模のビジネスに適応します。 白を基調とした清潔感溢れる外観は、企業イメージを明るく前向きなものにしてくれます。また、個別空調と光ファイバー完備という点も、快適なオフィス環境を求める方々には見逃せないポイントです。角地に位置することで視認性が高く、エレベーターも1機設置されているため、利便性も抜群です。 交通のアクセスに関しては、複数の路線が利用可能であり、渋谷駅のJR南口からのアクセスの良さは、ビジネスにおける大きなメリットと言えるでしょう。また、1階には駐車スペースも併設されており、車での来客にも柔軟に対応できます。 渋谷コープビルは、その立地の良さ、充実した設備、そして快適なオフィス環境を提供することで、皆様のビジネスの成功をサポートいたします。あなたのビジネスを次のレベルに引き上げるための最適なスペースを、ぜひ渋谷コープビルで見つけてください。ご内見、お問い合わせを心よりお待ちしております。
渋谷コープのこだわり
自分で探すより問い合わせる方が早いことがあります
WEB非公開物件があるから
オーナー様のご希望により「WEBでは非公開」にしている物件があります。 それらはWEBでいくら検索しても見つかりません。 先ずは条件などお知らせ頂けましたら非公開物件含め ピッタリのオフィスをご提案させて頂きます。 無理なお勧めはしておりませんので、お気軽にお問い合わせください。
対面でのご相談も受け付けております
ご来店も歓迎です
オフィス移転は社内・社外ともに非公開に行われることが殆どです。そのためアットオフィスでは、基本的に訪問によるコンサルティングを行っておりますが、ご来店の相談も歓迎です。お一人おひとりに親身にご対応させて頂きたい為、要予約とさせて頂いております。ご来店の際は先ずは下記よりご予約下さい。
募集終了のテナント区画
| 階数 | 坪数 | 賃料 + 共益費 | 敷金/礼金敷金 礼金 | 検討 |
|---|---|---|---|---|
| 1階 | 39坪 (128.92m²) | 募集終了 | - | - |
| 3階 | 22.54坪 (74.54m²) | 募集終了 | - | - |
| 5階 | 11.38坪 (37.65m²) | 募集終了 | - | - |
| 6階 | 25.23坪 (83.43m²) | 募集終了 | - | - |
| 7階 | 15.08坪 (49.88m²) | 募集終了 | - | - |
読込中...
渋谷エリアで渋谷コープに似た条件の物件
読込中...
| 取扱様態 | 仲介 |
|---|---|
| 取扱会社 | 株式会社 アットオフィス |