※このサイトに記載がある賃貸条件は、敷金・保証金などの預かり金を除き、別途消費税がかかります。
物件情報
設備詳細
| 空調 | 個別空調 |
|---|---|
| トイレ | 男女別トイレ / 男女別トイレ室外 |
| 床仕様 | OA対応床(フリーアクセス) |
| エレベータ | 1 基 / エレベーター有 |
| 駐車場設備 | 空有 / 敷地内駐車場 |
| その他 | 光ファイバー / 24時間利用可 / 東京賃料が坪11000円以下 |
北新宿君嶋ビルの賃貸オフィス・事務所に関するお問い合わせ
北新宿君嶋ビルについて
ビルのおすすめポイント 北新宿君嶋ビルは小滝橋交差点に面し、説明しやすい立地3駅以上利用できる好立地です。耐震補強工事済み。
北新宿君嶋ビルのこだわり
自分で探すより問い合わせる方が早いことがあります
WEB非公開物件があるから
オーナー様のご希望により「WEBでは非公開」にしている物件があります。 それらはWEBでいくら検索しても見つかりません。 先ずは条件などお知らせ頂けましたら非公開物件含め ピッタリのオフィスをご提案させて頂きます。 無理なお勧めはしておりませんので、お気軽にお問い合わせください。
WEBから条件問い合わせをする(無料)
対面でのご相談も受け付けております
ご来店も歓迎です
オフィス移転は社内・社外ともに非公開に行われることが殆どです。そのためアットオフィスでは、基本的に訪問によるコンサルティングを行っておりますが、ご来店の相談も歓迎です。お一人おひとりに親身にご対応させて頂きたい為、要予約とさせて頂いております。ご来店の際は先ずは下記よりご予約下さい。
来店予約をする
募集終了のテナント区画
| 階数 | 坪数 | 賃料 + 共益費 | 敷金/礼金敷金 礼金 | 検討 |
|---|---|---|---|---|
| 5階 | 20.85坪 (68.93m²) | 募集終了 | - | - |
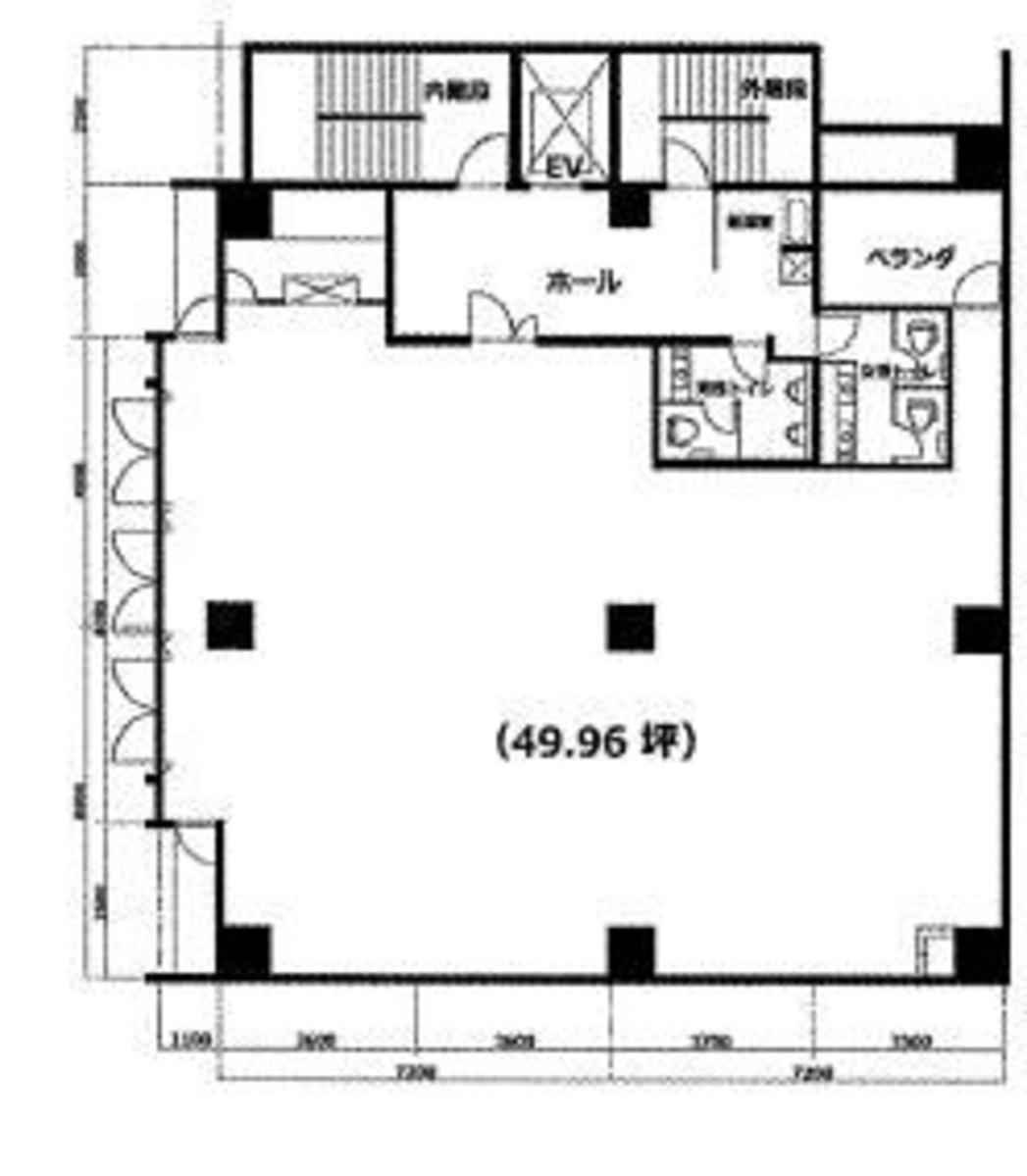
| 6階 | 49.96坪 (165.16m²) | 募集終了 | - | - |
| 8階 | 49.96坪 (165.16m²) | 募集終了 | - | - |
| 9階 | 49.96坪 (165.16m²) | 募集終了 | - | - |
| 12階 | 28.94坪 (95.67m²) | 募集終了 | - | - |
読込中...
大久保/高田馬場エリアで北新宿君嶋ビルに似た条件の物件
読込中...
| 取扱様態 | 仲介 |
|---|---|
| 取扱会社 | 株式会社 アットオフィス |