オーツービル4階の賃貸情報
22.25 坪 (73.56m²)
※このサイトに記載がある賃貸条件は、敷金・保証金などの預かり金を除き、別途消費税がかかります。
オーツービルの建物概要
設備詳細
| 空調 | - |
|---|---|
| トイレ | - |
| 床仕様 | - |
| エレベータ | 1 基 |
| 駐車場設備 | - |
| その他 | 機械警備 / オートロック / 新耐震基準 |
オーツービル4階の賃貸オフィス・事務所に関するお問い合わせ
オーツービルについて
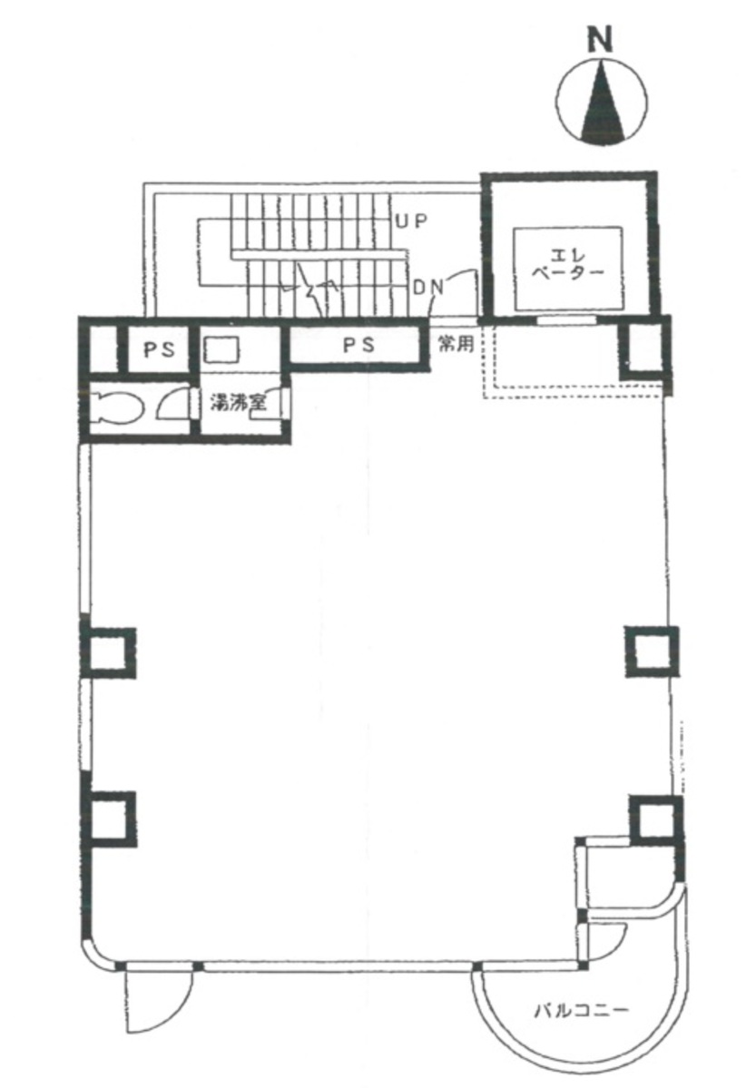
渋谷区広尾に位置するオーツービルディングは、恵比寿駅から徒歩約4分という便利な立地にある賃貸事務所ビルです。1990年に竣工したこの物件は、地上10階建てで、新耐震基準に適合する耐震構造を備えています。ビルの基準階面積は約22坪で、室内は柱がなく、正方形に近い間取りのためレイアウトの自由度が高く、バルコニーも付いています。これは、特に小規模から中規模の企業にとって非常に魅力的な特徴でしょう。 オーツービルディングは、個別空調システム、男女別トイレ、機械警備システムなど、現代のオフィスニーズに応える充実した設備を備えています。エレベーターから直接オフィス室内に入ることができるダイレクトインの仕様は、プライバシーとセキュリティの両方を確保します。 恵比寿という立地は、オーツービルディングにとって大きな価値をもたらします。恵比寿駅はJR山手線、埼京線、湘南新宿ライン、東京メトロ日比谷線が乗り入れており、都心へのアクセスが非常に便利です。駅周辺には飲食店やカフェが充実しており、ビジネスアフターの社交場としても最適です。 さらに、ビルの前面が明治通りに面していることで、良好な視認性と採光を確保しています。周辺には郵便局やコンビニ、三井住友銀行やローソンなどの生活便利施設が揃っており、ビジネスに欠かせないサポート環境が整っています。 オーツービルディングは、その立地、設備、耐震性能を兼ね備えた賃貸事務所物件として、小規模から中規模の企業にとって理想的なオフィススペースを提供します。恵比寿というビジネスと生活の利便性を兼ね備えたロケーションは、企業の成長と従業員の満足度向上に寄与することでしょう。
オーツービルのこだわり
自分で探すより問い合わせる方が早いことがあります
WEB非公開物件があるから
オーナー様のご希望により「WEBでは非公開」にしている物件があります。 それらはWEBでいくら検索しても見つかりません。 先ずは条件などお知らせ頂けましたら非公開物件含め ピッタリのオフィスをご提案させて頂きます。 無理なお勧めはしておりませんので、お気軽にお問い合わせください。
対面でのご相談も受け付けております
ご来店も歓迎です
オフィス移転は社内・社外ともに非公開に行われることが殆どです。そのためアットオフィスでは、基本的に訪問によるコンサルティングを行っておりますが、ご来店の相談も歓迎です。お一人おひとりに親身にご対応させて頂きたい為、要予約とさせて頂いております。ご来店の際は先ずは下記よりご予約下さい。
近くのエリアで探してみる
恵比寿/代官山/広尾エリアでオーツービルに似た条件の物件
読込中...
オーツービルと同じ最寄駅の物件
読込中...
| 取扱様態 | 仲介 |
|---|---|
| 取扱会社 | 株式会社 アットオフィス |