第2田中ビルの賃料条件
| 階数 | 坪数 | 賃料 + 共益費 | 敷金/礼金敷金 礼金 | 検討 |
|---|---|---|---|---|
| 6階 | 96.54坪 (319.17m²) | 1,500,000円 (坪:15,536 円) | 8ヶ月 1ヶ月8ヶ月/1ヶ月 |
※このサイトに記載がある賃貸条件は、敷金・保証金などの預かり金を除き、別途消費税がかかります。
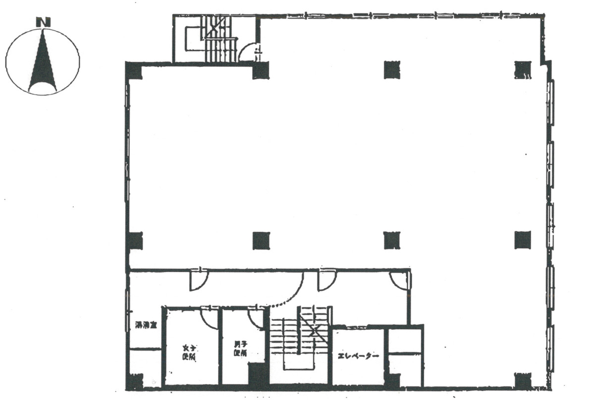
物件情報
設備詳細
| 空調 | 個別空調 |
|---|---|
| トイレ | 男女別トイレ室外 |
| 床仕様 | OA対応床(フリーアクセス) |
| エレベータ | 1 基 |
| 駐車場設備 | 空無 |
| その他 | 機械警備 / 24時間利用可 / 光ファイバー / 居抜き |
第2田中ビルの賃貸オフィス・事務所に関するお問い合わせ
第2田中ビルについて
ビルのおすすめポイント 第2田中ビルは靖国通り面し、窓からは緑が、男女トイレ別で部屋外3駅以上利用できる好立地です。全面リニューアルしました。トイレは男女別になっています。勿論、24時間利用可能です。月極駐車場がビル内にあります。機械警備完備。耐震補強工事済み。
第2田中ビルのこだわり
自分で探すより問い合わせる方が早いことがあります
WEB非公開物件があるから
オーナー様のご希望により「WEBでは非公開」にしている物件があります。 それらはWEBでいくら検索しても見つかりません。 先ずは条件などお知らせ頂けましたら非公開物件含め ピッタリのオフィスをご提案させて頂きます。 無理なお勧めはしておりませんので、お気軽にお問い合わせください。
WEBから条件問い合わせをする(無料)
対面でのご相談も受け付けております
ご来店も歓迎です
オフィス移転は社内・社外ともに非公開に行われることが殆どです。そのためアットオフィスでは、基本的に訪問によるコンサルティングを行っておりますが、ご来店の相談も歓迎です。お一人おひとりに親身にご対応させて頂きたい為、要予約とさせて頂いております。ご来店の際は先ずは下記よりご予約下さい。
来店予約をする
募集終了のテナント区画
| 階数 | 坪数 | 賃料 + 共益費 | 敷金/礼金敷金 礼金 | 検討 |
|---|---|---|---|---|
| 8階 | 66.78坪 (220.77m²) | 募集終了 | - | - |
| 12階 | 48.47坪 (160.2m²) | 募集終了 | - | - |
読込中...
四ツ谷/信濃町エリアで第2田中ビルに似た条件の物件
読込中...
| 取扱様態 | 仲介 |
|---|---|
| 取扱会社 | 株式会社 アットオフィス |