第3田中ビル6階の賃貸情報
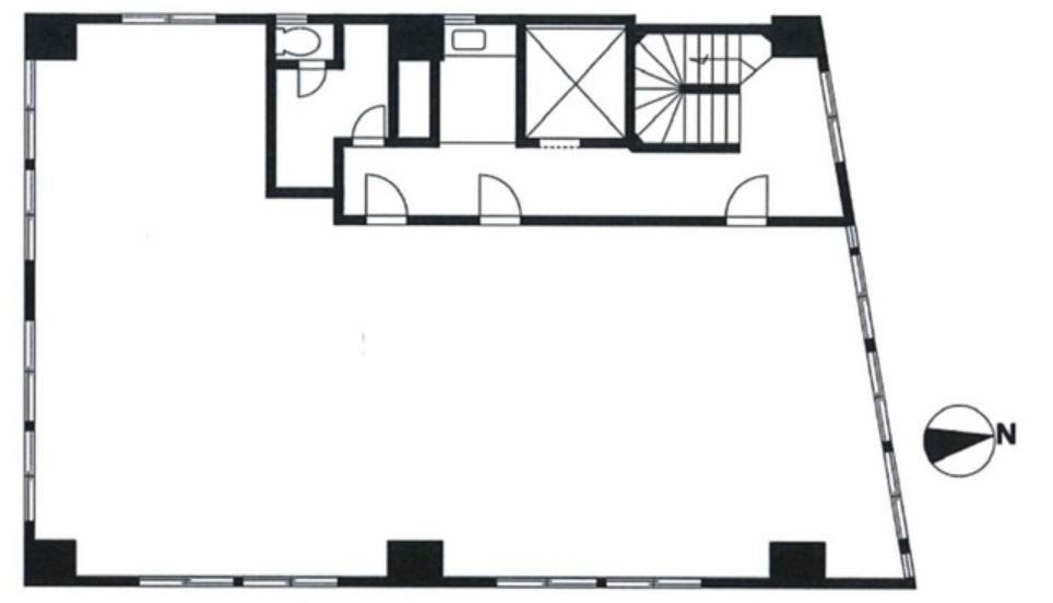
30 坪 (99.17m²)
※このサイトに記載がある賃貸条件は、敷金・保証金などの預かり金を除き、別途消費税がかかります。
第3田中ビルの建物概要
設備詳細
| 空調 | - |
|---|---|
| トイレ | - |
| 床仕様 | - |
| エレベータ | 1 基 |
| 駐車場設備 | - |
| その他 | 機械警備 / 光ファイバー / 東京賃料が坪11000円以下 |
第3田中ビルについて
新宿区片町に所在する「第3田中」は、地上8階・地下1階建ての事業用建物です。都営新宿線「曙橋駅」から徒歩3分、東京メトロ南北線「四ツ谷駅」および丸ノ内線「四谷三丁目駅」からもそれぞれ徒歩9分の位置にあります。複数路線・駅からのアクセスが可能な立地です。 建物には機械警備システムと光ファイバーが導入されています。エレベーターは1基設置されており、複数フロアにわたるオフィスや事業所の運営にも対応できる造りとなっています。地下1階も含め、さまざまな業種や用途に応じた利用が想定される構造です。 オフィスの分散利用やフロアごとの用途分けも検討しやすい建物規模となっているため、拠点の集約や従業員数に応じたレイアウトの検討が可能です。周辺はオフィスや飲食店が点在するエリアで、ビジネス活動の拠点として利用する法人様にも適した環境といえます。 詳細はお問い合わせください。
第3田中ビルのこだわり
自分で探すより問い合わせる方が早いことがあります
WEB非公開物件があるから
オーナー様のご希望により「WEBでは非公開」にしている物件があります。 それらはWEBでいくら検索しても見つかりません。 先ずは条件などお知らせ頂けましたら非公開物件含め ピッタリのオフィスをご提案させて頂きます。 無理なお勧めはしておりませんので、お気軽にお問い合わせください。
対面でのご相談も受け付けております
ご来店も歓迎です
オフィス移転は社内・社外ともに非公開に行われることが殆どです。そのためアットオフィスでは、基本的に訪問によるコンサルティングを行っておりますが、ご来店の相談も歓迎です。お一人おひとりに親身にご対応させて頂きたい為、要予約とさせて頂いております。ご来店の際は先ずは下記よりご予約下さい。
四ツ谷/信濃町エリアで第3田中ビルに似た条件の物件
読込中...
第3田中ビルと同じ最寄駅の物件
読込中...
| 取扱様態 | 仲介 |
|---|---|
| 取扱会社 | 株式会社 アットオフィス |