第3山田ビルの賃料条件
| 階数 | 坪数 | 賃料 + 共益費 | 敷金/礼金敷金 礼金 | 検討 |
|---|---|---|---|---|
| 6階 | 101.46坪 (335.4m²) | 1,420,440円 (坪:14,000 円) | 10ヶ月 無10ヶ月/無 |
※このサイトに記載がある賃貸条件は、敷金・保証金などの預かり金を除き、別途消費税がかかります。
物件情報
設備詳細
| 空調 | 個別空調 |
|---|---|
| トイレ | 男女別トイレ室内 |
| 床仕様 | OA対応床(フリーアクセス) |
| エレベータ | 2 基 |
| 駐車場設備 | - |
| その他 | 機械警備 / 24時間利用可 / 光ファイバー / 新耐震基準 |
第3山田ビルの賃貸オフィス・事務所に関するお問い合わせ
第3山田ビルについて
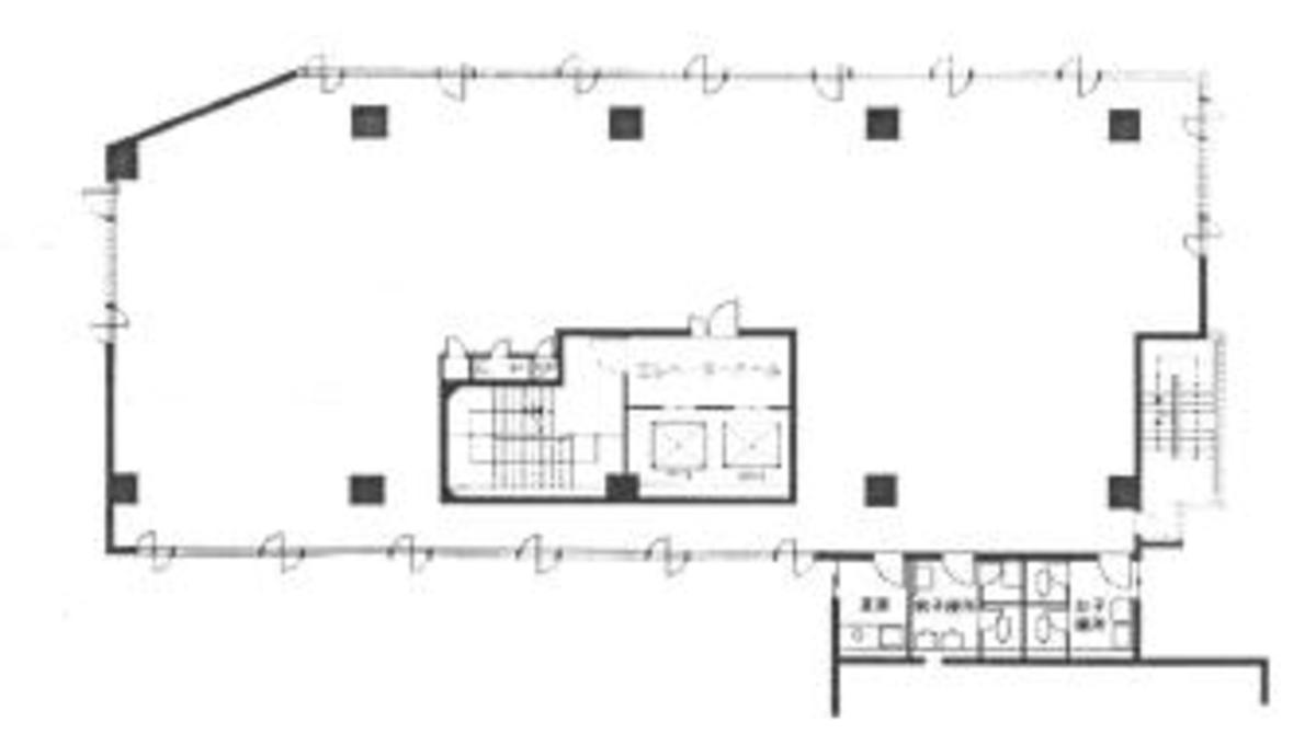
【第3山田ビル】は、東京の中心部に位置し、新宿区愛住町にある大型オフィスビルです。1987年に竣工し、新耐震基準に適合しているため、安心してご利用いただけます。地上11階建てのビルは、1フロアあたり約100坪の広さを持ち、1フロア1テナントの構造がビジネスの効率性を高めます。 交通アクセスも非常に優れており、都営新宿線の曙橋駅から徒歩わずか2分、新宿三丁目駅からは徒歩7分と、利便性が高い立地です。また、靖国通り沿いに面しており、視認性も抜群です。ビルの周辺にはコンビニや郵便局があり、日常の業務にも便利です。さらに、徒歩10分圏内には東京メトロ丸ノ内線の四ツ谷駅も位置しており、移動手段が多様です。 設備面でも充実しており、OAフロアや個別空調、機械警備システムを完備しています。24時間利用可能なため、フレキシブルな働き方にも対応します。エレベーターも2基設置されており、スムーズな移動が可能です。男女別トイレが設置され、快適なオフィス環境を提供します。 このエリアは、他の主要駅周辺に比べて賃料がリーズナブルで、コストを重視される方にとっては非常に魅力的な選択肢です。靖国通りに面しているため、ビルの存在感も高く、クライアントからも見つけやすい場所にあります。ぜひ、第3山田ビルで快適かつ効率的なオフィス環境をご検討ください。
第3山田ビルのこだわり
自分で探すより問い合わせる方が早いことがあります
WEB非公開物件があるから
オーナー様のご希望により「WEBでは非公開」にしている物件があります。 それらはWEBでいくら検索しても見つかりません。 先ずは条件などお知らせ頂けましたら非公開物件含め ピッタリのオフィスをご提案させて頂きます。 無理なお勧めはしておりませんので、お気軽にお問い合わせください。
対面でのご相談も受け付けております
ご来店も歓迎です
オフィス移転は社内・社外ともに非公開に行われることが殆どです。そのためアットオフィスでは、基本的に訪問によるコンサルティングを行っておりますが、ご来店の相談も歓迎です。お一人おひとりに親身にご対応させて頂きたい為、要予約とさせて頂いております。ご来店の際は先ずは下記よりご予約下さい。
募集終了のテナント区画
| 階数 | 坪数 | 賃料 + 共益費 | 敷金/礼金敷金 礼金 | 検討 |
|---|---|---|---|---|
| 1階 | 44.26坪 (146.31m²) | 募集終了 | - | - |
| 1階 | 44.26坪 (146.31m²) | 募集終了 | - | - |
| 1階 | 27.7坪 (91.57m²) | 募集終了 | - | - |
| 2階 | 90坪 (297.52m²) | 募集終了 | - | - |
| 3階 | 104.46坪 (345.32m²) | 募集終了 | - | - |
| 3階 | 101.46坪 (335.4m²) | 募集終了 | - | - |
| 3階 | 12.27坪 (40.56m²) | 募集終了 | - | - |
| 4階 | 101.46坪 (335.4m²) | 募集終了 | - | - |
| 5階 | 101.46坪 (335.41m²) | 募集終了 | - | - |
| 7階 | 73.17坪 (241.89m²) | 募集終了 | - | - |
| 8階 | 46.11坪 (152.43m²) | 募集終了 | - | - |
| 9階 | 40.73坪 (134.67m²) | 募集終了 | - | - |
| 10-11階 | 66.83坪 (220.94m²) | 募集終了 | - | - |
読込中...
四ツ谷/信濃町エリアで第3山田ビルに似た条件の物件
読込中...
| 取扱様態 | 仲介 |
|---|---|
| 取扱会社 | 株式会社 アットオフィス |