津之守坂6階の賃貸情報
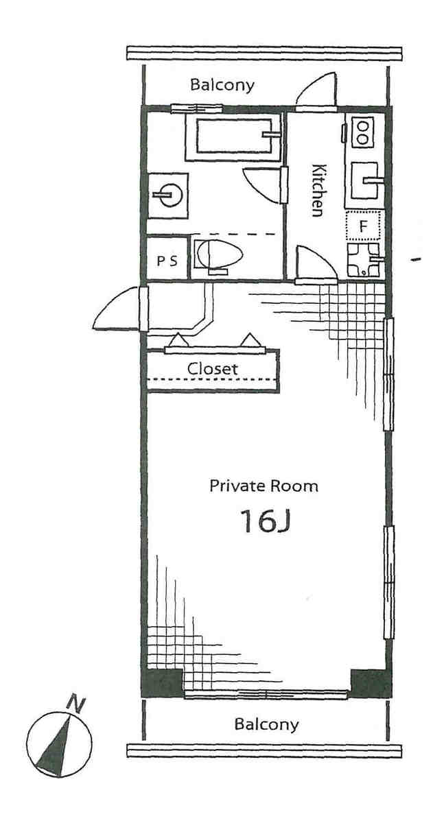
13.03 坪 (43.06m²)
※このサイトに記載がある賃貸条件は、敷金・保証金などの預かり金を除き、別途消費税がかかります。
津之守坂の建物概要
設備詳細
| 空調 | 個別空調 |
|---|---|
| トイレ | 男女共用トイレ・室内 |
| 床仕様 | - |
| エレベータ | 1 基 |
| 駐車場設備 | - |
| その他 | SOHO/マンション |
津之守坂6階の賃貸オフィス・事務所に関するお問い合わせ
津之守坂について
津之守坂は、新宿区荒木町に位置するSOHO・マンションタイプの建物です。都営新宿線「曙橋駅」から徒歩3分、丸ノ内線「四谷三丁目駅」から徒歩7分、南北線「四ツ谷駅」から徒歩9分の距離にあり、複数の路線が利用できる点が特徴です。建物は地上7階建てで、エレベーターが1基設置されています。 用途に応じてSOHOとしての利用が可能なため、住居兼事務所や小規模オフィスなど、さまざまなワークスタイルを想定した利用が考えられます。新宿区荒木町はオフィスや店舗のあるエリアに近接しており、事業用としての機能性も備えています。都心各エリアへのアクセスが可能な立地環境で、活動拠点として利用されるケースも想定されます。 物件の詳細やご質問については、お問い合わせください。
津之守坂のこだわり
自分で探すより問い合わせる方が早いことがあります
WEB非公開物件があるから
オーナー様のご希望により「WEBでは非公開」にしている物件があります。 それらはWEBでいくら検索しても見つかりません。 先ずは条件などお知らせ頂けましたら非公開物件含め ピッタリのオフィスをご提案させて頂きます。 無理なお勧めはしておりませんので、お気軽にお問い合わせください。
対面でのご相談も受け付けております
ご来店も歓迎です
オフィス移転は社内・社外ともに非公開に行われることが殆どです。そのためアットオフィスでは、基本的に訪問によるコンサルティングを行っておりますが、ご来店の相談も歓迎です。お一人おひとりに親身にご対応させて頂きたい為、要予約とさせて頂いております。ご来店の際は先ずは下記よりご予約下さい。
四ツ谷/信濃町エリアで津之守坂に似た条件の物件
読込中...
津之守坂と同じ最寄駅の物件
読込中...
| 取扱様態 | 仲介 |
|---|---|
| 取扱会社 | 株式会社 アットオフィス |