目黒東山ビル4階の賃貸情報
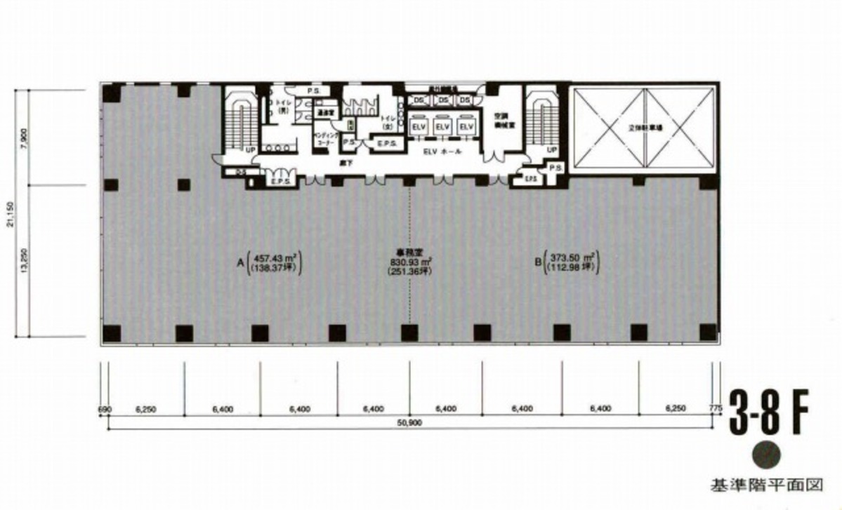
112.98 坪 (373.49m²)
※このサイトに記載がある賃貸条件は、敷金・保証金などの預かり金を除き、別途消費税がかかります。
目黒東山ビルの建物概要
設備詳細
| 空調 | 個別空調 |
|---|---|
| トイレ | - |
| 床仕様 | OA対応床(フリーアクセス) |
| エレベータ | 3 基 |
| 駐車場設備 | 機械式駐車場 |
| その他 | 光ファイバー / 大型ビル / 新耐震基準 / フリーレント |
目黒東山ビル4階の賃貸オフィス・事務所に関するお問い合わせ
目黒東山ビルについて
目黒区東山に位置する「目黒東山ビル」は、中目黒駅から徒歩約6分というアクセスの良さと、1995年に竣工した新耐震基準に適応した安全性が魅力のオフィスビルです。この地区は、オフィスエリアとしての発展が著しく、ビジネスの中心地としても非常に評価が高いエリアです。特に、山手通りに面していることから、アクセスの利便性と視認性が非常に高い立地条件を備えています。 「目黒東山ビル」の基準階面積は約251坪で、大規模なオフィスニーズにも柔軟に応えることが可能です。フロアは分割しての利用も可能であり、様々なビジネススタイルに合わせたオフィスプランが考えられます。また、3基のエレベーターはスムーズな移動を保証し、高いビル内の動線効率を実現しています。 ビル内には男女別のトイレと給湯スペースが設けられており、快適なオフィス環境をサポートします。また、2500mmの天井高と個別空調システムが、開放感あふれる快適なワークスペースを提供します。セキュリティ面では、機械警備システムを導入し、テナントの安全を守る体制が整っています。 周辺環境もビジネスにとって非常に魅力的です。多様な飲食店が軒を連ね、ビジネスランチやアフター5の利用に便利です。また、近くにはローソンやまいばすけっと、上島珈琲店などがあり、日常の買い物や休憩時間のリフレッシュにも困りません。 賃貸市場においても目黒区は高い人気を誇り、特に中目黒周辺は企業のオフィス選びにおいて高い評価を受けています。目黒東山ビルはその中でも特にアクセスと機能性を重視する企業に最適な選択肢と言えるでしょう。ビルの利便性、安全性、そして周辺環境の充実が、ビジネスの成功を後押しします。
自分で探すより問い合わせる方が早いことがあります
WEB非公開物件があるから
オーナー様のご希望により「WEBでは非公開」にしている物件があります。 それらはWEBでいくら検索しても見つかりません。 先ずは条件などお知らせ頂けましたら非公開物件含め ピッタリのオフィスをご提案させて頂きます。 無理なお勧めはしておりませんので、お気軽にお問い合わせください。
対面でのご相談も受け付けております
ご来店も歓迎です
オフィス移転は社内・社外ともに非公開に行われることが殆どです。そのためアットオフィスでは、基本的に訪問によるコンサルティングを行っておりますが、ご来店の相談も歓迎です。お一人おひとりに親身にご対応させて頂きたい為、要予約とさせて頂いております。ご来店の際は先ずは下記よりご予約下さい。
近くのエリアで探してみる
目黒/中目黒/青葉台エリアで目黒東山ビルに似た条件の物件
読込中...
目黒東山ビルと同じ最寄駅の物件
読込中...
| 取扱様態 | 仲介 |
|---|---|
| 取扱会社 | 株式会社 アットオフィス |