芝シムラビル1階の賃貸情報
30.09 坪 (99.48m²)
※このサイトに記載がある賃貸条件は、敷金・保証金などの預かり金を除き、別途消費税がかかります。
芝シムラビルの建物概要
設備詳細
| 空調 | 個別空調 |
|---|---|
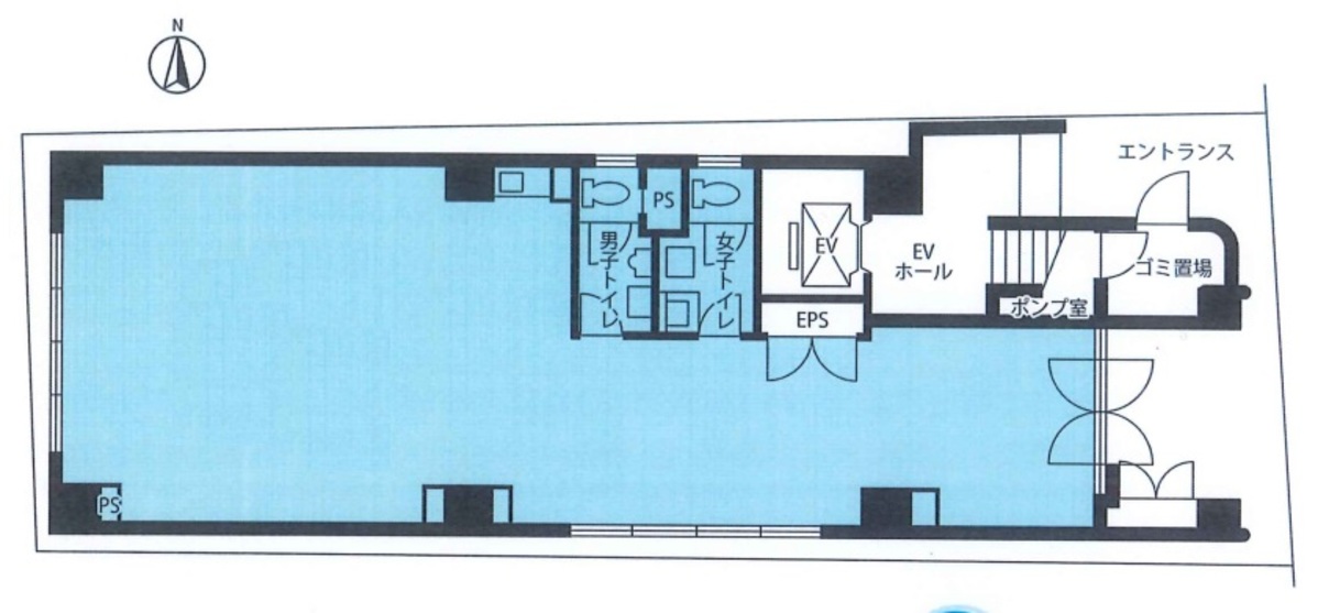
| トイレ | 男女別トイレ室内 |
| 床仕様 | - |
| エレベータ | 1 基 |
| 駐車場設備 | - |
| その他 | 機械警備 / 24時間利用可 / 光ファイバー / 新耐震基準 / 1階の物件 |
芝シムラビルについて
芝シムラビルは、都心のビジネスエリア、東京都港区芝2-3-12に位置する賃貸オフィスビルです。1988年に竣工し、9階建てのこの物件は、現代ビジネスのニーズに応えるための設計と設備で構成されています。基準階約32坪の広さを提供し、特に中規模企業やスタートアップに適したオフィススペースを提供しています。 この物件の大きな特徴の一つは、L字型の執務空間で、余計な柱がなくレイアウトの自由度が高いことです。個別空調システムを採用しており、各テナントは自社のニーズに合わせた温度管理が可能です。また、貸室内に男女別トイレが設置されており、利便性が高くなっています。 セキュリティ面では、機械警備を導入し、オフィスは24時間使用可能で、セキュリティ面でも安心して業務を行うことができます。また、エレベーターは6人乗り1基が設置されており、スムーズな移動をサポートします。 立地においては、大門駅、芝公園駅、浜松町駅と複数の駅が徒歩圏内にあり、都営浅草線・都営大江戸線、JR山手線・京浜東北線、東京モノレール線など多方面へのアクセスが容易です。この豊富な交通アクセスは、ビジネスの機動性を高めるだけでなく、従業員やクライアントの利便性も大きく向上させます。さらに、羽田空港へのアクセスもスムーズで、出張が多いビジネスにとっても魅力的なポイントです。 周辺環境も充実しており、飲食店やコンビニエンスストアが多数点在しているため、日々のランチや急な必要品の購入にも便利です。また、第一京浜に面しており、視認性が高く、来訪者にとってもわかりやすい立地です。 こうした設備、セキュリティ、立地、そして周辺環境の充実は、芝シムラビルをビジネスの拠点とする企業にとって大きなメリットをもたらします。モダンなオフィス環境を求める企業にとって、芝シムラビルは、高い機能性と快適なワークスペースを提供する、理想的な選択肢の一つと言えるでしょう。
自分で探すより問い合わせる方が早いことがあります
WEB非公開物件があるから
オーナー様のご希望により「WEBでは非公開」にしている物件があります。 それらはWEBでいくら検索しても見つかりません。 先ずは条件などお知らせ頂けましたら非公開物件含め ピッタリのオフィスをご提案させて頂きます。 無理なお勧めはしておりませんので、お気軽にお問い合わせください。
対面でのご相談も受け付けております
ご来店も歓迎です
オフィス移転は社内・社外ともに非公開に行われることが殆どです。そのためアットオフィスでは、基本的に訪問によるコンサルティングを行っておりますが、ご来店の相談も歓迎です。お一人おひとりに親身にご対応させて頂きたい為、要予約とさせて頂いております。ご来店の際は先ずは下記よりご予約下さい。
近くのエリアで探してみる
浜松町/田町/芝公園エリアで芝シムラビルに似た条件の物件
読込中...
芝シムラビルと同じ最寄駅の物件
読込中...
| 取扱様態 | 仲介 |
|---|---|
| 取扱会社 | 株式会社 アットオフィス |