※このサイトに記載がある賃貸条件は、敷金・保証金などの預かり金を除き、別途消費税がかかります。
物件情報
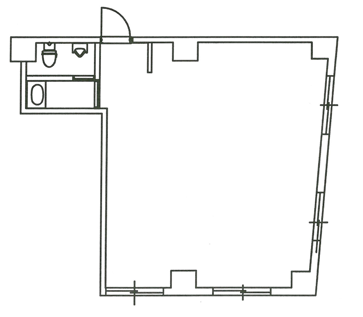
設備詳細
| 空調 | - |
|---|---|
| トイレ | - |
| 床仕様 | - |
| エレベータ | 1 基 |
| 駐車場設備 | - |
| その他 | - |
太平本館の賃貸オフィス・事務所に関するお問い合わせ
太平本館について
# 太平本館ビル:優れたアクセス性と利便性を兼ね備えたオフィス賃貸 東京都文京区本郷1丁目に位置する「太平本館ビル」は、その優れた立地とアクセスの良さで注目を集めるオフィス賃貸物件です。このビルは、ビジネスの多様なニーズに応えるために設計されており、働く環境を最適化するための設備が整っています。 ## 立地とアクセス 太平本館ビルは、交通の便が非常に良い場所に位置しています。最寄り駅として利用できるのは、以下の3駅です。 1. **総武・中央緩行線 水道橋駅**:徒歩5分 2. **東京都三田線 水道橋駅**:徒歩2分 3. **東京地下鉄丸ノ内線 後楽園駅**:徒歩5分 この立地の良さにより、都心部へのアクセスは非常に容易です。特に、ビジネスの中心地である新宿、池袋、東京駅へも短時間で到達できるため、交通のストレスを軽減し、効率的なビジネス活動が可能です。 ## 建物設備 太平本館ビルは、利便性を考慮した設備が整っています。ビル内にはエレベーターが1機設置されており、各階への移動がスムーズに行えます。また、ビル全体が清潔で管理が行き届いており、快適なオフィス環境を提供しています。 ## 魅力と利点 太平本館ビルの最大の魅力は、その優れたアクセス性に加えて、文京区という地域の特性にあります。文京区は、教育機関や研究施設が多く集まるエリアであり、知的で落ち着いた環境が特徴です。このため、ビジネスにおいても静かで集中できる環境が求められる業種には最適な場所と言えます。 さらに、ビル周辺には飲食店やカフェが多数存在し、ランチタイムやビジネスミーティングにも便利です。また、後楽園エリアにはショッピングモールや娯楽施設もあり、仕事後のリフレッシュにも困りません。 ## ビジネスにおける利点 太平本館ビルは、その立地と設備から、以下のようなビジネスに特に適しています。 1. **クライアントやパートナーとのアクセスが重視される業種**:交通の便が良いため、打ち合わせや会議の設定が容易です。 2. **静かで集中できる環境が必要な業種**:文京区の落ち着いた雰囲気は、クリエイティブな作業や研究開発に最適です。 3. **多様な働き方を支援する環境**:周辺の飲食・娯楽施設が充実しているため、ワークライフバランスを取りやすい環境です。 以上のように、太平本館ビルは、アクセスの良さと快適なオフィス環境を兼ね備えた物件として、多くのビジネスパーソンにおすすめです。ビジネスの拠点として、ぜひ一度ご検討いただきたい物件です。
太平本館のこだわり
自分で探すより問い合わせる方が早いことがあります
WEB非公開物件があるから
オーナー様のご希望により「WEBでは非公開」にしている物件があります。 それらはWEBでいくら検索しても見つかりません。 先ずは条件などお知らせ頂けましたら非公開物件含め ピッタリのオフィスをご提案させて頂きます。 無理なお勧めはしておりませんので、お気軽にお問い合わせください。
対面でのご相談も受け付けております
ご来店も歓迎です
オフィス移転は社内・社外ともに非公開に行われることが殆どです。そのためアットオフィスでは、基本的に訪問によるコンサルティングを行っておりますが、ご来店の相談も歓迎です。お一人おひとりに親身にご対応させて頂きたい為、要予約とさせて頂いております。ご来店の際は先ずは下記よりご予約下さい。
募集終了のテナント区画
| 階数 | 坪数 | 賃料 + 共益費 | 敷金/礼金敷金 礼金 | 検討 |
|---|---|---|---|---|
| 2階 | 60坪 (198.34m²) | 募集終了 | - | - |
| 3階 | 60坪 (198.35m²) | 募集終了 | - | - |
| 6階 | 17.7坪 (58.51m²) | 募集終了 | - | - |
読込中...
湯島/本郷/後楽園エリアで太平本館に似た条件の物件
読込中...
| 取扱様態 | 仲介 |
|---|---|
| 取扱会社 | 株式会社 アットオフィス |