LOOP-Xビル11階の賃貸情報
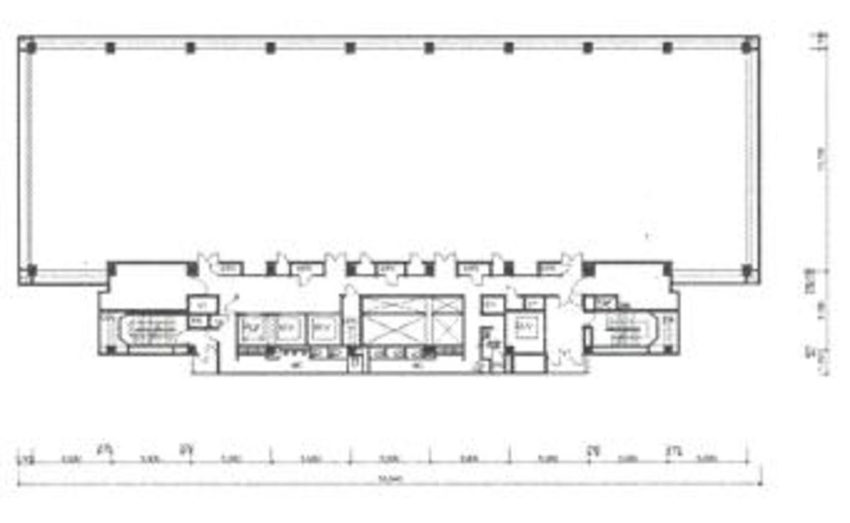
298.92 坪 (988.17m²)
※このサイトに記載がある賃貸条件は、敷金・保証金などの預かり金を除き、別途消費税がかかります。
LOOP-Xビルの建物概要
設備詳細
| 空調 | セントラル空調 |
|---|---|
| トイレ | - |
| 床仕様 | OA対応床(フリーアクセス) |
| エレベータ | 7 基 |
| 駐車場設備 | 空有 |
| その他 | 24時間利用可 / 大型ビル / 光ファイバー / 新耐震基準 |
LOOP-Xビルについて
LOOP-X(港区海岸)は、1991年に竣工された東京都港区に位置する賃貸オフィスビルです。このビルは、地下1階、地上17階建てで、基準階は約300坪の広さを誇ります。特に目を引くのは、その青みがかったガラス張りの美しい外観で、海岸通りに面しており視認性に優れています。オフィス空間は長方形の無柱空間で、3方向からの自然光が入るため、レイアウト自由度が高く、作業環境も明るいです。 立地については、ゆりかもめ芝浦ふ頭駅から徒歩5分、JR田町駅からは徒歩12分とアクセスが良好です。さらに、田町駅からは無料のシャトルバスも運行されており、利便性を高めています。物件の目の前には海とレインボーブリッジが広がっており、特に上層階からは絶景を眺めることができ、ビジネス環境に豊かさをもたらします。 設備面では、セントラル空調が完備されており、オフィス環境は快適です。トイレや給湯スペースはフロア共用で、利便性に配慮されています。セキュリティ面でも、24時間体制の有人警備が導入されており、安心してビジネスを行うことができます。また、エントランスホールは天井が高く、開放感のある設計で、訪れる人々に良い印象を与えます。 ビル内には食堂があり、周辺にはコンビニや飲食店が少ないため、入居テナントにとって非常に便利な設備です。大型の駐車場も併設されており、車を利用するビジネスマンにとっても魅力的なポイントです。 LOOP-Xは、ユニークな外観、優れた立地、充実した設備を兼ね備えたオフィスビルです。自然光がたっぷりと入る快適なオフィス空間で、ビジネスの効率化を図りたい企業にとって最適な選択と言えるでしょう。海岸とレインボーブリッジの素晴らしい眺望を毎日のビジネスシーンに取り入れられる点も、この物件の大きな魅力の一つです。
自分で探すより問い合わせる方が早いことがあります
WEB非公開物件があるから
オーナー様のご希望により「WEBでは非公開」にしている物件があります。 それらはWEBでいくら検索しても見つかりません。 先ずは条件などお知らせ頂けましたら非公開物件含め ピッタリのオフィスをご提案させて頂きます。 無理なお勧めはしておりませんので、お気軽にお問い合わせください。
対面でのご相談も受け付けております
ご来店も歓迎です
オフィス移転は社内・社外ともに非公開に行われることが殆どです。そのためアットオフィスでは、基本的に訪問によるコンサルティングを行っておりますが、ご来店の相談も歓迎です。お一人おひとりに親身にご対応させて頂きたい為、要予約とさせて頂いております。ご来店の際は先ずは下記よりご予約下さい。
近くのエリアで探してみる
港南/高輪/白金台/(品川駅)エリアでLOOP-Xビルに似た条件の物件
読込中...
LOOP-Xビルと同じ最寄駅の物件
読込中...
| 取扱様態 | 仲介 |
|---|---|
| 取扱会社 | 株式会社 アットオフィス |