四谷三和ビルの賃料条件
| 階数 | 坪数 | 賃料 + 共益費 | 敷金/礼金敷金 礼金 | 検討 |
|---|---|---|---|---|
| 2階 | 37.49坪 (123.93m²) | 1,300,000円 (坪:34,675 円) | 相談 無相談/無 |
※このサイトに記載がある賃貸条件は、敷金・保証金などの預かり金を除き、別途消費税がかかります。
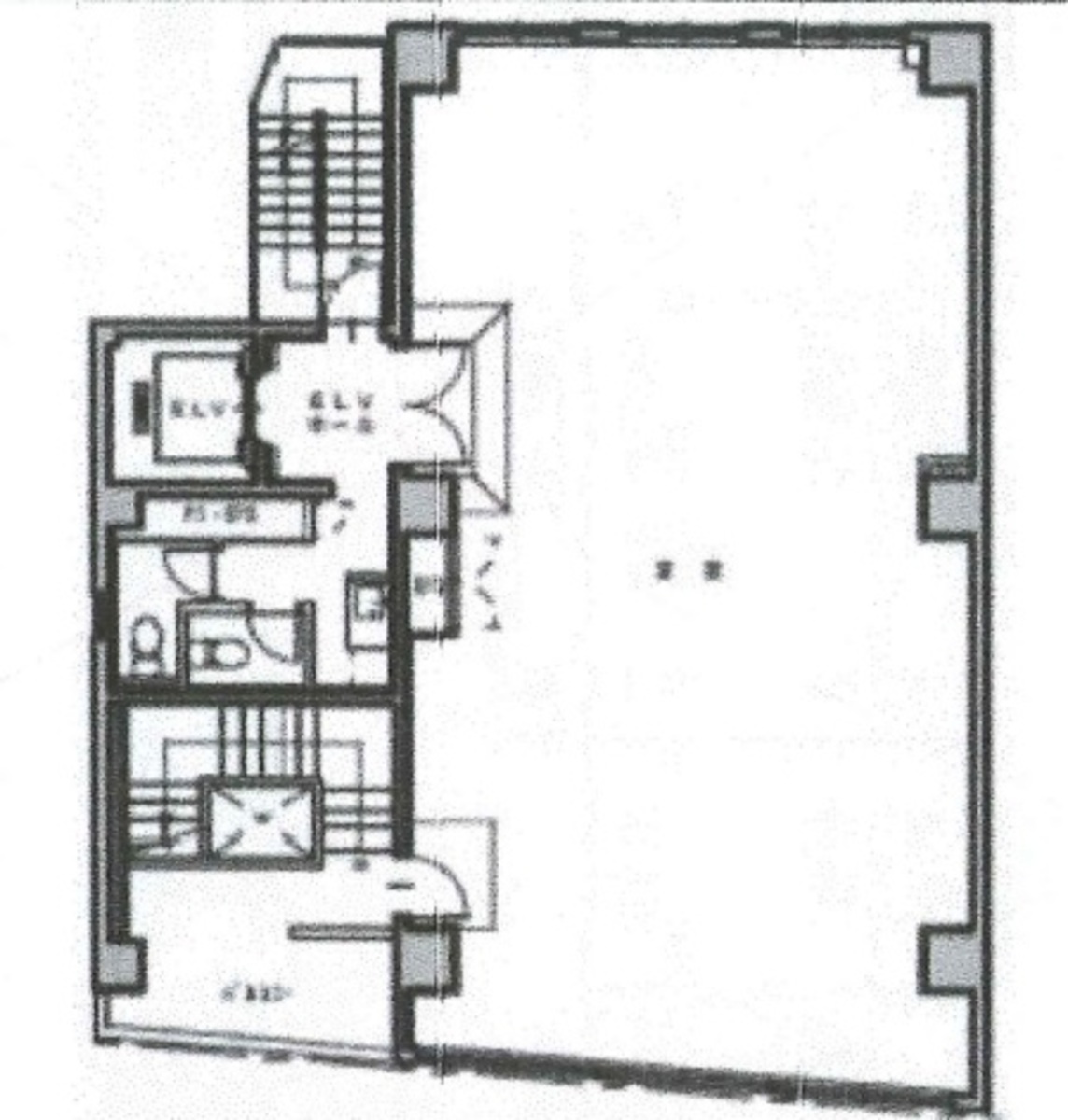
物件情報
設備詳細
| 空調 | 個別空調 |
|---|---|
| トイレ | 男女別トイレ / 男女別トイレ室外 |
| 床仕様 | OA対応床(フリーアクセス) |
| エレベータ | 1 基 / エレベーター有 |
| 駐車場設備 | - |
| その他 | 新耐震基準 / 機械警備 / 24時間利用可 / セットアップ / 原状回復義務なし |
四谷三和ビルの賃貸オフィス・事務所に関するお問い合わせ
四谷三和ビルについて
【ビルのおすすめポイント】 四谷三和ビルはJR中央線快速「四ツ谷駅」徒歩5分・東京メトロ南北線「四ツ谷駅」徒歩4分・東京メトロ丸ノ内線「四ツ谷駅」徒歩5分の物件です。1983年に竣工の耐震オフィスビルであり、2006年に新耐震強度についても確認済みです。 トイレは専用男女別になっています。個別空調・OAフロア・機械警備と設備についても充実しておりおすすめでございます。
四谷三和ビルのこだわり
自分で探すより問い合わせる方が早いことがあります
WEB非公開物件があるから
オーナー様のご希望により「WEBでは非公開」にしている物件があります。 それらはWEBでいくら検索しても見つかりません。 先ずは条件などお知らせ頂けましたら非公開物件含め ピッタリのオフィスをご提案させて頂きます。 無理なお勧めはしておりませんので、お気軽にお問い合わせください。
WEBから条件問い合わせをする(無料)
対面でのご相談も受け付けております
ご来店も歓迎です
オフィス移転は社内・社外ともに非公開に行われることが殆どです。そのためアットオフィスでは、基本的に訪問によるコンサルティングを行っておりますが、ご来店の相談も歓迎です。お一人おひとりに親身にご対応させて頂きたい為、要予約とさせて頂いております。ご来店の際は先ずは下記よりご予約下さい。
来店予約をする
募集終了のテナント区画
| 階数 | 坪数 | 賃料 + 共益費 | 敷金/礼金敷金 礼金 | 検討 |
|---|---|---|---|---|
| 1階 | 28.16坪 (93.09m²) | 募集終了 | - | - |
| 4階 | 40.42坪 (133.62m²) | 募集終了 | - | - |
| 9階 | 40.42坪 (133.62m²) | 募集終了 | - | - |
読込中...
四ツ谷/信濃町エリアで四谷三和ビルに似た条件の物件
読込中...
| 取扱様態 | 仲介 |
|---|---|
| 取扱会社 | 株式会社 アットオフィス |