※このサイトに記載がある賃貸条件は、敷金・保証金などの預かり金を除き、別途消費税がかかります。
物件情報
設備詳細
| 空調 | - |
|---|---|
| トイレ | - |
| 床仕様 | - |
| エレベータ | 3 基 |
| 駐車場設備 | 空有 |
| その他 | 大型ビル |
CJビルの賃貸オフィス・事務所に関するお問い合わせ
CJビルについて
**CJビルの魅力をご紹介!** 今日は東京都港区西新橋に位置する、存在感抜群の「CJビル」をご紹介します。全面ガラス張りで、1972年に竣工しましたが、その洗練された外観と設備は今もなお多くの企業に選ばれる理由となっています。 **【アクセスの良さ】** CJビルは、内幸町駅から徒歩3分、新橋駅からは徒歩7分という絶好の立地にあります。3駅以上を利用可能で、どこへ行くにも便利な立地条件はビジネスの拠点として申し分ありません。また、日比谷通りに面しており、視認性やアクセスの良さは抜群です。近隣には飲食店や金融機関も充実しており、ビジネスシーンでの利便性が高いのが特長です。 **【設備の充実】** CJビルは築年数が経過しているにも関わらず、光ファイバー完備、個別空調、OAフロアにも対応しており、働く皆様のニーズに応える設備が整っています。1階にはコンビニが入居しており、日常のちょっとした買い物にも困りません。さらに、セントラル空調と個別空調の併用システムを採用し、快適なオフィス環境を保っています。 **【安心のセキュリティ】** 24時間利用可能なCJビルでは、月極駐車場も完備しており、車でのアクセスもスムーズです。また、男女別トイレやエレベーターも3機設置しており、ビル内の動線も快適です。新耐震基準には適合していませんが、その他の設備面での充実度はビジネスの場として高い魅力を持っています。 **【新橋でのビジネス拠点に】** CJビルが立地する西新橋エリアは、新橋でも人気のエリアの一つです。その全面リニューアル済みのビルは、時代を感じさせないモダンな造りと開放的な空間が魅力的で、企業のオフィスやショップに最適な環境を提供しています。 **まとめ** CJビルは、抜群の立地、充実した設備、そして洗練されたデザインが特長の賃貸オフィスビルです。新橋エリアでビジネスの拠点をお探しの皆様に、ぜひ一度、ご内見をおすすめします。CJビルで、あなたのビジネスをさらに輝かせましょう! お問い合わせをお待ちしております。
CJビルのこだわり
自分で探すより問い合わせる方が早いことがあります
WEB非公開物件があるから
オーナー様のご希望により「WEBでは非公開」にしている物件があります。 それらはWEBでいくら検索しても見つかりません。 先ずは条件などお知らせ頂けましたら非公開物件含め ピッタリのオフィスをご提案させて頂きます。 無理なお勧めはしておりませんので、お気軽にお問い合わせください。
対面でのご相談も受け付けております
ご来店も歓迎です
オフィス移転は社内・社外ともに非公開に行われることが殆どです。そのためアットオフィスでは、基本的に訪問によるコンサルティングを行っておりますが、ご来店の相談も歓迎です。お一人おひとりに親身にご対応させて頂きたい為、要予約とさせて頂いております。ご来店の際は先ずは下記よりご予約下さい。
募集終了のテナント区画
| 階数 | 坪数 | 賃料 + 共益費 | 敷金/礼金敷金 礼金 | 検討 |
|---|---|---|---|---|
| B1階 | 11.1坪 (36.69m²) | 募集終了 | - | - |
| 1階 | 15.24坪 (50.38m²) | 募集終了 | - | - |
| 1階 | 57.53坪 (190.18m²) | 募集終了 | - | - |
| 3階 | 37.71坪 (124.66m²) | 募集終了 | - | - |
| 4階 | 43.19坪 (142.78m²) | 募集終了 | - | - |
| 5階 | 85.54坪 (282.78m²) | 募集終了 | - | - |
| 5階 | 42.2坪 (139.5m²) | 募集終了 | - | - |
| 5階 | 37.7坪 (124.62m²) | 募集終了 | - | - |
| 5階 | 50.88坪 (168.2m²) | 募集終了 | - | - |
| 6階 | 85.54坪 (282.78m²) | 募集終了 | - | - |
| 6階 | 104.68坪 (346.05m²) | 募集終了 | - | - |
| 7階 | 186.15坪 (615.37m²) | 募集終了 | - | - |
| 7階 | 93.07坪 (307.66m²) | 募集終了 | - | - |
| 7階 | 83.52坪 (276.1m²) | 募集終了 | - | - |
| 7階 | 102.62坪 (339.23m²) | 募集終了 | - | - |
| 8階 | 38.32坪 (126.67m²) | 募集終了 | - | - |
| 8階 | 85坪 (280.99m²) | 募集終了 | - | - |
| 8階 | 43.19坪 (142.78m²) | 募集終了 | - | - |
| 9階 | 185.14坪 (612.03m²) | 募集終了 | - | - |
| 9階 | 65坪 (214.88m²) | 募集終了 | - | - |
| 9階 | 49.84坪 (164.76m²) | 募集終了 | - | - |
| 10階 | 185.15坪 (612.07m²) | 募集終了 | - | - |
| 10階 | 65坪 (214.88m²) | 募集終了 | - | - |
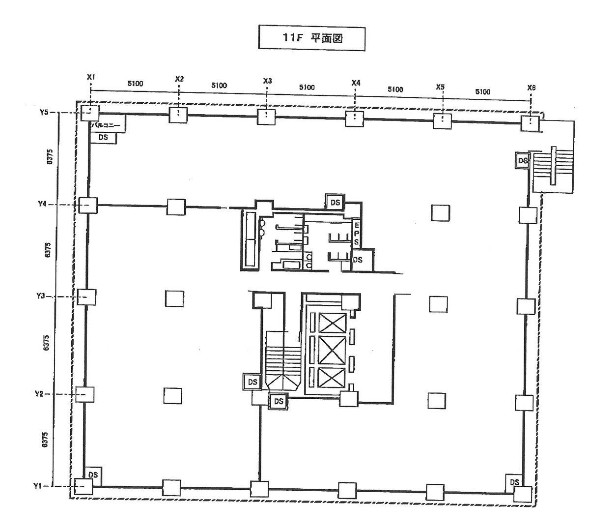
| 11階 | 84.71坪 (280.03m²) | 募集終了 | - | - |
| 11階 | 121.95坪 (403.14m²) | 募集終了 | - | - |
| 11階 | 63.19坪 (208.89m²) | 募集終了 | - | - |
| 11階 | 74.35坪 (245.78m²) | 募集終了 | - | - |
読込中...
近くのエリアで探してみる
新橋/虎ノ門/神谷町エリアでCJビルに似た条件の物件
読込中...
| 取扱様態 | 仲介 |
|---|---|
| 取扱会社 | 株式会社 アットオフィス |