芝公園リッジビルの賃料条件
| 階数 | 坪数 | 賃料 + 共益費 | 敷金/礼金敷金 礼金 | 検討 |
|---|---|---|---|---|
| 7階 | 63.22坪 (208.99m²) | 1,264,400円 (坪:20,000 円) | 10ヶ月 無10ヶ月/無 |
※このサイトに記載がある賃貸条件は、敷金・保証金などの預かり金を除き、別途消費税がかかります。
物件情報
設備詳細
| 空調 | 個別空調 |
|---|---|
| トイレ | - |
| 床仕様 | OA対応床(フリーアクセス) |
| エレベータ | 2 基 |
| 駐車場設備 | 空有 |
| その他 | 機械警備 / 24時間利用可 / 新耐震基準 |
芝公園リッジビルの賃貸オフィス・事務所に関するお問い合わせ
芝公園リッジビルについて
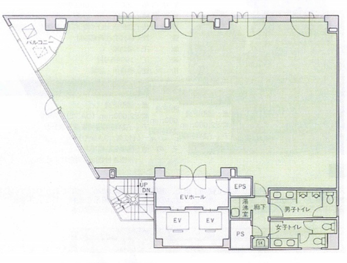
芝公園リッジビルは、東京都港区芝公園1丁目に位置する、1994年に竣工した9階建ての賃貸オフィスビルです。この物件は、その立地、設計、および提供されるサービスにおいて、ビジネスの拠点として理想的な環境を提供します。 立地面において、芝公園リッジビルは、大門駅から徒歩5分、御成門駅からは徒歩4分、そして浜松町駅からは徒歩6分の距離にあり、複数の鉄道路線へのアクセスが容易であります。このアクセスの良さは、ビジネスでの利便性と連絡の容易さを考慮する際、特に価値があります。また、周辺にはカフェ、コンビニエンスストア、飲食店が豊富にあり、日常のビジネスニーズやランチタイムのオプションも充実しています。 ビル自体の特徴として、基準階の賃貸スペースは約60坪と、中小企業やスタートアップ企業にとって適切な広さを提供します。天井高は2600mm、OAフロア高は50mmと、快適なオフィス環境を実現しています。また、角地に建つこのビルは、窓面が多く、自然光がたっぷりと入る明るい雰囲気のオフィス空間を提供します。一部の貸室からは、東京タワーの美しい眺望を楽しむことができ、ビジネスの場に彩りを加えます。 設備面では、個別空調システムにより、各テナントが快適な温度管理を行うことができます。また、男女別トイレ、給湯室が各室内に設置されており、日常の利便性が高められています。セキュリティ面では、24時間対応の機械式警備システムを採用し、テナントの安全とセキュリティを確保しています。 このように、芝公園リッジビルは、その立地の良さ、機能的な設計、そしてテナントのニーズに応える充実した設備を兼ね備えており、ビジネスの成功を支える理想的なオフィス環境を提供します。ビジネスの拠点としての利用を考える企業にとって、芝公園リッジビルは魅力的な選択肢となるでしょう。
芝公園リッジビルのこだわり
自分で探すより問い合わせる方が早いことがあります
WEB非公開物件があるから
オーナー様のご希望により「WEBでは非公開」にしている物件があります。 それらはWEBでいくら検索しても見つかりません。 先ずは条件などお知らせ頂けましたら非公開物件含め ピッタリのオフィスをご提案させて頂きます。 無理なお勧めはしておりませんので、お気軽にお問い合わせください。
対面でのご相談も受け付けております
ご来店も歓迎です
オフィス移転は社内・社外ともに非公開に行われることが殆どです。そのためアットオフィスでは、基本的に訪問によるコンサルティングを行っておりますが、ご来店の相談も歓迎です。お一人おひとりに親身にご対応させて頂きたい為、要予約とさせて頂いております。ご来店の際は先ずは下記よりご予約下さい。
募集終了のテナント区画
| 階数 | 坪数 | 賃料 + 共益費 | 敷金/礼金敷金 礼金 | 検討 |
|---|---|---|---|---|
| 1階 | 23.82坪 (78.74m²) | 募集終了 | - | - |
| 2階 | 84.3坪 (278.68m²) | 募集終了 | - | - |
| 3階 | 64.63坪 (213.66m²) | 募集終了 | - | - |
| 4階 | 60.82坪 (201.09m²) | 募集終了 | - | - |
| 5階 | 60.82坪 (201.09m²) | 募集終了 | - | - |
| 6階 | 60.82坪 (201.06m²) | 募集終了 | - | - |
| 8階 | 64.63坪 (213.65m²) | 募集終了 | - | - |
読込中...
近くのエリアで探してみる
浜松町/田町/芝公園エリアで芝公園リッジビルに似た条件の物件
読込中...
| 取扱様態 | 仲介 |
|---|---|
| 取扱会社 | 株式会社 アットオフィス |