第7秋山ビルディング3階の賃貸情報
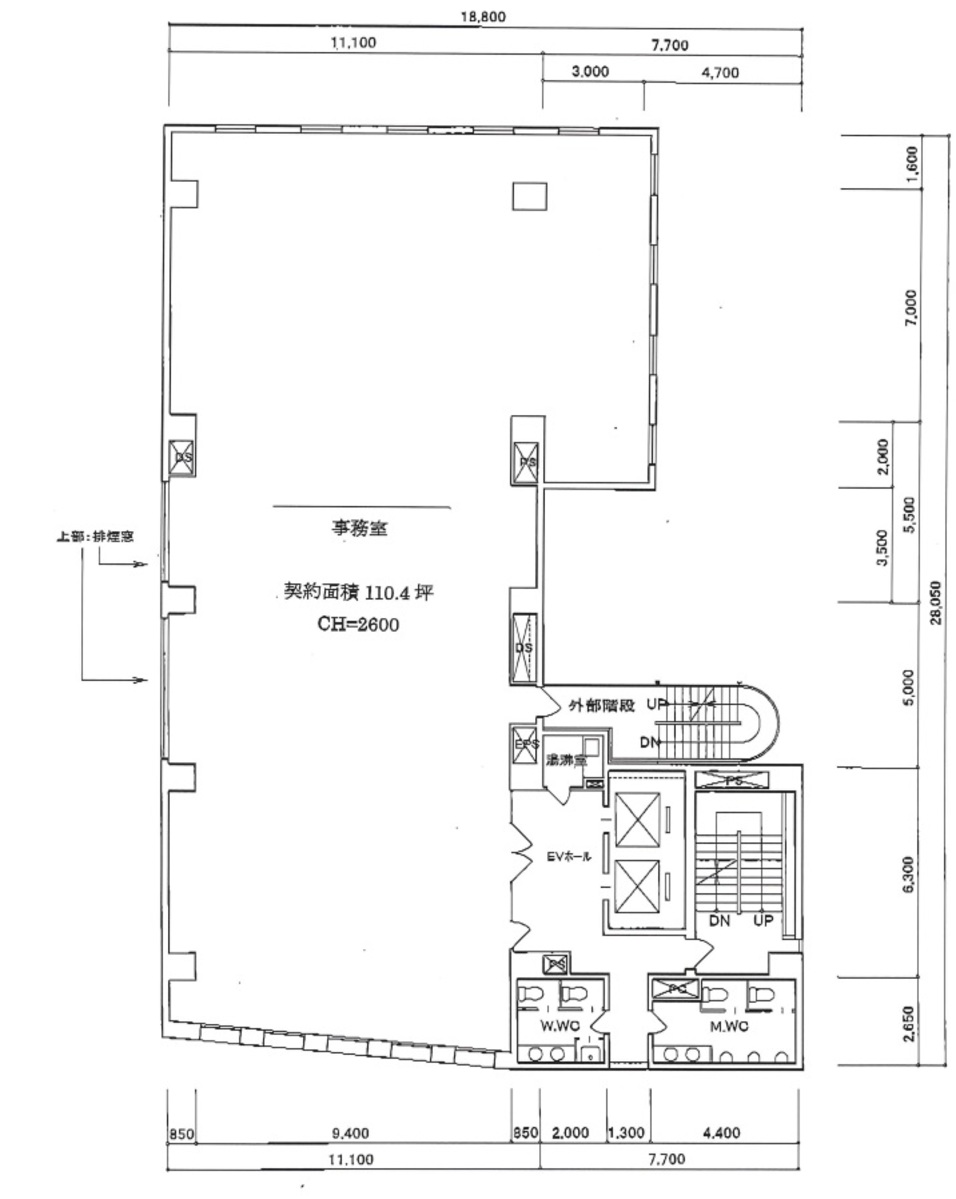
110.4 坪 (364.96m²)
※このサイトに記載がある賃貸条件は、敷金・保証金などの預かり金を除き、別途消費税がかかります。
第7秋山ビルディングの建物概要
設備詳細
| 空調 | 個別空調 |
|---|---|
| トイレ | - |
| 床仕様 | OA対応床(フリーアクセス) |
| エレベータ | 2 基 |
| 駐車場設備 | 空無 |
| その他 | 機械警備 / 新耐震基準 |
第7秋山ビルディングについて
第7秋山ビルは、東京都千代田区麹町5-3に誇りを持って立地する、1987年に竣工された新耐震基準を満たした9階建てのオフィスビルです。この物件は、四ツ谷駅からわずか徒歩4分という驚異的なアクセスの良さを誇り、さらに麹町駅からも徒歩5分、半蔵門駅から徒歩9分の距離にあります。この立地は、JR中央線・JR総武線・東京メトロ丸ノ内線・東京メトロ南北線の利用が可能で、日々の通勤やビジネスにおける移動の利便性を大幅に向上させます。 新宿通りに面しており、その角地に位置するため、非常に高い視認性とアクセスのしやすさを兼ね備えています。ビル内には月極駐車場が設けられており、24時間利用可能な機械警備システムにより、安心してお仕事に集中できる環境が整っています。また、2基のエレベーターが設置されているため、忙しいビジネスパーソンにとっても、円滑な移動が可能です。 このビルの基準階は約110坪の広々としたオフィススペースを提供しており、個別空調とOAフロアが完備されています。これにより、快適なオフィス環境を整えることができ、社員の生産性や創造性の向上が期待できます。さらに、天高は2,600mmを確保しており、開放感あふれる空間を実現しています。 周辺エリアは、オフィスビルが立ち並ぶ麹町エリアであり、各国大使館が存在する国際的な雰囲気を持っています。近辺には飲食店が豊富にあり、ビジネスランチやアフター5の利用にも困りません。また、コンビニエンスストアや郵便局など、日々の生活に必要な施設が揃っているため、ビジネスにおける快適なライフスタイルをサポートします。 第7秋山ビルは、その優れた立地、充実した設備、快適なオフィス環境を提供することで、あなたのビジネスを次のレベルへと押し上げる最適な選択肢です。ここには、ビジネスの成功を加速させるためのすべてが揃っています。
第7秋山ビルディングのこだわり
自分で探すより問い合わせる方が早いことがあります
WEB非公開物件があるから
オーナー様のご希望により「WEBでは非公開」にしている物件があります。 それらはWEBでいくら検索しても見つかりません。 先ずは条件などお知らせ頂けましたら非公開物件含め ピッタリのオフィスをご提案させて頂きます。 無理なお勧めはしておりませんので、お気軽にお問い合わせください。
対面でのご相談も受け付けております
ご来店も歓迎です
オフィス移転は社内・社外ともに非公開に行われることが殆どです。そのためアットオフィスでは、基本的に訪問によるコンサルティングを行っておりますが、ご来店の相談も歓迎です。お一人おひとりに親身にご対応させて頂きたい為、要予約とさせて頂いております。ご来店の際は先ずは下記よりご予約下さい。
番町/麹町/平河町エリアで第7秋山ビルディングに似た条件の物件
読込中...
第7秋山ビルディングと同じ最寄駅の物件
読込中...
| 取扱様態 | 仲介 |
|---|---|
| 取扱会社 | 株式会社 アットオフィス |