QV1麹町9階の賃貸情報
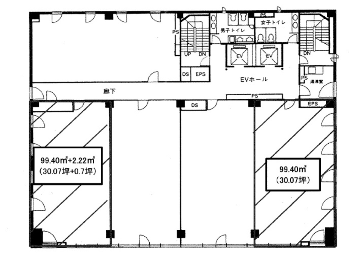
29.29 坪 (96.84m²)
※このサイトに記載がある賃貸条件は、敷金・保証金などの預かり金を除き、別途消費税がかかります。
QV1麹町の建物概要
設備詳細
| 空調 | 個別空調 |
|---|---|
| トイレ | - |
| 床仕様 | OA対応床(フリーアクセス) |
| エレベータ | 2 基 |
| 駐車場設備 | 空有 |
| その他 | 機械警備 / 大型ビル / 光ファイバー / 新耐震基準 / 塾・スクール |
QV1麹町について
千代田区麹町5丁目にそびえ立つNK真和ビルは、1993年に竣工した耐震性に優れたオフィスビルです。この地域がビジネスシーンの中心地として知られる中、NK真和ビルはその立地と設備で注目を集めています。ビルは、東京メトロ有楽町線の麹町駅からわずか徒歩2分、さらにJR中央線・総武線、東京メトロ丸ノ内線・南北線が利用可能な四ツ谷駅からも徒歩7分と、複数の駅と路線が利用できる絶好のロケーションに位置しています。これにより、都内はもちろん首都圏へのアクセスも容易で、ビジネスチャンスを広げる上で理想的な環境を提供しています。 NK真和ビルは、地上9階建てで、基準階面積は約157坪。各オフィスは白とグレーを基調とした内装で、長方形のレイアウトがしやすい空間となっており、柔軟なオフィスデザインを可能にします。また、ビル内には2基のエレベーターが設置されており、快適な移動が可能です。個別空調システムやOAフロア、室外に男女別トイレと給湯スペースも完備されており、テナントのニーズに応える設備が整っています。 セキュリティ面では、機械警備システムが導入されており、24時間利用可能な安全なオフィス環境を提供しています。また、駐車場はビル内に機械式で34台収容可能で、車でのアクセスも良好です。 周辺環境も非常に充実しており、ビルは新宿通りに面しており視認性が高く、周辺には多数の飲食店やコンビニエンスストアがあり、日々の業務の中での利便性も高いです。さらに、東京ガーデンテラス紀尾井町などの商業施設も徒歩圏内にあり、ビジネスだけでなくプライベートの充実にも寄与します。 長年にわたり、多くの企業に選ばれ続けているNK真和ビルは、その立地、設備、周辺環境において、企業の成長を支える理想的なオフィス空間を提供しています。これからも変わらぬ価値を提供し続けるNK真和ビルで、あなたのビジネスの新たな一歩を踏み出してみませんか?
自分で探すより問い合わせる方が早いことがあります
WEB非公開物件があるから
オーナー様のご希望により「WEBでは非公開」にしている物件があります。 それらはWEBでいくら検索しても見つかりません。 先ずは条件などお知らせ頂けましたら非公開物件含め ピッタリのオフィスをご提案させて頂きます。 無理なお勧めはしておりませんので、お気軽にお問い合わせください。
対面でのご相談も受け付けております
ご来店も歓迎です
オフィス移転は社内・社外ともに非公開に行われることが殆どです。そのためアットオフィスでは、基本的に訪問によるコンサルティングを行っておりますが、ご来店の相談も歓迎です。お一人おひとりに親身にご対応させて頂きたい為、要予約とさせて頂いております。ご来店の際は先ずは下記よりご予約下さい。
番町/麹町/平河町エリアでQV1麹町に似た条件の物件
読込中...
QV1麹町と同じ最寄駅の物件
読込中...
| 取扱様態 | 仲介 |
|---|---|
| 取扱会社 | 株式会社 アットオフィス |