ヒューリック木場ビル7階の賃貸情報
181.68 坪 (600.6m²)
※このサイトに記載がある賃貸条件は、敷金・保証金などの預かり金を除き、別途消費税がかかります。
ヒューリック木場ビルの建物概要
設備詳細
| 空調 | 個別空調 |
|---|---|
| トイレ | - |
| 床仕様 | OA対応床(フリーアクセス) |
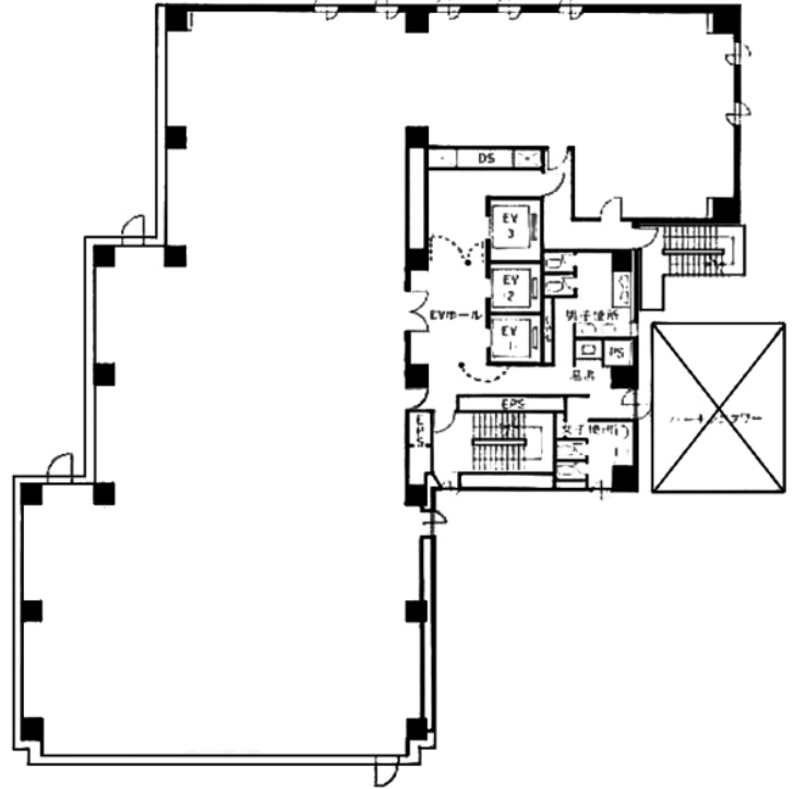
| エレベータ | 3 基 |
| 駐車場設備 | 空有 / 機械式駐車場 |
| その他 | 機械警備 / 24時間利用可 / 管理人常駐 / 光ファイバー / 新耐震基準 |
ヒューリック木場ビルについて
ヒューリック木場ビルは、東京都江東区東陽3丁目に位置する賃貸オフィスビルで、東京メトロ東西線「木場」駅から徒歩わずか2分という利便性の高い立地にあります。ビルの竣工は1992年であり、新耐震基準を満たす鉄骨鉄筋コンクリート造の堅牢な建物です。2019年には大規模なリニューアルが行われ、最新のオフィス環境が整っています。 このビルは地上10階建てで、基準階の貸室面積は約181.68坪。採光に優れた明るい空間が特徴で、天井高は2,650mmと開放感があります。個別空調システムを採用しており、効率的な温度管理が可能で、コストの削減にも寄与します。さらに、OAフロアを備えているため、オフィス内の配線もスッキリと整理できます。 セキュリティ面でも安心してご利用いただけるよう、機械警備と有人管理の二重体制を採用。24時間いつでも利用可能な環境が整っており、ビジネスの多様なニーズに対応します。また、光ファイバーによる高速通信が可能で、ストレスフリーなインターネット環境を提供します。 周辺環境も充実しており、永代通り沿いに位置するこのビルは、飲食店やコンビニ、銀行などが徒歩圏内にあり、ビジネスパーソンにとって非常に便利です。また、バス停やカーシェアリングのサービスも利用しやすく、移動の選択肢が豊富にあります。これにより、社員や来訪者にとって快適なアクセスが実現します。 ヒューリック木場ビルは、ビジネスの拠点として最適な立地と充実した設備を兼ね備えた物件です。開業やオフィスの移転を検討されている方にとって、理想的な選択肢となることでしょう。最新の空室状況や賃貸条件については、お気軽にお問い合わせください。
自分で探すより問い合わせる方が早いことがあります
WEB非公開物件があるから
オーナー様のご希望により「WEBでは非公開」にしている物件があります。 それらはWEBでいくら検索しても見つかりません。 先ずは条件などお知らせ頂けましたら非公開物件含め ピッタリのオフィスをご提案させて頂きます。 無理なお勧めはしておりませんので、お気軽にお問い合わせください。
対面でのご相談も受け付けております
ご来店も歓迎です
オフィス移転は社内・社外ともに非公開に行われることが殆どです。そのためアットオフィスでは、基本的に訪問によるコンサルティングを行っておりますが、ご来店の相談も歓迎です。お一人おひとりに親身にご対応させて頂きたい為、要予約とさせて頂いております。ご来店の際は先ずは下記よりご予約下さい。
江東区エリアでヒューリック木場ビルに似た条件の物件
読込中...
ヒューリック木場ビルと同じ最寄駅の物件
読込中...
| 取扱様態 | 仲介 |
|---|---|
| 取扱会社 | 株式会社 アットオフィス |