※このサイトに記載がある賃貸条件は、敷金・保証金などの預かり金を除き、別途消費税がかかります。
物件情報
設備詳細
| 空調 | 個別空調 |
|---|---|
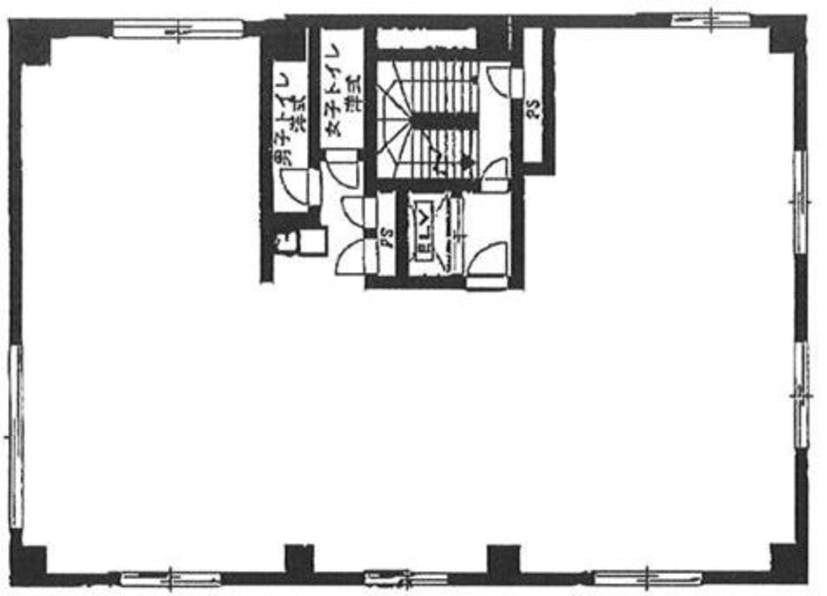
| トイレ | 男女別トイレ室内 |
| 床仕様 | - |
| エレベータ | 1 基 |
| 駐車場設備 | - |
| その他 | クリニック |
森初ビルの賃貸オフィス・事務所に関するお問い合わせ
森初ビルについて
森初は、新宿区荒木町に位置する地上5階建ての建物です。東京地下鉄丸ノ内線「四谷三丁目駅」から徒歩4分、都営新宿線「曙橋駅」へも6分、さらに南北線「四ツ谷駅」から8分と、複数の駅を利用できる立地にあります。都心エリアへのアクセス手段が多く、ビジネスの活動拠点として検討されることが多い地域です。 建物にはエレベーターが1基設置されており、フロア間の移動がスムーズに行えます。5階建ての構造を活かし、各企業の規模や事業内容に応じてフロアの利用計画が立てやすい点も特徴です。また、荒木町は周辺に飲食店や様々な業種の店舗が点在し、ビジネスシーンに合わせて周辺環境を活用することができます。 建物の使い方については、オフィスとしてはもちろん、立地を重視する企業や、複数路線へのアクセス可能な場所に拠点を構えたい法人様にもご検討いただきやすい物件です。詳細はお問い合わせください。
森初ビルのこだわり
自分で探すより問い合わせる方が早いことがあります
WEB非公開物件があるから
オーナー様のご希望により「WEBでは非公開」にしている物件があります。 それらはWEBでいくら検索しても見つかりません。 先ずは条件などお知らせ頂けましたら非公開物件含め ピッタリのオフィスをご提案させて頂きます。 無理なお勧めはしておりませんので、お気軽にお問い合わせください。
対面でのご相談も受け付けております
ご来店も歓迎です
オフィス移転は社内・社外ともに非公開に行われることが殆どです。そのためアットオフィスでは、基本的に訪問によるコンサルティングを行っておりますが、ご来店の相談も歓迎です。お一人おひとりに親身にご対応させて頂きたい為、要予約とさせて頂いております。ご来店の際は先ずは下記よりご予約下さい。
読込中...
四ツ谷/信濃町エリアで森初ビルに似た条件の物件
読込中...
| 取扱様態 | 仲介 |
|---|---|
| 取扱会社 | 株式会社 アットオフィス |