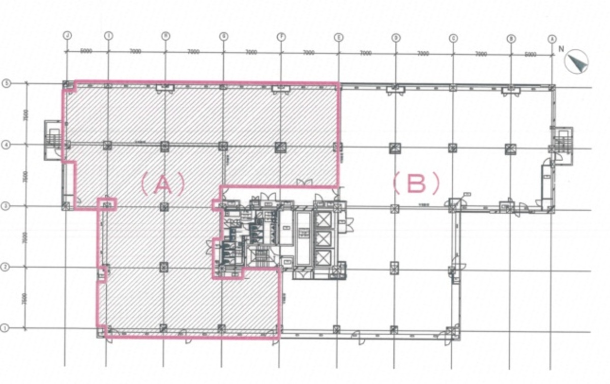
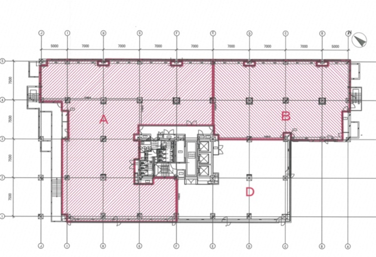
MFPR麹町ビル5階の賃貸情報
224.25 坪 (741.32m²)
※このサイトに記載がある賃貸条件は、敷金・保証金などの預かり金を除き、別途消費税がかかります。
MFPR麹町ビルの建物概要
設備詳細
| 空調 | セントラル空調 |
|---|---|
| トイレ | - |
| 床仕様 | OA対応床(フリーアクセス) |
| エレベータ | 3 基 |
| 駐車場設備 | 空有 |
| その他 | 大型ビル / 光ファイバー / 居抜き |
MFPR麹町ビル5階の賃貸オフィス・事務所に関するお問い合わせ
MFPR麹町ビルについて
MFPR麹町ビル、旧称麹町M-SQUAREは、千代田区麹町5丁目に位置する賃貸オフィスビルです。このビルは1975年に竣工し、2006年4月には全面リニューアルを実施済みで、新耐震基準もクリアしております。地上7階建てのこの建物は、基準階面積が400坪を超える大規模なオフィススペースを提供しており、分割区画による柔軟なレイアウト変更が可能です。こうした特徴は、様々な規模の企業やSOHO、事務所利用に対応しており、ビジネスの拡大や縮小に柔軟に対応できる点が魅力です。 ビル内には男女別トイレや給湯設備がリニューアルされ、使い勝手の良い水回りが整っています。また、エレベーターは3基設置されており、ビルへのアクセスもスムーズです。敷地内には駐車場と駐輪場があり、駐車場の空き状況についてはお問い合わせいただけます。 立地においては、麹町駅から徒歩約5分という好立地に位置しており、上智大学の裏手にあるため、閑静で落ち着いた環境です。さらに、四ツ谷駅や赤坂見附駅も徒歩圏内にあるため、複数の交通手段を利用できる利便性の高さが特徴です。周辺にはコンビニや公園があり、オフィスや学校が立ち並ぶエリアで、ビジネス環境としても、また日々の生活においても便利な立地条件を備えています。 夜間はカード入館システムにより24時間入館可能となっており、セキュリティ面でも安心してご利用いただけます。ビル前面の通りや近隣の設備も含め、MFPR麹町ビルはビジネスの拠点としてだけでなく、快適なオフィスライフを送るための環境が整っています。 MFPR麹町ビルは、その立地、設備、リニューアルされた快適なオフィス環境を提供することで、あらゆるビジネスニーズに対応可能な賃貸オフィスビルです。ビジネスのスタートアップから、既に成長した企業まで、多様な企業が活用できる魅力的な物件と言えるでしょう。
MFPR麹町ビルのこだわり
自分で探すより問い合わせる方が早いことがあります
WEB非公開物件があるから
オーナー様のご希望により「WEBでは非公開」にしている物件があります。 それらはWEBでいくら検索しても見つかりません。 先ずは条件などお知らせ頂けましたら非公開物件含め ピッタリのオフィスをご提案させて頂きます。 無理なお勧めはしておりませんので、お気軽にお問い合わせください。
対面でのご相談も受け付けております
ご来店も歓迎です
オフィス移転は社内・社外ともに非公開に行われることが殆どです。そのためアットオフィスでは、基本的に訪問によるコンサルティングを行っておりますが、ご来店の相談も歓迎です。お一人おひとりに親身にご対応させて頂きたい為、要予約とさせて頂いております。ご来店の際は先ずは下記よりご予約下さい。
番町/麹町/平河町エリアでMFPR麹町ビルに似た条件の物件
読込中...
MFPR麹町ビルと同じ最寄駅の物件
読込中...
| 取扱様態 | 仲介 |
|---|---|
| 取扱会社 | 株式会社 アットオフィス |