※このサイトに記載がある賃貸条件は、敷金・保証金などの預かり金を除き、別途消費税がかかります。
物件情報
設備詳細
| 空調 | - |
|---|---|
| トイレ | - |
| 床仕様 | - |
| エレベータ | 2 基 |
| 駐車場設備 | 空有 |
| その他 | 新耐震基準 |
西麻布アネックスビルの賃貸オフィス・事務所に関するお問い合わせ
西麻布アネックスビルについて
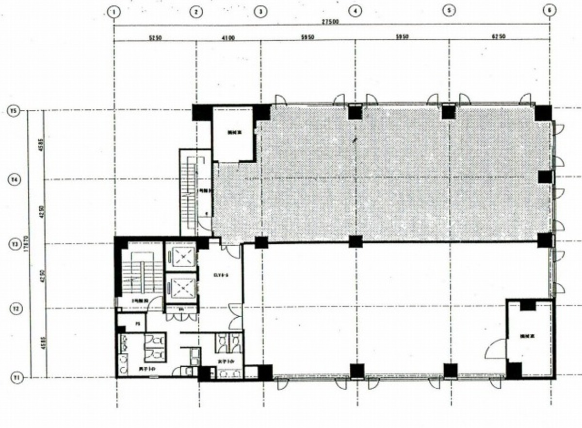
西麻布アネックス(港区西麻布)は、都心のビジネスシーンに最適な高スペックオフィスビルです。六本木ヒルズの至近距離に位置し、港区六本木の活気ある環境の中で、企業にとって理想的な立地条件を兼ね備えています。徒歩7分のアクセスにある六本木駅からは、都内各所へのアクセスが容易で、ビジネスの機動性を高めます。 1987年4月に竣工したこのビルは、新耐震基準に適応した構造で、安全性にも優れています。地上9階・地下1階の鉄骨造という頑丈な構造により、"骨太男子"を彷彿とさせる堅牢さが特徴です。24時間入館可能で、空調も24時間運転可能という点は、ビジネスが活発な港区六本木において、企業活動の柔軟性を最大限にサポートします。 特に、西麻布アネックスは、基準階坪数111.8坪から、ニーズに応じて48.6~140.33坪までの区画選択が可能となっており、様々な企業規模に対応できる柔軟性を持っています。オフィスフロアは2テナントで分けられる形式で、縦長の区画には2面の窓があり、六本木通りに面した側からは街路樹を通して緑を感じることができるなど、働く環境にも配慮されています。 1階の飲食店は、ビルに入居する従業員はもちろん、来訪者にとっても魅力的なポイントです。特にランチタイムには、多彩な飲食店が楽しめる周辺環境と相まって、西麻布アネックスには終日美味しい香りが漂っています。 西麻布アネックスは、六本木ヒルズに近く、非常に交通量の多い六本木通りに面していますが、その立地を活かしてビジネスの可能性を広げることができます。角地に位置しており、どのオフィスも日当たりが良好で、作業環境にも最適です。 港区六本木でのオフィス移転、新設に際して、予算、スペック、立地のすべてにおいて、高い満足度を提供する西麻布アネックス。ここは、企業が新たなビジネスの舞台として選びたくなる魅力に満ちたオフィスビルです。
西麻布アネックスビルのこだわり
自分で探すより問い合わせる方が早いことがあります
WEB非公開物件があるから
オーナー様のご希望により「WEBでは非公開」にしている物件があります。 それらはWEBでいくら検索しても見つかりません。 先ずは条件などお知らせ頂けましたら非公開物件含め ピッタリのオフィスをご提案させて頂きます。 無理なお勧めはしておりませんので、お気軽にお問い合わせください。
対面でのご相談も受け付けております
ご来店も歓迎です
オフィス移転は社内・社外ともに非公開に行われることが殆どです。そのためアットオフィスでは、基本的に訪問によるコンサルティングを行っておりますが、ご来店の相談も歓迎です。お一人おひとりに親身にご対応させて頂きたい為、要予約とさせて頂いております。ご来店の際は先ずは下記よりご予約下さい。
募集終了のテナント区画
| 階数 | 坪数 | 賃料 + 共益費 | 敷金/礼金敷金 礼金 | 検討 |
|---|---|---|---|---|
| 2階 | 48.4坪 (160m²) | 募集終了 | - | - |
| 2階 | 54.9坪 (181.57m²) | 募集終了 | - | - |
| 5階 | 104.3坪 (344.79m²) | 募集終了 | - | - |
| 6階 | 104.3坪 (344.91m²) | 募集終了 | - | - |
| 7階 | 104.3坪 (344.79m²) | 募集終了 | - | - |
| 8階 | 104.3坪 (344.79m²) | 募集終了 | - | - |
| 10階 | 104.3坪 (344.79m²) | 募集終了 | - | - |
読込中...
赤坂/六本木/麻布エリアで西麻布アネックスビルに似た条件の物件
読込中...
| 取扱様態 | 仲介 |
|---|---|
| 取扱会社 | 株式会社 アットオフィス |