東陽パークビルの賃料条件
| 階数 | 坪数 | 賃料 + 共益費 | 敷金/礼金敷金 礼金 | 検討 |
|---|---|---|---|---|
| 3階 | 219.89坪 (726.91m²) | お問合せ下さい (坪:-) | 12ヶ月 無12ヶ月/無 | |
| 4階 | 98.92坪 (327m²) | お問合せ下さい (坪:-) | 12ヶ月 無12ヶ月/無 |
※このサイトに記載がある賃貸条件は、敷金・保証金などの預かり金を除き、別途消費税がかかります。
物件情報
設備詳細
| 空調 | 個別空調 |
|---|---|
| トイレ | - |
| 床仕様 | OA対応床(フリーアクセス) |
| エレベータ | 2 基 |
| 駐車場設備 | 空無 |
| その他 | 大型ビル / 管理人常駐 / 新耐震基準 |
東陽パークビルの賃貸オフィス・事務所に関するお問い合わせ
東陽パークビルについて
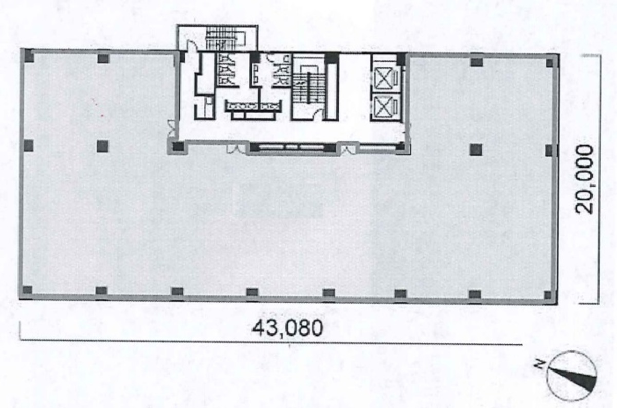
東西線「東陽駅」徒歩8分、1フロア220坪です。地上6階の構造で竣工年数は1991年6月の新耐震になります。主な設備は男女別トイレ、エレベーター2基、空調は個別空調です。 【おすすめポイント】 ・整形で大変レイアウト効率が良く、幅広い業種業態に対応可能です。 ・分割対応もできますので、100坪程度からご提案が可能です。 ・駐車場も完備されており、営業所などにおすすめです。
自分で探すより問い合わせる方が早いことがあります
WEB非公開物件があるから
オーナー様のご希望により「WEBでは非公開」にしている物件があります。 それらはWEBでいくら検索しても見つかりません。 先ずは条件などお知らせ頂けましたら非公開物件含め ピッタリのオフィスをご提案させて頂きます。 無理なお勧めはしておりませんので、お気軽にお問い合わせください。
WEBから条件問い合わせをする(無料)
対面でのご相談も受け付けております
ご来店も歓迎です
オフィス移転は社内・社外ともに非公開に行われることが殆どです。そのためアットオフィスでは、基本的に訪問によるコンサルティングを行っておりますが、ご来店の相談も歓迎です。お一人おひとりに親身にご対応させて頂きたい為、要予約とさせて頂いております。ご来店の際は先ずは下記よりご予約下さい。
来店予約をする
募集終了のテナント区画
| 階数 | 坪数 | 賃料 + 共益費 | 敷金/礼金敷金 礼金 | 検討 |
|---|---|---|---|---|
| 1階 | 73.27坪 (242.23m²) | 募集終了 | - | - |
| 2階 | 219.89坪 (726.91m²) | 募集終了 | - | - |
| 6階 | 219.89坪 (726.91m²) | 募集終了 | - | - |
読込中...
江東区エリアで東陽パークビルに似た条件の物件
読込中...
| 取扱様態 | 仲介 |
|---|---|
| 取扱会社 | 株式会社 アットオフィス |