浜松町TSビル3階の賃貸情報
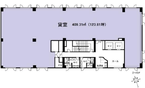
123.81 坪 (409.31m²)
※このサイトに記載がある賃貸条件は、敷金・保証金などの預かり金を除き、別途消費税がかかります。
浜松町TSビルの建物概要
設備詳細
| 空調 | 個別空調 |
|---|---|
| トイレ | - |
| 床仕様 | OA対応床(フリーアクセス) |
| エレベータ | 2 基 / エレベーター有 |
| 駐車場設備 | - |
| その他 | 24時間利用可 / 大型ビル / オートロック / 新耐震基準 |
浜松町TSビル3階の賃貸オフィス・事務所に関するお問い合わせ
浜松町TSビルについて
浜松町TSビルは、1991年に竣工された、港区浜松町に位置する賃貸オフィスビルです。本物件は、地上9階建て、地下2階の鉄骨鉄筋コンクリート造りで、新耐震基準に適合していることから、地震発生時の安全性に優れています。この耐震性は、テナント企業の従業員だけでなく、そのビジネスを守る上で非常に重要な要素です。 ビルの設備面では、個別空調システムが完備されており、各テナントが快適な室温を個別に管理できることが特徴です。また、エレベーターは2基設置されており、頻繁な往来が見込まれるオフィス環境でも、スムーズな移動が可能です。共用部には、男女別のトイレが設置されており、清潔かつ利便性を重視した設計となっています。 浜松町TSビルの立地は、JR山手線・京浜東北線、東京モノレール線の浜松町駅から徒歩3分圏内、都営浅草線・都営大江戸線の大門駅から徒歩4分圏内という、複数の公共交通機関へのアクセスが容易な場所にあります。この立地は、ビジネスにおける移動の利便性を高めるだけでなく、ビジネスパートナーやクライアントの訪問にも便利な環境を提供します。 周辺環境には、飲食店やコンビニエンスストアが充実しており、ビジネスパーソンの日常のニーズを満たします。さらに、銀行や郵便局などの金融・郵便サービスも徒歩圏内に位置しており、ビジネス運営上の様々な要求に応える環境が整っています。 内装においては、重厚感のあるタイル張りの外観と広々としたエントランスホールが、ビルを訪れる人々に安心感と信頼感を与えます。ビル内には貸会議室も設けられており、大切な商談やプレゼンテーション、社内会議などにも対応可能です。 浜松町TSビルは、その耐震性、設備の充実、抜群の立地、そして周辺環境の利便性を兼ね備えた賃貸オフィス物件です。これらの特性は、ビジネスの成功を支え、成長を促進する上で非常に重要な要素であり、テナント企業にとって魅力的な選択肢となるでしょう。
自分で探すより問い合わせる方が早いことがあります
WEB非公開物件があるから
オーナー様のご希望により「WEBでは非公開」にしている物件があります。 それらはWEBでいくら検索しても見つかりません。 先ずは条件などお知らせ頂けましたら非公開物件含め ピッタリのオフィスをご提案させて頂きます。 無理なお勧めはしておりませんので、お気軽にお問い合わせください。
対面でのご相談も受け付けております
ご来店も歓迎です
オフィス移転は社内・社外ともに非公開に行われることが殆どです。そのためアットオフィスでは、基本的に訪問によるコンサルティングを行っておりますが、ご来店の相談も歓迎です。お一人おひとりに親身にご対応させて頂きたい為、要予約とさせて頂いております。ご来店の際は先ずは下記よりご予約下さい。
近くのエリアで探してみる
浜松町/田町/芝公園エリアで浜松町TSビルに似た条件の物件
読込中...
浜松町TSビルと同じ最寄駅の物件
読込中...
| 取扱様態 | 仲介 |
|---|---|
| 取扱会社 | 株式会社 アットオフィス |