SOUTH PORT品川9階の賃貸情報
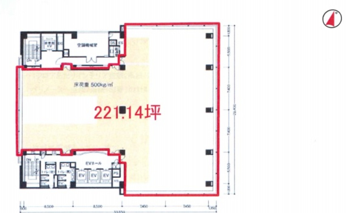
221.14 坪 (731.04m²)
※このサイトに記載がある賃貸条件は、敷金・保証金などの預かり金を除き、別途消費税がかかります。
SOUTH PORT品川の建物概要
設備詳細
| 空調 | 個別空調 |
|---|---|
| トイレ | - |
| 床仕様 | OA対応床(フリーアクセス) |
| エレベータ | 3 基 |
| 駐車場設備 | 空有 |
| その他 | 大型ビル / 新耐震基準 / 24時間利用可 / 光ファイバー |
SOUTH PORT品川について
東京都港区港南に位置するSOUTH PORT品川は、1994年に竣工した地上12階建てのオフィスビルです。所在地は交通の要所である品川駅から徒歩10分という、ビジネスに最適な立地にあります。JR山手線・JR京浜東北線・JR東海道本線・JR横須賀線・JR東海道新幹線・京急本線が利用可能で、東京都内や神奈川方面へのアクセスも優れています。 このビルの特徴は、ワンフロア220坪の広大な賃貸スペースにあります。執務エリアを最大限に活用できるよう、水回りは室外に設置されており、床は高さ50mmのOAフロアが敷かれています。これにより、床下配線が容易でオフィスレイアウトも自由自在です。床荷重は300kg/㎡(一部は500kg/㎡)を確保しており、重量物の設置にも対応可能です。また、光ファイバーが敷設されており、高速インターネット環境が整っています。 セキュリティ面では、機械警備システムが導入されており、入居企業の安心・安全を守ります。敷地内には30台収容可能な機械式駐車場を併設しており、車でのアクセスも便利です。 ビルのエントランスは3層吹き抜けで、開放感があり来訪者を迎えます。エレベーターは計4基(非常用1基含む)を設置しており、スムーズな移動が可能です。ランチタイムにはビル前にお弁当屋が出店するなど、飲食の利便性も良好です。 オフィスの眺望も魅力の一つで、晴れた日には都心や東京湾の景色を楽しむことができます。このような立地、設備、アクセスの良さは、外出・来客の多い企業にとって魅力的なポイントです。 まとめると、SOUTH PORT品川は、広大なオフィススペース、充実した設備、優れたアクセス性を兼ね備えた賃貸オフィスビルです。品川エリアでビジネス展開を考える企業にとって、最適な選択肢となるでしょう。
自分で探すより問い合わせる方が早いことがあります
WEB非公開物件があるから
オーナー様のご希望により「WEBでは非公開」にしている物件があります。 それらはWEBでいくら検索しても見つかりません。 先ずは条件などお知らせ頂けましたら非公開物件含め ピッタリのオフィスをご提案させて頂きます。 無理なお勧めはしておりませんので、お気軽にお問い合わせください。
対面でのご相談も受け付けております
ご来店も歓迎です
オフィス移転は社内・社外ともに非公開に行われることが殆どです。そのためアットオフィスでは、基本的に訪問によるコンサルティングを行っておりますが、ご来店の相談も歓迎です。お一人おひとりに親身にご対応させて頂きたい為、要予約とさせて頂いております。ご来店の際は先ずは下記よりご予約下さい。
近くのエリアで探してみる
港南/高輪/白金台/(品川駅)エリアでSOUTH PORT品川に似た条件の物件
読込中...
SOUTH PORT品川と同じ最寄駅の物件
読込中...
| 取扱様態 | 仲介 |
|---|---|
| 取扱会社 | 株式会社 アットオフィス |