第6伊藤ビルの賃料条件
| 階数 | 坪数 | 賃料 + 共益費 | 敷金/礼金敷金 礼金 | 検討 |
|---|---|---|---|---|
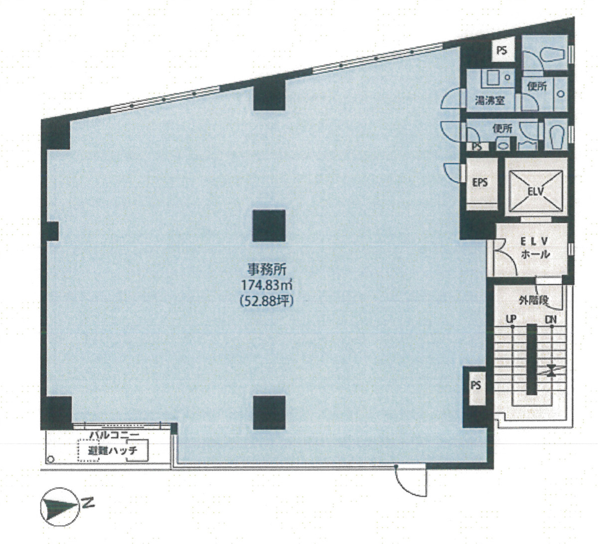
| 6階 | 52.88坪 (174.81m²) | 1,018,734円 (坪:23,000 円) | 10ヶ月 無10ヶ月/無 |
※このサイトに記載がある賃貸条件は、敷金・保証金などの預かり金を除き、別途消費税がかかります。
物件情報
設備詳細
| 空調 | 個別空調 |
|---|---|
| トイレ | - |
| 床仕様 | OA対応床(フリーアクセス) |
| エレベータ | 1 基 |
| 駐車場設備 | - |
| その他 | 機械警備 / 光ファイバー / 新耐震基準 |
第6伊藤ビルの賃貸オフィス・事務所に関するお問い合わせ
第6伊藤ビルについて
恵比寿に位置する第6伊藤ビルは、1990年に竣工された、外観がオーシャンブルーのタイル張りで、高級感漂う賃貸オフィス物件です。この立地の素晴らしさと、ビルの設備の充実さは、ビジネスの世界での成功をサポートするための理想的な環境を提供します。 まず、このビルの立地について触れなければなりません。JR「恵比寿」駅から徒歩わずか3分、東京メトロ日比谷線「恵比寿」駅まで徒歩6分という、非常に便利な位置にあります。恵比寿は、都内主要駅へのアクセスが良好なことで知られ、多くのビジネスマンや企業にとって魅力的なエリアです。周囲には飲食店や銀行などの店舗が充実しており、日々の業務に必要なサービスがすぐ近くに揃っています。 ビル自体のスペックも非常に魅力的です。基準階面積は50坪超で、正方形に近い形のレイアウトが可能なため、オフィス空間を最大限に活用することができます。また、床はOAフロア(高さ40mm)が設置されており、LANやOA機器等の配線を床下にスッキリと配置することが可能です。これにより、オフィス内を整理整頓しやすくなり、作業効率の向上が期待できます。 天井高は2400mmと十分な開放感があり、床荷重は300kg/㎡となっています。男女別のトイレや個別空調設備、そしてセキュリティは機械警備システムを導入しており、安心して業務に専念できる環境が整っています。 また、ビルのエントランスは白色の鮮やかな石張りで、高級感があります。ビル内の清潔さや管理状態の良さも、企業イメージを高める重要な要素です。さらに、オフィス内には光ファイバーが引込み済みで、迅速な情報通信が可能です。 第6伊藤ビルは、その立地の良さ、優れた設備、そして機能性を兼ね備えたビジネス環境を提供します。恵比寿というアクセスの利便性と周辺環境の豊富なサービスを活用しながら、快適で効率的なオフィスライフを送ることができるでしょう。ビジネスの成功を目指す企業にとって、第6伊藤ビルは最適な選択肢と言えるでしょう。
第6伊藤ビルのこだわり
自分で探すより問い合わせる方が早いことがあります
WEB非公開物件があるから
オーナー様のご希望により「WEBでは非公開」にしている物件があります。 それらはWEBでいくら検索しても見つかりません。 先ずは条件などお知らせ頂けましたら非公開物件含め ピッタリのオフィスをご提案させて頂きます。 無理なお勧めはしておりませんので、お気軽にお問い合わせください。
対面でのご相談も受け付けております
ご来店も歓迎です
オフィス移転は社内・社外ともに非公開に行われることが殆どです。そのためアットオフィスでは、基本的に訪問によるコンサルティングを行っておりますが、ご来店の相談も歓迎です。お一人おひとりに親身にご対応させて頂きたい為、要予約とさせて頂いております。ご来店の際は先ずは下記よりご予約下さい。
募集終了のテナント区画
| 階数 | 坪数 | 賃料 + 共益費 | 敷金/礼金敷金 礼金 | 検討 |
|---|---|---|---|---|
| 1階 | 41.76坪 (138.05m²) | 募集終了 | - | - |
| 2階 | 14.26坪 (47.16m²) | 募集終了 | - | - |
| 3階 | 52.99坪 (175.19m²) | 募集終了 | - | - |
| 4階 | 52.94坪 (175.01m²) | 募集終了 | - | - |
| 5階 | 52.9坪 (174.89m²) | 募集終了 | - | - |
| 7階 | 52.83坪 (174.64m²) | 募集終了 | - | - |
| 8階 | 48.27坪 (159.59m²) | 募集終了 | - | - |
読込中...
近くのエリアで探してみる
恵比寿/代官山/広尾エリアで第6伊藤ビルに似た条件の物件
読込中...
| 取扱様態 | 仲介 |
|---|---|
| 取扱会社 | 株式会社 アットオフィス |