TAMA WOODY GATE EBISUの賃料条件
| 階数 | 坪数 | 賃料 + 共益費 | 敷金/礼金敷金 礼金 | 検討 |
|---|---|---|---|---|
| 4階 | 70.37坪 (232.62m²) | お問合せ下さい (坪:-) | 12ヶ月 無12ヶ月/無 | |
| 6階 | 70.37坪 (232.62m²) | 2,181,470円 (坪:30,999 円) | 12ヶ月 無12ヶ月/無 |
※このサイトに記載がある賃貸条件は、敷金・保証金などの預かり金を除き、別途消費税がかかります。
物件情報
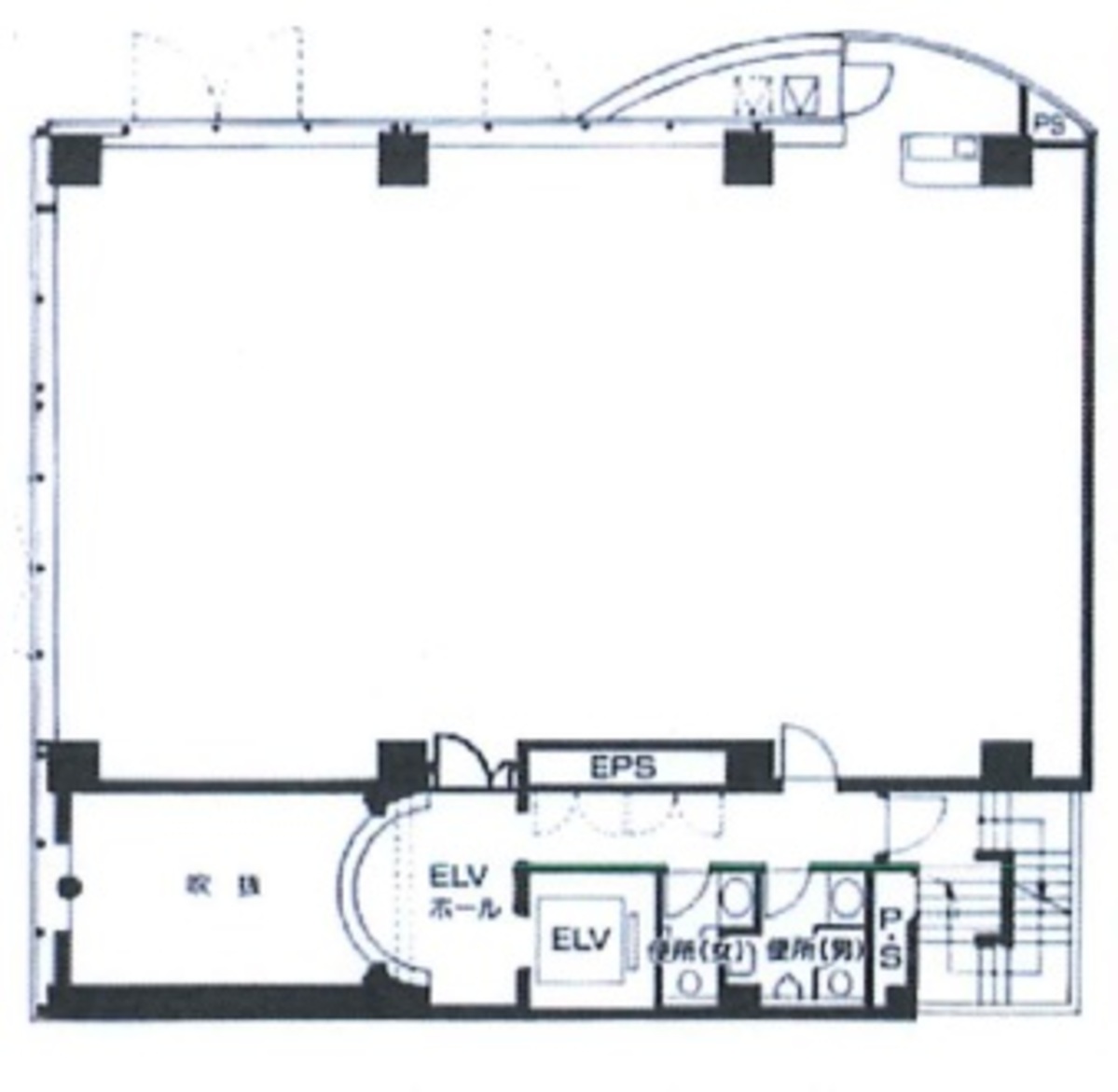
設備詳細
| 空調 | 個別空調 |
|---|---|
| トイレ | 男女別トイレ室外 |
| 床仕様 | OA対応床(フリーアクセス) |
| エレベータ | 1 基 |
| 駐車場設備 | 空無 |
| その他 | 機械警備 / 24時間利用可 / 光ファイバー / 新耐震基準 / フリーレント |
TAMA WOODY GATE EBISUの賃貸オフィス・事務所に関するお問い合わせ
TAMA WOODY GATE EBISUについて
TAMAWOODYGATEEBISUは、渋谷区恵比寿1丁目に位置する高品質なオフィスビルで、1992年に竣工しました。このビルは6階建てであり、新耐震基準に準拠して建設されたことで、安全性が高く評価されています。ビルのデザインは、黒を基調とした重厚感ある外観で、ガラス張りの洗練されたデザインが特徴です。内外ともに共有部がリニューアルされており、清潔感とモダンな雰囲気を提供しています。 立地においては、恵比寿駅から徒歩5分という好アクセス性を誇ります。恵比寿駅では、日比谷線とJR線を利用可能で、都心への移動が非常に便利です。周辺には恵比寿東公園があり、オフィス街にもかかわらず緑豊かな環境を楽しむことができます。また、飲食店、郵便局、コンビニ、銀行支店など日常的に必要となる施設が充実しており、ビジネス環境としても非常に魅力的です。 設備面では、ビル内に自走式の駐車場が設置されており、1階にはハイルーフ車も収容可能な屋根付き平置き駐車場があります。空調は個別空調を採用し、利用者の快適なオフィス環境をサポートします。セキュリティは機械警備を導入しており、安全面にも配慮されています。また、光ケーブルがMDFまで引き込まれており、通信環境も充実しています。 TAMAWOODYGATEEBISUは、その立地、設備、デザイン性を兼ね備えた賃貸オフィスビルとして、ビジネスの拠点としての魅力を多方面から提供します。高い利便性と快適なオフィス環境を求める企業に最適な物件であると言えるでしょう。
TAMA WOODY GATE EBISUのこだわり
自分で探すより問い合わせる方が早いことがあります
WEB非公開物件があるから
オーナー様のご希望により「WEBでは非公開」にしている物件があります。 それらはWEBでいくら検索しても見つかりません。 先ずは条件などお知らせ頂けましたら非公開物件含め ピッタリのオフィスをご提案させて頂きます。 無理なお勧めはしておりませんので、お気軽にお問い合わせください。
対面でのご相談も受け付けております
ご来店も歓迎です
オフィス移転は社内・社外ともに非公開に行われることが殆どです。そのためアットオフィスでは、基本的に訪問によるコンサルティングを行っておりますが、ご来店の相談も歓迎です。お一人おひとりに親身にご対応させて頂きたい為、要予約とさせて頂いております。ご来店の際は先ずは下記よりご予約下さい。
募集終了のテナント区画
| 階数 | 坪数 | 賃料 + 共益費 | 敷金/礼金敷金 礼金 | 検討 |
|---|---|---|---|---|
| 2階 | 61.49坪 (203.3m²) | 募集終了 | - | - |
| 3階 | 63.7坪 (210.58m²) | 募集終了 | - | - |
| 5階 | 70.28坪 (232.33m²) | 募集終了 | - | - |
読込中...
近くのエリアで探してみる
恵比寿/代官山/広尾エリアでTAMA WOODY GATE EBISUに似た条件の物件
読込中...
| 取扱様態 | 仲介 |
|---|---|
| 取扱会社 | 株式会社 アットオフィス |