※このサイトに記載がある賃貸条件は、敷金・保証金などの預かり金を除き、別途消費税がかかります。
物件情報
設備詳細
| 空調 | - |
|---|---|
| トイレ | - |
| 床仕様 | - |
| エレベータ | 1 基 |
| 駐車場設備 | 機械式駐車場 |
| その他 | 新耐震基準 / 機械警備 / 1階の物件 / スケルトン / クリニック |
サトウビルの賃貸オフィス・事務所に関するお問い合わせ
サトウビルについて
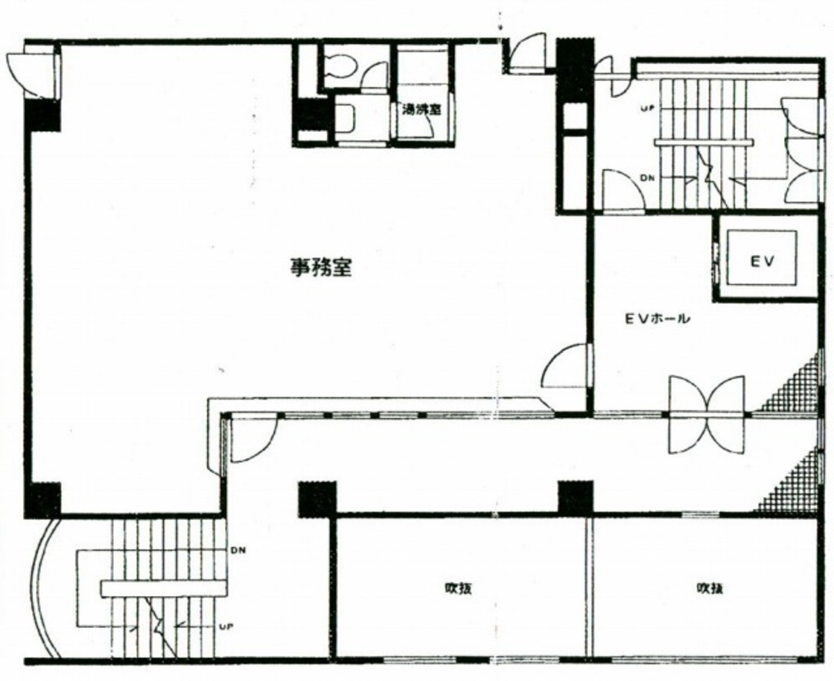
サトウビルは、東京の心臓部に位置する渋谷区南平台町にある賃貸オフィスビルです。1988年に竣工されたこのビルは、地上6階建てで、基準階坪数は約60坪となっています。ビルの特徴として、外観の美しさや閑静な住宅街に位置している点が挙げられます。また、サトウビルは、エレベーター1基、個別空調、光回線、機械式駐車場を併設しており、テナントのニーズに応える設備を整えています。 立地においては、サトウビルは非常に便利な位置にあります。最寄り駅である神泉駅まで徒歩7分、渋谷駅までは徒歩9分と、アクセスの良さが特徴です。さらに、渋谷駅周辺は9路線が利用可能で、都心への移動も容易です。ビル周辺には、ローソン、ヤマト運輸南平台センター、セブンイレブン、デニーズ南平台店などの生活便利施設が充実しており、ビジネスだけでなく日常生活においても高い利便性を享受できます。 ビル内の設備も魅力の一つです。1階には佐藤内科クリニックが入居しており、ビルを利用するテナントにとって、医療機関が近くにあることは大きな安心材料となるでしょう。また、個別空調や光回線の整備により、ビジネスの効率化をサポートします。機械式駐車場の併設も、車を利用するテナントには重要なポイントです。 サトウビルは、その美しい外観、閑静な立地、便利なアクセス、充実した設備といった特徴を持ち合わせています。これらの要素が融合することで、ビジネスの拠点として理想的な環境を提供しています。渋谷という都心にありながら、静かで落ち着いた環境で働きたい企業にとって、サトウビルは魅力的な選択肢となるでしょう。
自分で探すより問い合わせる方が早いことがあります
WEB非公開物件があるから
オーナー様のご希望により「WEBでは非公開」にしている物件があります。 それらはWEBでいくら検索しても見つかりません。 先ずは条件などお知らせ頂けましたら非公開物件含め ピッタリのオフィスをご提案させて頂きます。 無理なお勧めはしておりませんので、お気軽にお問い合わせください。
対面でのご相談も受け付けております
ご来店も歓迎です
オフィス移転は社内・社外ともに非公開に行われることが殆どです。そのためアットオフィスでは、基本的に訪問によるコンサルティングを行っておりますが、ご来店の相談も歓迎です。お一人おひとりに親身にご対応させて頂きたい為、要予約とさせて頂いております。ご来店の際は先ずは下記よりご予約下さい。
募集終了のテナント区画
| 階数 | 坪数 | 賃料 + 共益費 | 敷金/礼金敷金 礼金 | 検討 |
|---|---|---|---|---|
| B1階 | 19.7坪 (65.12m²) | 募集終了 | - | - |
| 1階 | 11.69坪 (38.64m²) | 募集終了 | - | - |
| 2階 | 25.81坪 (85.32m²) | 募集終了 | - | - |
| 3階 | 25.9坪 (85.61m²) | 募集終了 | - | - |
| 3階 | 11.69坪 (38.64m²) | 募集終了 | - | - |
| 3階 | 34.7坪 (114.45m²) | 募集終了 | - | - |
| 4階 | 60坪 (198.34m²) | 募集終了 | - | - |
| 5階 | 60坪 (198.34m²) | 募集終了 | - | - |
| 6階 | 60坪 (198.34m²) | 募集終了 | - | - |
読込中...
渋谷エリアでサトウビルに似た条件の物件
読込中...
| 取扱様態 | 仲介 |
|---|---|
| 取扱会社 | 株式会社 アットオフィス |