SLACK SHIBUYA4階の賃貸情報
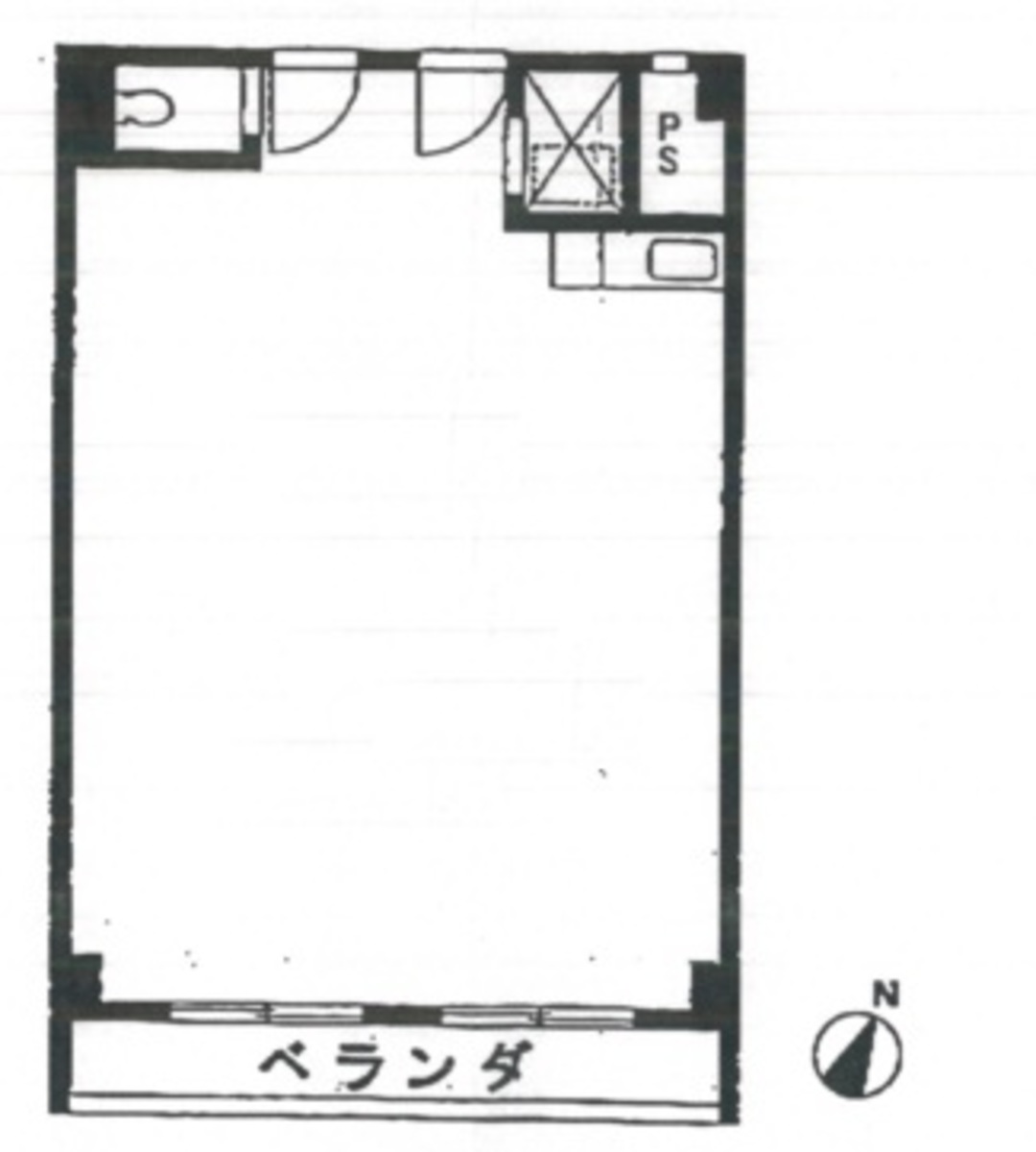
21.65 坪 (71.58m²)
※このサイトに記載がある賃貸条件は、敷金・保証金などの預かり金を除き、別途消費税がかかります。
SLACK SHIBUYAの建物概要
設備詳細
| 空調 | - |
|---|---|
| トイレ | - |
| 床仕様 | - |
| エレベータ | 2 基 |
| 駐車場設備 | 空有 |
| その他 | 光ファイバー / フリーレント |
SLACK SHIBUYA4階の賃貸オフィス・事務所に関するお問い合わせ
SLACK SHIBUYAについて
SLACK SHIBUYAビルのご紹介です。このビルは、渋谷区桜丘町に位置し、渋谷駅からのアクセスが非常に良いことが特徴です。都心のオアシスとも呼べるその立地は、ビジネスシーンにおいて非常に重要な要素です。渋谷という日本を代表するビジネス・エンターテイメントエリアの中心に位置しながら、国道246号沿いにあるため、車でのアクセスも抜群です。 SLACK SHIBUYAビルは、1979年の新耐震基準以前に竣工された物件ですが、その歴史ある風格と、落ち着いた雰囲気が魅力的です。ビル内には2機のエレベーターが備わっており、テナント様の快適な移動をサポートします。 ビルの設備には、室外男女別トイレ、1階にフリーラウンジスペースがあり、ビジネスの打ち合わせやちょっとした休憩に最適です。また、4名用会議室と27名用会議室がテナント専用に用意されており、さまざまなビジネスシーンに応じた利用が可能です。屋上へのアクセスも可能で、ここではちょっとした飲食も楽しむことができます。また、1階には喫煙所も完備されており、喫煙者の方々にも配慮されています。 駐車場がビル内に設けられているため、車での通勤やビジネスユースにも便利です。空き状況につきましては、お気軽にお問い合わせください。 SLACK SHIBUYAビルは、その立地、設備、雰囲気が醸し出す独自の魅力を持つビルです。渋谷という活気あふれるエリアでビジネスを行う企業にとって、最適なオフィススペースを提供します。視認性が良く、アクセスも抜群なこのビルで、あなたのビジネスを一歩前進させませんか?私たちは、テナント様一人ひとりのニーズに寄り添い、最適なオフィス空間のご提案を心がけています。ご興味をお持ちの方は、ぜひお問い合わせください。
SLACK SHIBUYAのこだわり
自分で探すより問い合わせる方が早いことがあります
WEB非公開物件があるから
オーナー様のご希望により「WEBでは非公開」にしている物件があります。 それらはWEBでいくら検索しても見つかりません。 先ずは条件などお知らせ頂けましたら非公開物件含め ピッタリのオフィスをご提案させて頂きます。 無理なお勧めはしておりませんので、お気軽にお問い合わせください。
対面でのご相談も受け付けております
ご来店も歓迎です
オフィス移転は社内・社外ともに非公開に行われることが殆どです。そのためアットオフィスでは、基本的に訪問によるコンサルティングを行っておりますが、ご来店の相談も歓迎です。お一人おひとりに親身にご対応させて頂きたい為、要予約とさせて頂いております。ご来店の際は先ずは下記よりご予約下さい。
渋谷エリアでSLACK SHIBUYAに似た条件の物件
読込中...
SLACK SHIBUYAと同じ最寄駅の物件
読込中...
| 取扱様態 | 仲介 |
|---|---|
| 取扱会社 | 株式会社 アットオフィス |