土井ビル2階の賃貸情報
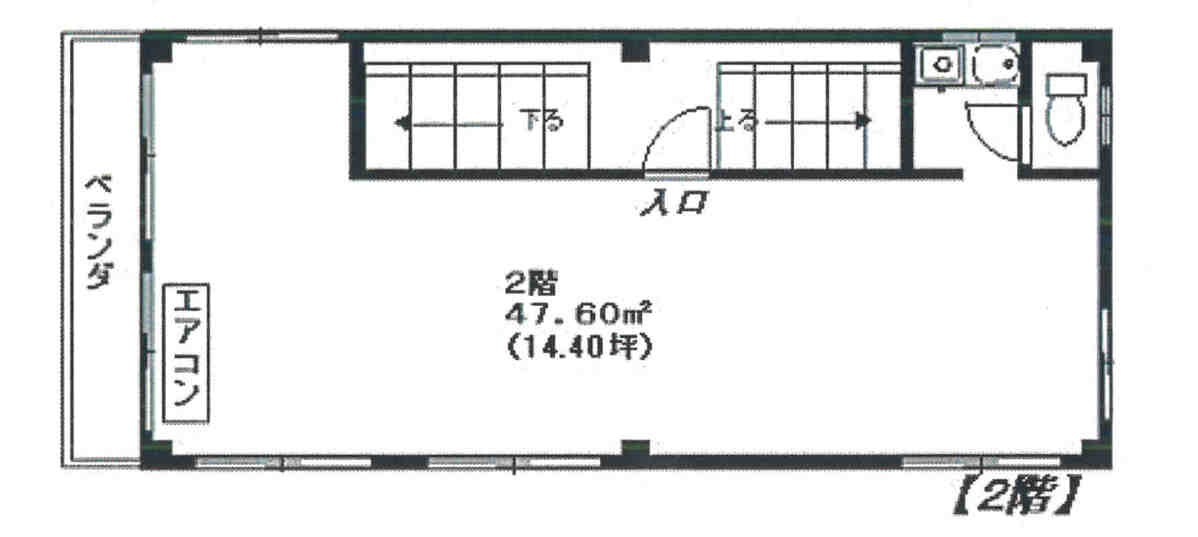
29.07 坪 (96.1m²)
※このサイトに記載がある賃貸条件は、敷金・保証金などの預かり金を除き、別途消費税がかかります。
土井ビルの建物概要
設備詳細
| 空調 | - |
|---|---|
| トイレ | - |
| 床仕様 | - |
| エレベータ | - |
| 駐車場設備 | - |
| その他 | 新耐震基準 |
土井ビル2階の賃貸オフィス・事務所に関するお問い合わせ
土井ビルについて
土井ビルは、墨田区亀沢4丁目に位置する地上3階建ての建物です。最寄り駅として、総武線「錦糸町駅」から徒歩9分、大江戸線「両国駅」から徒歩10分、総武・中央緩行線「錦糸町駅」から徒歩11分と、複数路線を利用できる環境にあります。ビル周辺には様々な店舗や事業所、生活利便施設が点在し、ビジネス拠点として検討される方にとって、交通手段や周辺環境の選択肢が多いエリアです。 建物は3階建ての構造を活かし、オフィスや店舗など、利用目的に合わせたレイアウト計画がしやすい点が特徴です。複数のフロアを独立して活用することや、事業ごとのスペースに切り分けることも可能なため、多様な事業形態に対応しやすい設計です。シンプルな外観と、わかりやすい住所表記によって、来訪者にも案内がしやすい立地となっています。 周辺は比較的落ち着いた雰囲気を持ち、駅からのアクセス路には住宅や店舗が混在しています。このため、従業員の通勤や来客対応に際しても、安心感のあるエリアです。詳細はお問い合わせください。
土井ビルのこだわり
自分で探すより問い合わせる方が早いことがあります
WEB非公開物件があるから
オーナー様のご希望により「WEBでは非公開」にしている物件があります。 それらはWEBでいくら検索しても見つかりません。 先ずは条件などお知らせ頂けましたら非公開物件含め ピッタリのオフィスをご提案させて頂きます。 無理なお勧めはしておりませんので、お気軽にお問い合わせください。
対面でのご相談も受け付けております
ご来店も歓迎です
オフィス移転は社内・社外ともに非公開に行われることが殆どです。そのためアットオフィスでは、基本的に訪問によるコンサルティングを行っておりますが、ご来店の相談も歓迎です。お一人おひとりに親身にご対応させて頂きたい為、要予約とさせて頂いております。ご来店の際は先ずは下記よりご予約下さい。
墨田区エリアで土井ビルに似た条件の物件
読込中...
土井ビルと同じ最寄駅の物件
読込中...
| 取扱様態 | 仲介 |
|---|---|
| 取扱会社 | 株式会社 アットオフィス |