JMFビル東陽町01の賃料条件
| 階数 | 坪数 | 賃料 + 共益費 | 敷金/礼金敷金 礼金 | 検討 |
|---|---|---|---|---|
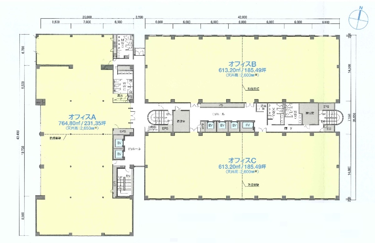
| 5階 | 185.49坪 (613.2m²) | お問合せ下さい (坪:-) | 12ヶ月 無12ヶ月/無 | |
| 5階 | 185.49坪 (613.2m²) | お問合せ下さい (坪:-) | 12ヶ月 無12ヶ月/無 |
※このサイトに記載がある賃貸条件は、敷金・保証金などの預かり金を除き、別途消費税がかかります。
物件情報
設備詳細
| 空調 | 個別空調 |
|---|---|
| トイレ | - |
| 床仕様 | OA対応床(フリーアクセス) |
| エレベータ | 5 基 |
| 駐車場設備 | 空有 |
| その他 | 機械警備 / 24時間利用可 / 光ファイバー / 天井高2600mm以上 / 新耐震基準 / 大型ビル |
JMFビル東陽町01の賃貸オフィス・事務所に関するお問い合わせ
JMFビル東陽町01について
東西線「東陽町駅」徒歩7分。別館と本館に分かれおりますが、1フロアで最大600坪程度確保可能です。 地下1階、地上8階の構造で竣工年数は1990年1月の新耐震基準になります。 主な設備は男女別トイレ、機械警備、エレベーターは本館4基別館2基となっております。 空調は個別空調です。 【おすすめポイント】 ・別館は天井高が約2.8メートルあり大変開放感があります。230坪確保可能です。 ・90坪程度から分割可能です。企業の成長フェーズに応じて内部増床を繰り返す形で柔軟に対応できます。
自分で探すより問い合わせる方が早いことがあります
WEB非公開物件があるから
オーナー様のご希望により「WEBでは非公開」にしている物件があります。 それらはWEBでいくら検索しても見つかりません。 先ずは条件などお知らせ頂けましたら非公開物件含め ピッタリのオフィスをご提案させて頂きます。 無理なお勧めはしておりませんので、お気軽にお問い合わせください。
対面でのご相談も受け付けております
ご来店も歓迎です
オフィス移転は社内・社外ともに非公開に行われることが殆どです。そのためアットオフィスでは、基本的に訪問によるコンサルティングを行っておりますが、ご来店の相談も歓迎です。お一人おひとりに親身にご対応させて頂きたい為、要予約とさせて頂いております。ご来店の際は先ずは下記よりご予約下さい。
募集終了のテナント区画
| 階数 | 坪数 | 賃料 + 共益費 | 敷金/礼金敷金 礼金 | 検討 |
|---|---|---|---|---|
| 1階 | 341.99坪 (1130.56m²) | 募集終了 | - | - |
| 1階 | 231.35坪 (764.8m²) | 募集終了 | - | - |
| 1階 | 111.57坪 (368.81m²) | 募集終了 | - | - |
| 2階 | 30.9坪 (102.14m²) | 募集終了 | - | - |
| 2階 | 52.27坪 (172.8m²) | 募集終了 | - | - |
| 2階 | 30.9坪 (102.14m²) | 募集終了 | - | - |
| 2階 | 231.35坪 (764.8m²) | 募集終了 | - | - |
| 2階 | 70.25坪 (232.23m²) | 募集終了 | - | - |
| 2階 | 26.1坪 (86.28m²) | 募集終了 | - | - |
| 3階 | 231.35坪 (764.79m²) | 募集終了 | - | - |
| 4階 | 185.49坪 (613.2m²) | 募集終了 | - | - |
| 4階 | 185.49坪 (613.2m²) | 募集終了 | - | - |
| 4階 | 231.35坪 (764.8m²) | 募集終了 | - | - |
| 5階 | 231.35坪 (764.8m²) | 募集終了 | - | - |
| 6階 | 185.49坪 (613.2m²) | 募集終了 | - | - |
| 6階 | 185.49坪 (613.2m²) | 募集終了 | - | - |
| 7階 | 185.49坪 (613.18m²) | 募集終了 | - | - |
| 7階 | 185.49坪 (613.18m²) | 募集終了 | - | - |
| 7階 | 185.49坪 (613.18m²) | 募集終了 | - | - |
| 7階 | 132.49坪 (437.98m²) | 募集終了 | - | - |
| 7階 | 52.99坪 (175.17m²) | 募集終了 | - | - |
読込中...
江東区エリアでJMFビル東陽町01に似た条件の物件
読込中...
| 取扱様態 | 仲介 |
|---|---|
| 取扱会社 | 株式会社 アットオフィス |