恵比寿ファインヒルビル1階の賃貸情報
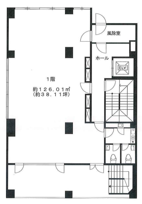
38.1 坪 (126.01m²)
※このサイトに記載がある賃貸条件は、敷金・保証金などの預かり金を除き、別途消費税がかかります。
恵比寿ファインヒルビルの建物概要
設備詳細
| 空調 | 個別空調 |
|---|---|
| トイレ | 男女別トイレ室内 |
| 床仕様 | OA対応床(フリーアクセス) |
| エレベータ | 1 基 |
| 駐車場設備 | 空有 |
| その他 | 新耐震基準 / 光ファイバー / 1階の物件 |
恵比寿ファインヒルビル1階の賃貸オフィス・事務所に関するお問い合わせ
恵比寿ファインヒルビルについて
恵比寿ファインヒルビルは、東京都渋谷区恵比寿南2丁目に位置する賃貸オフィスビルです。この物件は、恵比寿駅から徒歩6分の距離にあり、交通の利便性に優れています。特に、その立地は閑静な住宅街の中にあり、落ち着いたビジネス環境を求める企業に最適な場所と言えるでしょう。 ビル自体は、白色のタイル造りでシンプルかつ清潔感のある外観が特徴です。1階にオフィススペースがあり、2階以上は住宅用途となっており、ビジネスとプライベートのバランスを重視する方に適した構造をしています。また、エレベーターは1機設置されており、日常の移動もスムーズです。 オフィススペースに関しては、1階に位置しており、前面の駐車スペースに面したガラス張りのデザインが採用されています。これにより、自然光の入りは限定的ながらも、開放的な雰囲気を提供しています。室内は長方形で柱の配置も効率的なため、自由度の高いレイアウトが可能です。個別空調完備、男女別トイレなど、快適なオフィス環境を整えるための設備も充実しています。 周辺環境としては、恵比寿ガーデンプレイスや複数の公園が近くにあり、仕事の合間のリフレッシュにも便利です。また、恵比寿エリアは飲食店やショッピング施設が豊富で、ビジネス後の接待やショッピングにも困りません。 恵比寿ファインヒルビルは、恵比寿という利便性の高い立地、効率的なオフィスレイアウト、そして快適な周辺環境を兼ね備えており、小規模から中規模の企業や、隠れ家的なオフィスを求めるビジネスパーソンに最適な物件です。この物件は、ビジネスのさまざまなニーズに応えるための機能性と、落ち着いた環境が魅力的な賃貸オフィスビルとして、高い評価を受けています。
自分で探すより問い合わせる方が早いことがあります
WEB非公開物件があるから
オーナー様のご希望により「WEBでは非公開」にしている物件があります。 それらはWEBでいくら検索しても見つかりません。 先ずは条件などお知らせ頂けましたら非公開物件含め ピッタリのオフィスをご提案させて頂きます。 無理なお勧めはしておりませんので、お気軽にお問い合わせください。
対面でのご相談も受け付けております
ご来店も歓迎です
オフィス移転は社内・社外ともに非公開に行われることが殆どです。そのためアットオフィスでは、基本的に訪問によるコンサルティングを行っておりますが、ご来店の相談も歓迎です。お一人おひとりに親身にご対応させて頂きたい為、要予約とさせて頂いております。ご来店の際は先ずは下記よりご予約下さい。
近くのエリアで探してみる
恵比寿/代官山/広尾エリアで恵比寿ファインヒルビルに似た条件の物件
読込中...
恵比寿ファインヒルビルと同じ最寄駅の物件
読込中...
| 取扱様態 | 仲介 |
|---|---|
| 取扱会社 | 株式会社 アットオフィス |