※このサイトに記載がある賃貸条件は、敷金・保証金などの預かり金を除き、別途消費税がかかります。
物件情報
設備詳細
| 空調 | 個別空調 |
|---|---|
| トイレ | 男女別トイレ室内 |
| 床仕様 | OA対応床(フリーアクセス) |
| エレベータ | 1 基 |
| 駐車場設備 | - |
| その他 | 新耐震基準 |
NH西池袋ビルの賃貸オフィス・事務所に関するお問い合わせ
NH西池袋ビルについて
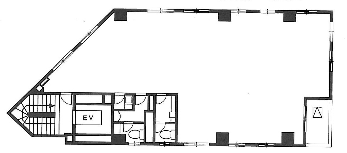
**NH西池袋ビルの魅力に迫る:高松1丁目のオフィス賃貸物件のご紹介** 本日は豊島区高松1丁目に位置する「NH西池袋ビル」についてご紹介いたします。このビルは、ビジネスを行う上で多くのメリットを持つ素晴らしい物件です。明るく、前向きな視点でその特性を見ていきましょう。 ### **立地の魅力:アクセスの良さがビジネスをサポート** まず、このビルの魅力の一つとして挙げられるのが、便利な立地です。NH西池袋ビルは東京メトロ有楽町線・副都心線「要町駅」から徒歩わずか4分という駅近物件です。さらに、3駅以上利用可能なため、交通の便が非常に良いです。これにより、通勤やクライアント訪問が非常にスムーズになります。 ### **建物の特徴:機能性と快適性を兼ね備えた2002年竣工の耐震オフィスビル** 2002年に竣工されたこのビルは、耐震設計が施されており、安全性が確保されています。また、シンプルで使い勝手の良い外観と内部設計が特徴です。基準階面積は約40坪で、中規模のオフィスを探している企業にとって理想的なサイズです。内装も無柱で、レイアウトの自由度が高く、ビジネスの多様なニーズに対応できます。 ### **設備の充実:ビジネス環境をより快適に** NH西池袋ビルは、ビジネスに不可欠な設備を完備しています。光回線対応で高速インターネットが利用でき、オフィス内は個別空調が整っており、快適な環境を提供します。さらに、機械式駐車場も完備されているため、車での通勤もスムーズです。トイレは男女別で、プライバシーが確保されているのも大きなポイントです。 ### **セキュリティ:安心の機械警備とオートロック** セキュリティ面でも安心です。機械警備が完備されており、オートロックと1フロア1テナントの仕様により、テナントのプライバシーと安全がしっかりと守られています。これにより、ビジネスに集中できる環境が整っています。 ### **周辺環境:利便性の高いエリア** ビルの周辺には、焼肉屋やラーメン店、居酒屋といった飲食店が点在しており、仕事帰りにリフレッシュする場所も豊富です。さらに、近隣にはコンビニや豊島高松郵便局もあり、日常の業務に必要な施設が整っています。また、池袋駅へも徒歩10~15分程度で行けるため、さらに広がる利便性が魅力です。 ### **景観:緑と開放感のある環境** NH西池袋ビルの窓からは、隣接する千川中学校のグラウンドを一望することができ、緑豊かな景観が広がります。このような開放感が、日々の業務にリフレッシュ感を与えてくれます。 ### **内見のご案内** 以上がNH西池袋ビルのご紹介です。豊島区高松1-10-2に位置するこのビルは、ビジネスの拠点として最適な環境を提供します。ご興味をお持ちいただけましたら、ぜひ一度ご内見いただき、実際の雰囲気を感じてみてください。 NH西池袋ビルで、皆様のビジネスがさらに飛躍することを心よりお祈り申し上げます。ご内見のご予約やご質問など、お気軽にお問い合わせください。お待ちしております!
NH西池袋ビルのこだわり
自分で探すより問い合わせる方が早いことがあります
WEB非公開物件があるから
オーナー様のご希望により「WEBでは非公開」にしている物件があります。 それらはWEBでいくら検索しても見つかりません。 先ずは条件などお知らせ頂けましたら非公開物件含め ピッタリのオフィスをご提案させて頂きます。 無理なお勧めはしておりませんので、お気軽にお問い合わせください。
対面でのご相談も受け付けております
ご来店も歓迎です
オフィス移転は社内・社外ともに非公開に行われることが殆どです。そのためアットオフィスでは、基本的に訪問によるコンサルティングを行っておりますが、ご来店の相談も歓迎です。お一人おひとりに親身にご対応させて頂きたい為、要予約とさせて頂いております。ご来店の際は先ずは下記よりご予約下さい。
募集終了のテナント区画
| 階数 | 坪数 | 賃料 + 共益費 | 敷金/礼金敷金 礼金 | 検討 |
|---|---|---|---|---|
| 5階 | 38坪 (125.4m²) | 募集終了 | - | - |
| 6階 | 35.6坪 (117.7m²) | 募集終了 | - | - |
| 8階 | 8.7坪 (28.76m²) | 募集終了 | - | - |
読込中...
要町/千川エリアでNH西池袋ビルに似た条件の物件
読込中...
| 取扱様態 | 仲介 |
|---|---|
| 取扱会社 | 株式会社 アットオフィス |