みなとみらいビジネススクエア13階の賃貸情報
面積
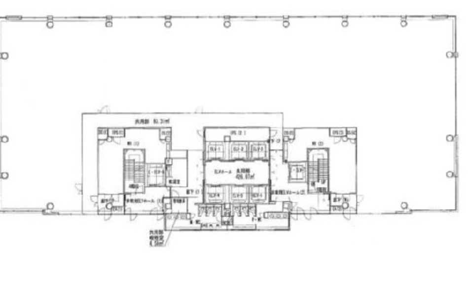
114.58 坪 (378.78m²)
賃料
お問合せ下さい (坪:-)
共益費賃料込
敷金 / 礼金 / 保証金12ヶ月/無/無
償却無
更新料無
※このサイトに記載がある賃貸条件は、敷金・保証金などの預かり金を除き、別途消費税がかかります。
みなとみらいビジネススクエアの建物概要
設備詳細
| 空調 | セントラル空調 |
|---|---|
| トイレ | - |
| 床仕様 | OA対応床(フリーアクセス) |
| エレベータ | 8 基 |
| 駐車場設備 | 空有 |
| その他 | 24時間利用可 / 大型ビル / 新耐震基準 / 駅直結 |
みなとみらいビジネススクエア13階の賃貸オフィス・事務所に関するお問い合わせ
みなとみらいビジネススクエアについて
みなとみらい駅の地下通路から直結!ハイグレードな大型オフィスです!
自分で探すより問い合わせる方が早いことがあります
WEB非公開物件があるから
オーナー様のご希望により「WEBでは非公開」にしている物件があります。 それらはWEBでいくら検索しても見つかりません。 先ずは条件などお知らせ頂けましたら非公開物件含め ピッタリのオフィスをご提案させて頂きます。 無理なお勧めはしておりませんので、お気軽にお問い合わせください。
WEBから条件問い合わせをする(無料)
対面でのご相談も受け付けております
ご来店も歓迎です
オフィス移転は社内・社外ともに非公開に行われることが殆どです。そのためアットオフィスでは、基本的に訪問によるコンサルティングを行っておりますが、ご来店の相談も歓迎です。お一人おひとりに親身にご対応させて頂きたい為、要予約とさせて頂いております。ご来店の際は先ずは下記よりご予約下さい。
来店予約をする
西区エリアでみなとみらいビジネススクエアに似た条件の物件
読込中...
みなとみらいビジネススクエアと同じ最寄駅の物件
読込中...
| 取扱様態 | 仲介 |
|---|---|
| 取扱会社 | 株式会社 アットオフィス |