有明セントラルタワー16階の賃貸情報
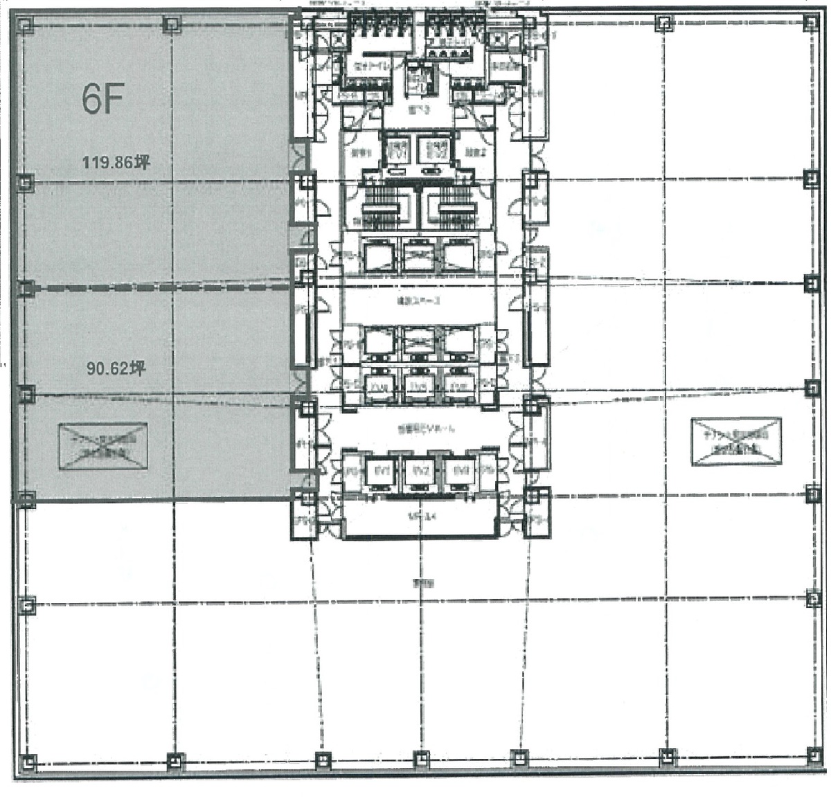
210.49 坪 (695.83m²)
※このサイトに記載がある賃貸条件は、敷金・保証金などの預かり金を除き、別途消費税がかかります。
有明セントラルタワーの建物概要
設備詳細
| 空調 | 個別空調 / セントラル空調 |
|---|---|
| トイレ | 男女別トイレ / 男女別トイレ室外 |
| 床仕様 | OA対応床(フリーアクセス) |
| エレベータ | 17 基 / エレベーター有 |
| 駐車場設備 | 空有 / 敷地内駐車場 |
| その他 | 機械警備 / 大型ビル / 高層ビル / 24時間利用可 / 省エネ配慮 / 新耐震基準 / フリーレント |
有明セントラルタワー16階の賃貸オフィス・事務所に関するお問い合わせ
有明セントラルタワーについて
2011年竣工、基準階約775坪の賃貸オフィスビルです。 20階建てエレベーターは17基の天井高は2.8mで、システム天井で、照明は調光可変型となっております。 フロアーはコの字型の区画となっており、最大で5分割が可能です。 耐荷重も基準階で500kg/㎡となっており、ヘビーデューティーゾーンでは800kg/㎡や、フロアによっては 1,000kg/㎡の区画もございます。 耐震性能にも優れており、粘性型制振壁・制振ブレースの採用による制振構造となっております。
自分で探すより問い合わせる方が早いことがあります
WEB非公開物件があるから
オーナー様のご希望により「WEBでは非公開」にしている物件があります。 それらはWEBでいくら検索しても見つかりません。 先ずは条件などお知らせ頂けましたら非公開物件含め ピッタリのオフィスをご提案させて頂きます。 無理なお勧めはしておりませんので、お気軽にお問い合わせください。
対面でのご相談も受け付けております
ご来店も歓迎です
オフィス移転は社内・社外ともに非公開に行われることが殆どです。そのためアットオフィスでは、基本的に訪問によるコンサルティングを行っておりますが、ご来店の相談も歓迎です。お一人おひとりに親身にご対応させて頂きたい為、要予約とさせて頂いております。ご来店の際は先ずは下記よりご予約下さい。
江東区エリアで有明セントラルタワーに似た条件の物件
読込中...
有明セントラルタワーと同じ最寄駅の物件
読込中...
| 取扱様態 | 仲介 |
|---|---|
| 取扱会社 | 株式会社 アットオフィス |